Michael Drewsens Vej 23
8270 Højbjerg

Sagsnr. 2105184

Ejendomstype

Etageareal

Grund

Energiklasse

4.860 m²

11.003 m²

B

Alsidig erhvervsejendom til salg i Højbjerg Aarhus Syd

På Michael Drewsens Vej, med Proshops nye domicil og ikke mindst landskabet ved Jelshøj som nærmeste naboer, finder du denne gode ejendom.

Her får du 4.860 m2, som byder på en bred vifte af anvendelsesmuligheder.

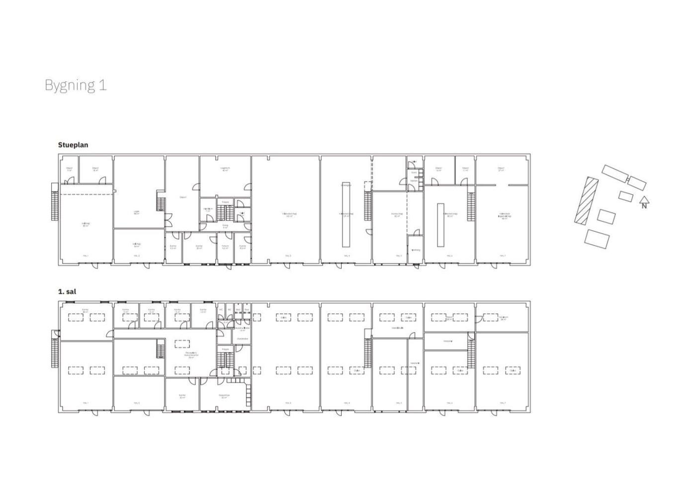
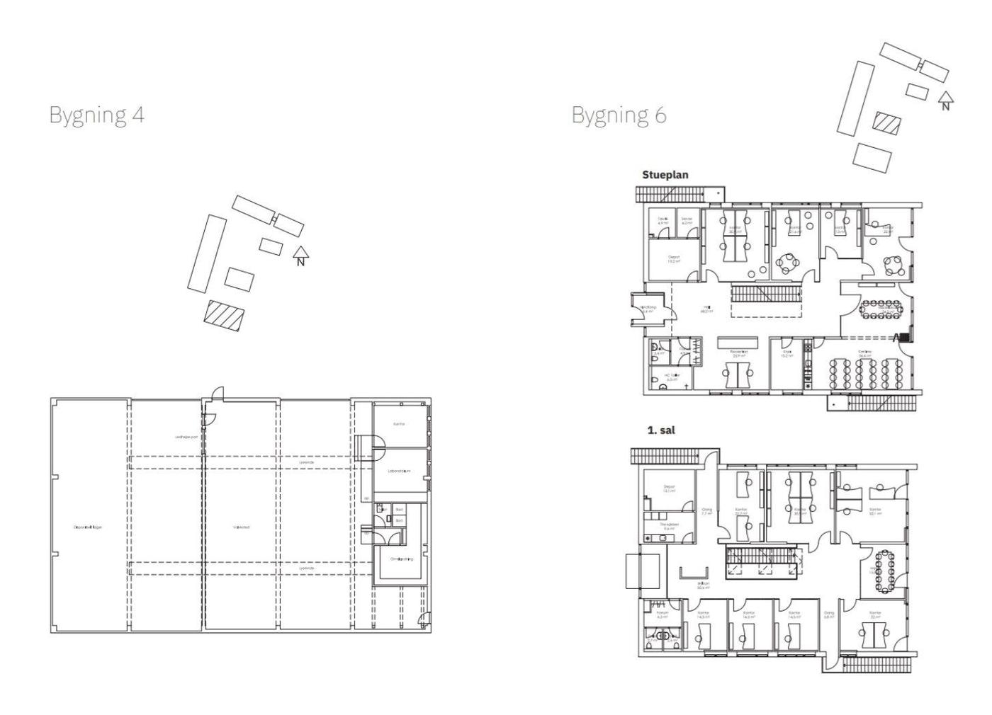
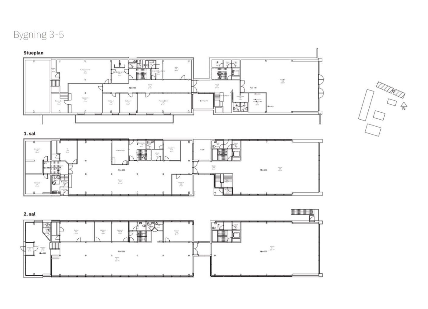
Michael Drewsens Vej 23 favner over det funktionelle som det præsentable. Her er både værksteder og lager, men det er dog først og fremmest kontorfaciliteter, der kendetegner ejendommen.

De seks bygninger er opført over en periode på mere end 40 år, og de har derfor vidt forskellige udtryk, der varierer fra det helt moderne til det mere bedagede. Standen er dog pæn hele vejen igennem, og komforten kan over en kam matche nyere byggerier.

Beliggenheden er god, og her er mange flueben, der kan krydses af på de fleste virksomheders ønskeliste. Cykelafstand til Aarhus C, få minutter til E45, gåafstand til letbanen og gode muligheder for offentlig transport. Området ligger godt i forhold til de sydlige indfaldsveje, og her er gode parkeringsmuligheder på grunden.

Virksomhederne i nabolaget vidner også om, at området er attraktivt. Her finder du store og små virksomheder fra en bred vifte af erhverv, og her er både produktionsvirksomheder, kontorer, lagerhaller, familieforlystelser og konsulenthuse. Her er flere nybyggede domiciler, men generelt afspejler bygningsmassen dén på Michael Drewsens Vej 23. En god blanding af erhvervsbyggerier fra de seneste 50 år.

Ejendommen står tom for køber, da de tidligere lejere er vokset ud af rammerne. Bygningerne er oplagt som domicil for en virksomhed, som ønsker mange gode og alsidige kvadratmeter i Aarhus, men her er absolut også potentiale for investoren.

Læs mere

Denne ejendom er solgt

Vil du vide mere?

Morten Kristensen

mkr@nordicals.dk

+45 23220723

Frederiks Plads 42, 12. sal, 8000 Aarhus

+4586208585

8000@nordicals.dk

Besøg vores mæglerside

Lignende ejendomme

Til top