Saralyst Allé 55
8270 Højbjerg

Sagsnr. 1910124

Ejendomstype

Etageareal

Grund

Energiklasse

993 m²

3.170 m²

C

Klinik, kontor, sundhedshus eller lignende

BELIGGENHED:
Ejendommen er skønt beliggende på særdeles eftertragtet adresse i bydelen Højbjerg. Saralyst Allé 55 ligger kun 4 km fra Aarhus C og med gåafstand til bl.a. Marselisborg Skov, Ceres Arena og Tivoli Friheden er du tæt på byens pulserende liv. Nærmeste naboer er nyere boligprojekter samt lægehus og privathospital på den anden side af vejen.

EJENDOMMEN:
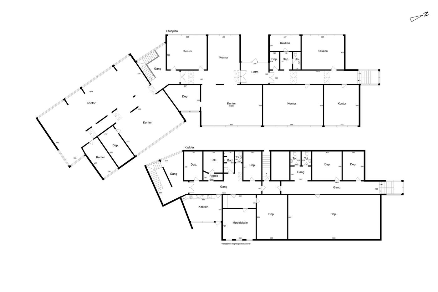
Bygningen, der er præmieret af Aarhus Kommune for sin arkitektur, byder i alt på 993 m² kontor/erhverv. Her er 603 m² i stueplan og 390 m² højloftet, tør kælder, hvor en del er med niveaufri udgang til terrassen. Ejendommen er fuldmuret, her er loft til kip med Troldtekt akustiklofter og ventilationsanlæg. Indretningen er særdeles fleksi-bel, og ejendommen kan indrettes efter lejers behov.
En flot og indbydende ejendom, perfekt til sundhedshus, klinik, IT domicil og mange andre typer erhverv.
Kontakt Nordicals for yderligere oplysninger eller en fremvisning af ejendommen.

Læs mere

Denne ejendom er udlejet

Vil du vide mere?

Peter Løndal

plo@nordicals.dk

+45 20774243

Frederiks Plads 42, 12. sal, 8000 Aarhus

+4586208585

8000@nordicals.dk

Besøg vores mæglerside

Lignende ejendomme

Til top