Ballevej 8
8300 Odder

Sagsnr. 2501156

Ejendomstype

Etageareal

Energiklasse

3.196 m²

D

Årlig leje

Leje pr. m²

Depositum

810.000 kr.

253 kr.

405.000 kr.

Kontor - og værkstedsejendom til leje helt eller delvist

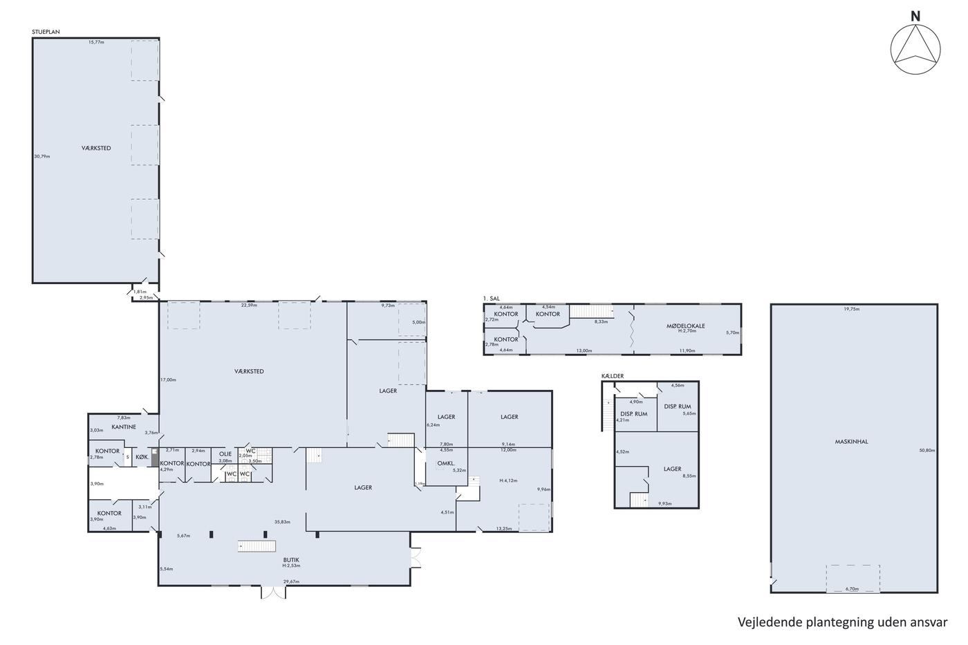
Ejendommen er en kombineret kontor- og værkstedsbygning på 3.196 m², som er opdelt i udstilling, kontor, lager, koldhal og værksted. Grundarealet er 10.710 m².

Ejendommen omfatter flere bygninger, der hver har sin specifikke funktion.

I indgangsbygningen findes butik/udstillingsområde, flere kontorer, kantine med køkken og toiletforhold samt nærlager. Herfra er der adgang til første sal, som rummer administrationslokaler og et større mødelokale.

Bag indgangsbygningen ligger et værksted på 1.225 m2 med fuldt udstyrede mandskabsfaciliteter og kælder.

Der er desuden en yderligere værkstedshal på 500 m2 med porte samt en kold hal på 1.000 m2, som har nyere belægningssten.

De omkringliggende udendørsarealer er velegnede til opbevaring af maskiner og stort udstyr.

Odder er en stationsby i Østjylland med cirka 12.000 indbyggere. Fra Odder er der 20 km til Aarhus og 30 km til Horsens. Selve Odder kommune strækker sig fra Horsens Fjord i syd til Norsminde Fjord og Aarhus mod nord, og Odder by er en af Østjyllands bedste handelsbyer, der trækker kunder til fra et stort opland, som blandt andet den sydlige del af Aarhus Kommune.

Odder Kommune har gennem mange år været en attraktiv kommune, som har fået mange nye tilflyttere fra blandt andet Aarhus-området. Det er der flere årsager til, for eksempel gør Letbanen transporten mellem Aarhus og Odder hurtigere, og baner vejen for nye borgere, der gerne vil betale mindre i husleje eller overvejer at købe bolig i Odder Kommune. Ligeledes er de mange naturværdier med skove, strande, lystbådehavne, landsbymiljøer osv. også nogle af de ting, der gør Odder til et populært sted at bo. Odder har desuden et rigt kultur- og fritidsliv med mere end 200 foreninger og er kendt for af have mange tilbud til børn og unge.

Odder er også et særdeles attraktivt sted for erhvervslivet. Det skyldes blandt andet, at Odder har masser af god og billig erhvervsjord. Erhvervsområde Vest, der på nuværende tidspunkt er Odders primære erhvervsområde, er ved at være fuldt udbygget. Odder Kommune har derfor udlagt et stort areal nordøst for byen til et nyt område, Erhvervsområde Øst. Her er masser af god og velbeliggende erhvervsjord i et fladt og jævnt terræn med åbne marker omkring grundene.

En af fordelene ved Odder er, at byen ligger tæt på Aarhus. Det betyder, at selvom Odder kommune med 23.900 indbyggere er en forholdsvis lille kommune, findes der stort set alt inden for blot 15-20 minutters kørsel. For erhvervslivet betyder det adgang til et stort og velkvalificeret arbejdskraftopland, men også til et stort kundepotentiale. Odders geografiske placering betyder samtidig, at byen er tæt på havn, motorveje, jernbane og anden vital infrastruktur.

Læs mere

Vil du vide mere?

Paul Asger Mühl

pam@nordicals.dk

+45 21375306

Frederiks Plads 42, 12. sal, 8000 Aarhus

+4586208585

8000@nordicals.dk

Besøg vores mæglerside

Lignende ejendomme

Til top