Knudsminde 1B
8300 Odder

Sagsnr. 19123911

Ejendomstype

Etageareal

Grund

Energiklasse

182 m²

5.485 m²

A2015

Nyopført erhvervsejendom udlejes

Beliggenhed:
I erhvervsområdet "Knudsminde" i Odder ligger denne nyopførte erhvervsejendom på i alt 2.700 m². Ejendommen er synligt beliggende ud til Aarhusvej, som er den mest trafikerede vej i Odder.

Som nærmeste nabo har man Jem & Fix og en OK vaskehal.

Tæt ved finder man både Thansen, Jysk m.m.

Ejendommen:
Ejendommen er nyopført og indrettes efter lejers ønsker.

Lejemålene er særdeles velegnede til alle former for kontor, lager, værksted og lettere produktion.

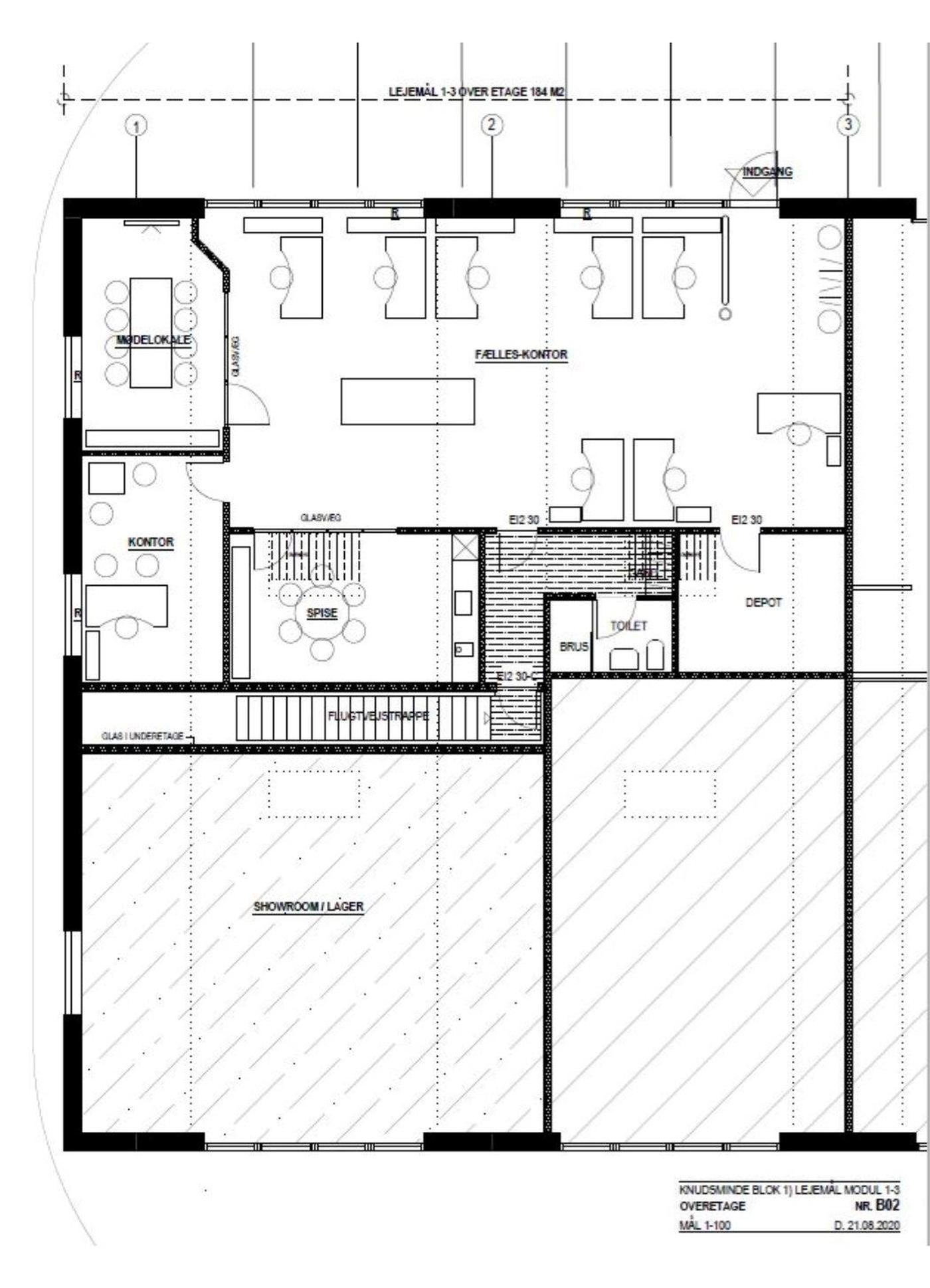
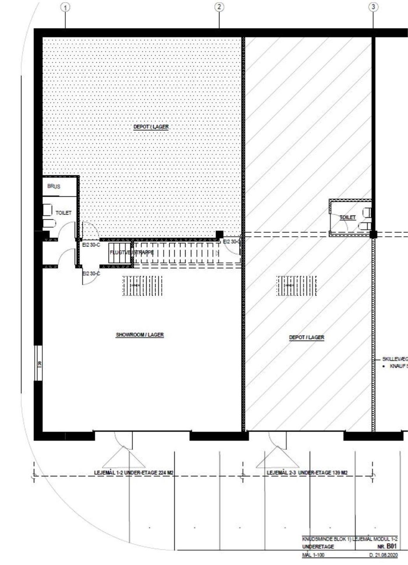
Ejendommen har som udgangspunkt 5 lejemål på 182 m² og 5 lejemål på 364 m². Der er udlejet 3 enheder indtil videre.

Hvert lejemål indrettes som udgangspunkt med delvist kontor og lager, port, vinduesparti, toilet og tekøkken. Der monteres Troldtekt loftsplader, laminatgulve, vægge males hvide, og lejemål leveres med standardbelysning og strømudtag.

Loftshøjde fra 2,75 m - 6,35 m.

Der er gratis parkering.

Læs mere

Denne ejendom er udlejet

Vil du vide mere?

Jens Eskildsen

jes@nordicals.dk

+4551261408

Frederiks Plads 42, 12. sal, 8000 Aarhus

+4586208585

8000@nordicals.dk

Besøg vores mæglerside

Lignende ejendomme

Til top