Sletvej 34
8310 Tranbjerg J

Sagsnr. 4180101

Ejendomstype

Etageareal

Grund

1.976 m²

5.058 m²

Ejendom med højt sikringsniveau & mange anvendelsesmuligheder

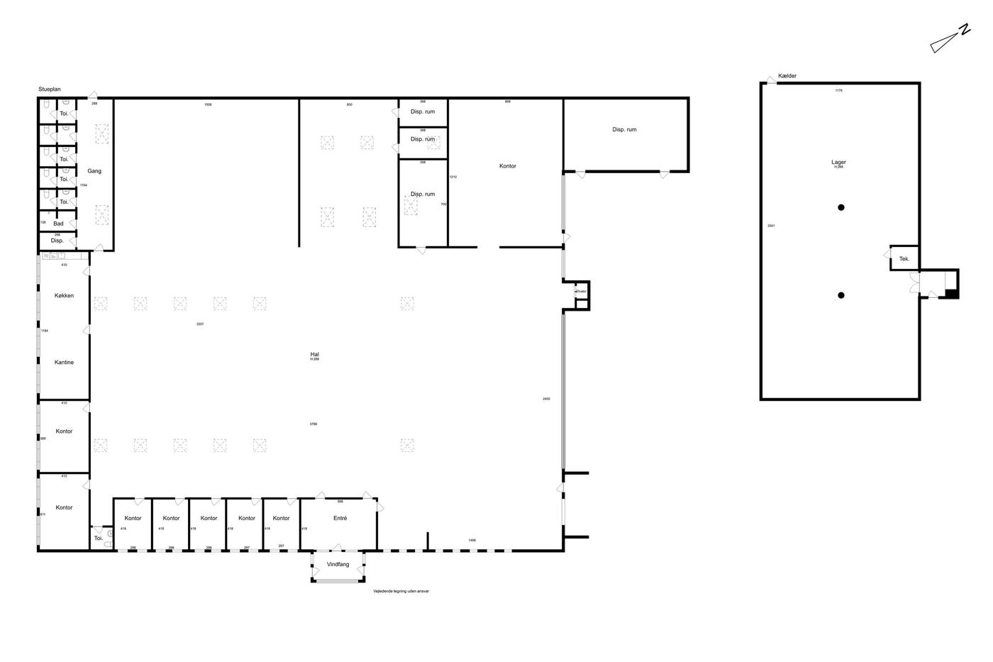
Ejendommen Sletvej 34, som senest har været anvendt af KMD Mailcenter udlejes. Ejendommens grundarealer er indhegnet med adgangskontrol på portanlæg. Udenomsrealer er primært befæstet med sf-sten og anvendes til færdsel- og parkeringsarealer.

Bygningsarealerne på i alt 1.976 m² er fordelt med:

ca. 1.389 m² produktionsareal.

Regulære og præsentable lokaler med installationsgulv, hvor der er mulighed for at trække IT,el og evt. udsugning.

ca. 219 m kontorlokaler.
Fordelt med en variation af storrums- og cellekontorer. Der er i alt 8 kontorlokalaer/møderum i varieret størrelse. Herudover er der the-køkken, kantine og gode toilet og badefaciliteter.

ca. 368 m² lager (beliggende i kælder).
Regulært lagerlokale med pallereoler. Adgang til lager sker via stor vareelevator, hvorfra der er forbindelse til produktion og til rampe.

Ejendommen er grundet historisk anvendelse meget velforsynet med strømkapacitet på 4.500 Ampere og et højkapacitets ventilationsanlæg. Derudover er indlagt 2 fiberforbindelser.

Læs mere

Denne ejendom er udlejet

Vil du vide mere?

Frederiks Plads 42, 12. sal, 8000 Aarhus

+4586208585

8000@nordicals.dk

Besøg vores mæglerside

Lignende ejendomme

Til top