Bredgade 62
8340 Malling

Sagsnr. 2002152

Ejendomstype

Etageareal

Grund

Energiklasse

430 m²

529 m²

F

Blandet projekt-/investeringsejendom i Malling ved Aarhus

Beliggenhed
Ejendommen er beliggende centralt på Bredgade, som er hovedgaden i Malling. Malling er en by i Østjylland med godt 3.500 indbyggere beliggende ca. 10 km syd for Aarhus. Byen er velforsynet med offentlige transportmidler i form af både bus og letbane. Nærheden til Aarhus gør Malling til en populær oplandsby. Byen har de seneste år oplevet en markant stigning i huspriserne, og byen oplever store nybyggerier og en generel forøgelse i tilflytningspopularitet.

Beskrivelse
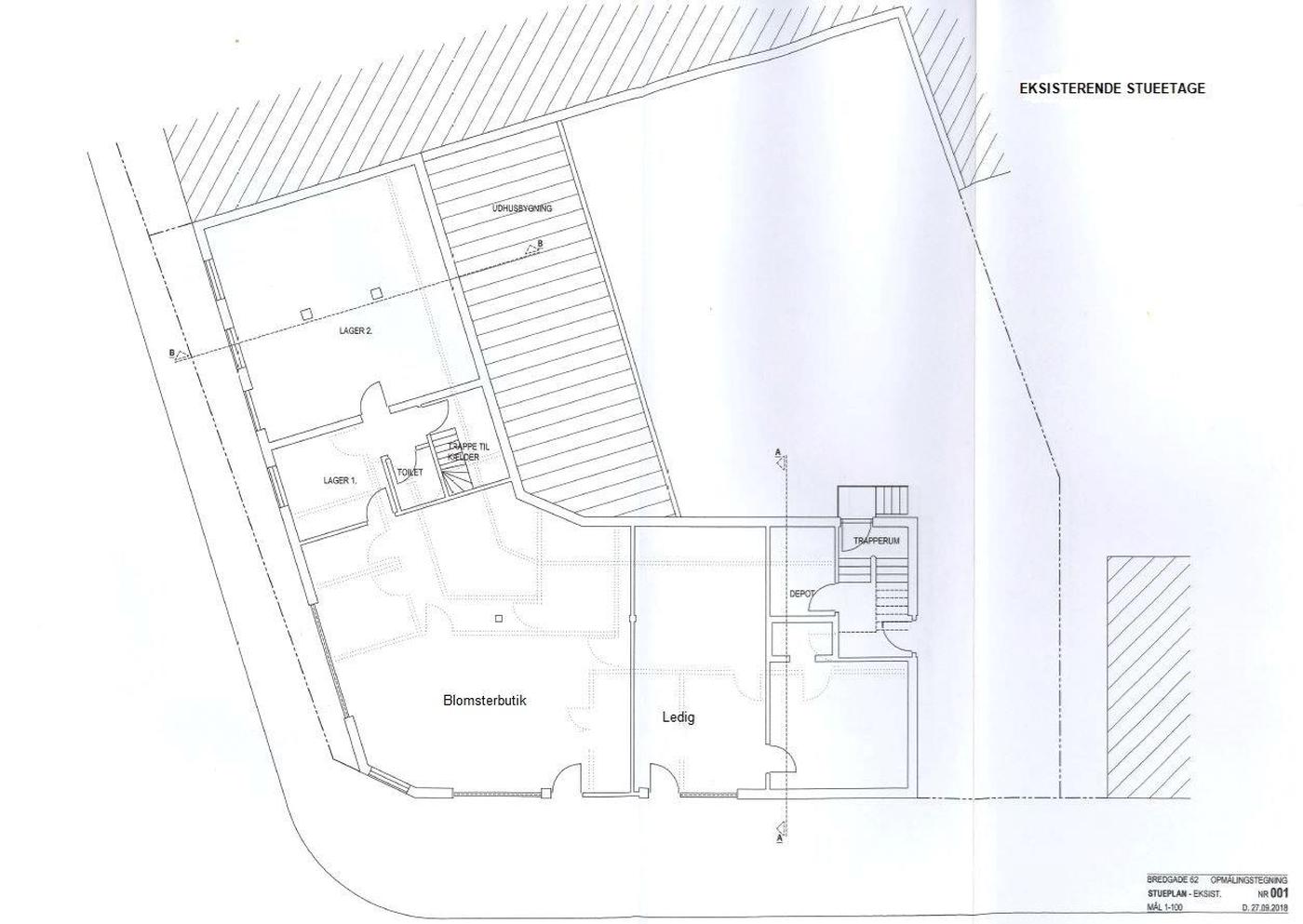
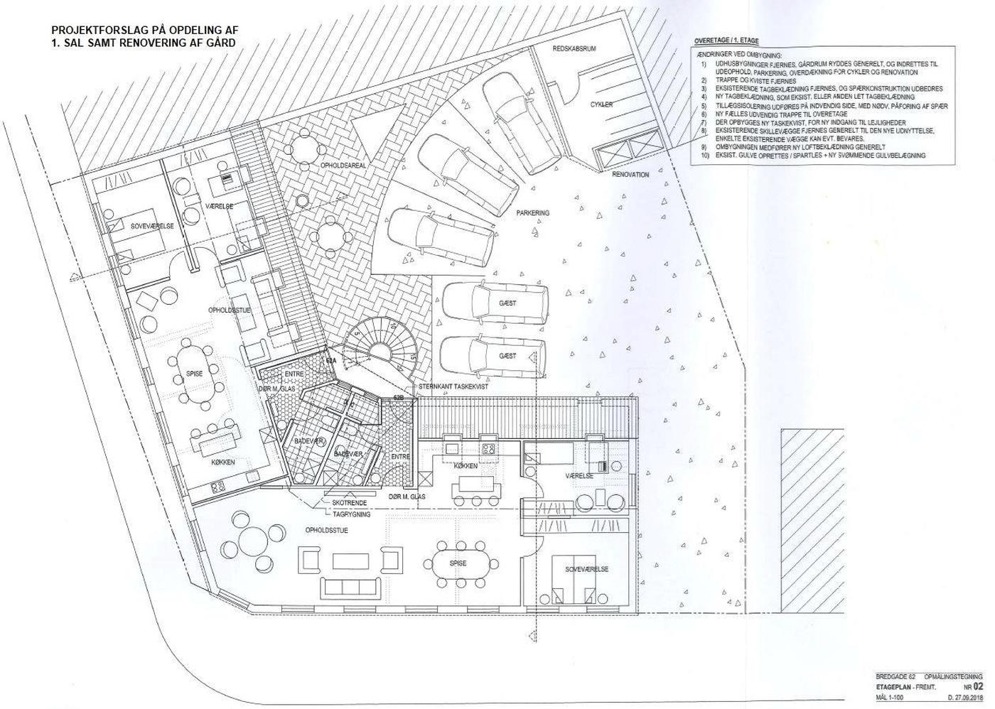
Ejendommen er en bolig- og erhvervsejendom. Ejendommen er opført i 1895 og ombygget i 1985. Ejendommen indeholder i alt 3 lejemål. Stueetagen er opdelt i 2 erhvervslejemål, henholdsvis en blomsterforretning på 140 m² og en kiosk (ledig) på 149 m². Begge erhvervslejemål ligger med synlig facade til Bredgade og har nydt godt af den gode placering i en årrække. 1. salen indeholder en stor lejlighed på 154 m² til beboelse (ledig) Mulighed for opdeling til flere lejligheder. Se tegninger.

Grundens udnyttelse
Ejendommen ligger på en grund på 529 m². På forsiden mod Bredgade er der et bredt fortov, som giver gode muligheder for udstilling uden for butikkerne. På ejendommens bagside forefindes et grusbelagt gårdareal indeholdende bl.a. udhus og carport, der dog fremstår i mindre god stand.

Inventar/driftsmidler
Hårde hvidevarer medfølger, i det omfang de tilhører ejendommen i henhold til lejekontrakterne.

Læs mere

Denne ejendom er solgt

Vil du vide mere?

Morten Kristensen

mkr@nordicals.dk

+45 23220723

Frederiks Plads 42, 12. sal, 8000 Aarhus

+4586208585

8000@nordicals.dk

Besøg vores mæglerside

Lignende ejendomme

Til top