Bøgekildevej 8
8361 Hasselager

Sagsnr. 521703PM

Ejendomstype

Etageareal

Grund

1.786 m²

4.006 m²

Kontor- og produktionsejendom til salg i udbygget industriområde i Hasselager

Beliggenhed:
Hasselager er et udbygget industriområde lige syd for Århus. Der er 5 km til Århus og kun 3 km til motorvejen.

Beskrivelse:
Ejendommen består af kontor og produktionslokaler der ligger på en 4.006 m² stor grund.

Bygningen er opført i 1966. Erhvervsarealet er ifølge BBR-Meddelelsen på 1.786 m² og består af kontorareal og produktionsareal. Facaden er opført i mursten og eternitplader og med eternit på taget. Her er der tale om en rigtig produktionsbygning til eventuelt jern og metalproduktion.

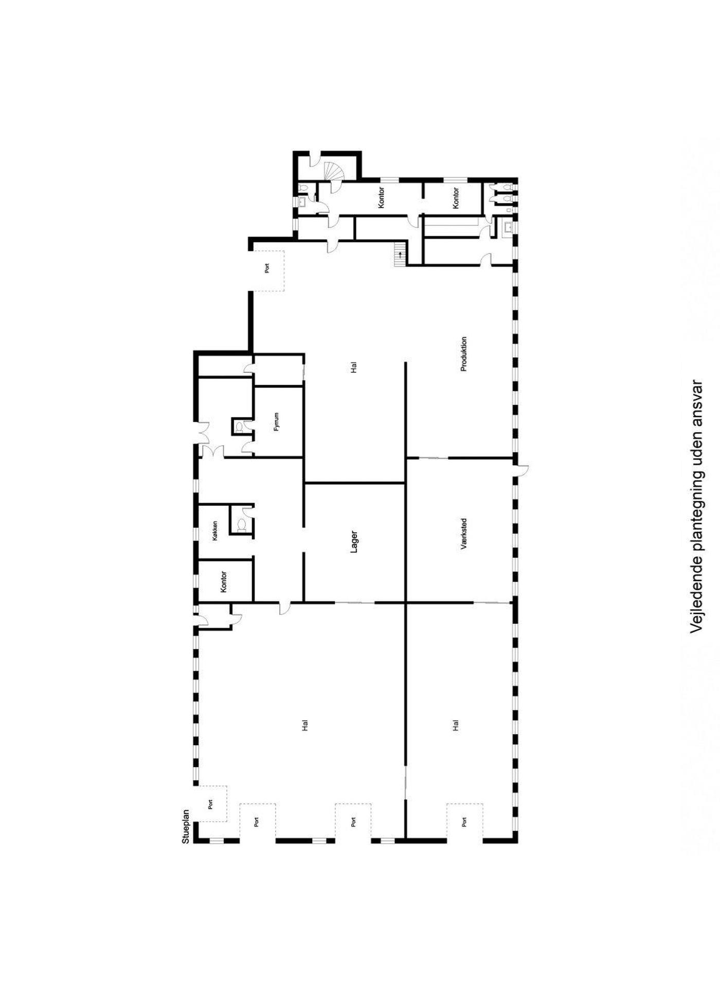
Ejendommen består at et produktionsareal med tilhørende kontoreal samt et nyere bygget kontorafsnit på første sal over produktionsbygningen. Det bemærkes at arealerne ikke helt stemmer overens med BBR-Meddelelsen. Ejendommen er løseligt opmålt til følgende. 1.617 m² produktionsarealer, 45 m² garage, 180 m² kontor i forbindelse med produktionsarealerne, 25 m² hvilerum på første sal samt et nyere kontorafsnit over produktionsarealerne på 280 m².

Kontorafsnittet i forbindelse med produktionsarealerne består af indgangsparti, forkontor, 2 kontorer, arkivrum, toilet samt værkførerkontor. Produktionsarealerne er opdelt i flere lejemål. Til det store areal som er ledigt er der også tilhørende kantine og toiletforhold.

Produktionsarealerne har flere porte og generelt en god lofthøjde. Gulvet er belagt med beton med 4 cm. slidlag, 10 cm. leca og 8 cm. beton. Lokalet er opvarmet. Fra lokalet er der opgang til et hvilerum på første sal. Produktionsarealet har været udsat for brand men ikke i graverende grad.

Produktionsarealet er flot renoveret med blandt andet ny gulvbelægning. Taget er renoveret efter en mindre brand i 2017.

Der skal selvfølgelig foretages en tagrenovering med videre.

Det nyere kontorafsnit på første sal kan eventuelt indeholde/opdeles i 3 kontorlejemål. Det første afsnit indeholder 3 rum med køkken. Det andet indeholder ét stort rum med køkken og toiletforhold. Det tredje indeholder 4 rum, køkken og toiletforhold. Lokalerne er opvarmet med varmepumpe. Der er trægulv på gulvet. Kontorarealerne er flot renoveret.

Udenomsarealerne er belagt med fliser så der er rigtig gode til og frakørselsforhold.

Der er p.t lejekontrakter på 3 ud af de 4 lejemål. Disse kan erhverves hos Nybolig Erhverv Aarhus P/S.

Læs mere

Denne ejendom er solgt

Vil du vide mere?

Paul Asger Mühl

pam@nordicals.dk

+45 21375306

Frederiks Plads 42, 12. sal, 8000 Aarhus

+4586208585

8000@nordicals.dk

Besøg vores mæglerside

Lignende ejendomme

Til top