Agerøvej 25
8381 Tilst

Sagsnr. 2409142

Ejendomstype

Etageareal

Energiklasse

770 m²

D

Årlig leje

Leje pr. m²

Depositum

Årlig driftsudgift

Årlig driftsudgift pr. m²

731.500 kr.

950 kr.

365.750 kr.

69.300 kr.

90 kr.

Moderne butik med suveræn facadeværdi

• 3 måneders gratis leje
• Indbydende salgsareal i to plan
• Fremtrædende placering i anerkendt handelsområde
• Stor glasfacade mod Viborgvej
• Nem tilkørsel fra Agerøvej og gode parkeringsforhold

Søger du butik eller showroom med højt til loftet, et moderne udtryk i nyere ejendom og god eksponering mod den meget befærdede Viborgvej i det vestlige Aarhus? Så kig nærmere på dette lejemål.

Lejemålet er en del af et butikscenter, som blev udviklet i 2006, og som nu indeholder butikker for Kvik, Skousen, Hobbii og Golfexperten. De øvrige naboer i området er bl.a. Babysam, Designa Køkken, Fliseuniverset og selvfølgelig Bilka, som ligger få hundrede meter fra ejendommen.

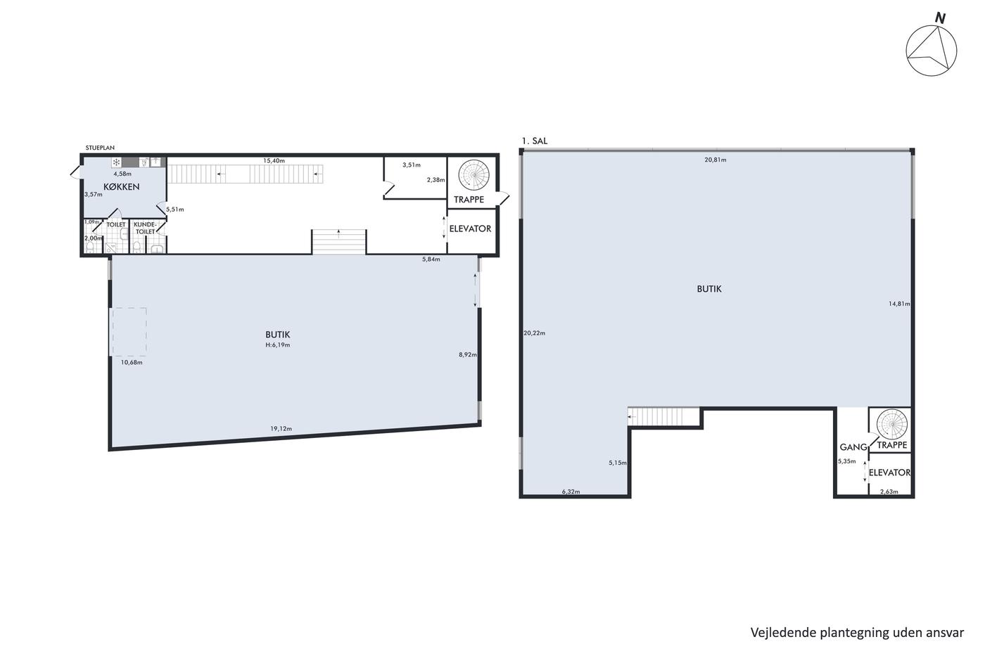
Lejemålets samlede areal på 770 kvm er indrettet med 330 kvm i stueplan og 440 kvm på 1. sal. Etagerne er velintegrerede med en stor, central ligeløbstrappe og elevator.

Stueplan udmærker sig med et imødekommende indgangsparti fra parkeringspladsen, en loftshøjde på over 6 meter og portadgang fra bygningens bagside.

1. sal har et åbent og regulært butiksareal og et super lysindfald fra ovenlysvinduerne samt den store glasfacade mod Viborgvej.

Et parkeringsareal med ca. 65 pladser hører til ejendommen og er til fælles brug for butikkerne på adressen.

Lejemålet nyder særdeles stærk eksponering mod Viborgvej og fremstår som en højt profileret del af detailområdet Tilst, der er kendt som Jyllands centrum for forretninger inden for bl.a. køkken/bad, hårde hvidevarer, byggemarkeder, møbelforretninger, hobbybutikker, Hi-fi mv.

Læs mere

Vil du vide mere?

Thomas Møller Kristensen

tmk@nordicals.dk

+45 27134591

Frederiks Plads 42, 12. sal, 8000 Aarhus

+4586208585

8000@nordicals.dk

Besøg vores mæglerside

Lignende ejendomme

Til top