Vestervej 5A
8462 Harlev J

Sagsnr. 2408147

Ejendomstype

Etageareal

Grund

Energiklasse

333 m²

821 m²

B

Kontantpris

Købspris pr. m²

Afkast

Årlig lejeindtægt

Årlig lejeindtægt pr. m²

Årlig driftsudgift

Årlig driftsudgift pr. m²

3.995.000 kr.

11.997 kr.

6,24 %

305.820 kr.

918 kr.

59.156 kr.

178 kr.

Flot renoveret boligudlejningsejendom

- Centralt og godt beliggende i Aarhus forstaden Harlev
- Ejendommen fremtræder flot og velholdt-
- Gode lejemål med lav husleje
- Lav kvadratmeterpris
- Ejendommen kan evt. handles som selskabshandel med en udskudt skat på ca. kr. 400.000,-



Flot boligudlejningsejendom med 3 gode lejemål i Harlev ved Aarhus.

OMRÅDET:
Centralt beliggende i Harlev, med gåafstand til alle byens faciliteter som bl.a. flere supermarkeder, et af Aarhus kommunes bedste idrætsanlæg med bl.a. svømmehal, idrætshal, tennisbaner mv.. Lige ved ejendommen går der bybusser til Aarhus C, og der er kun 1,5 km. til motorvejstilkørslen.

EJENDOMMEN:
Ejendommen er ombygget og renoveret og fremstår således i rigtig flot stand. Her er godt parkeringsareal og en fin have med græs. Hver lejlighed har egen adresse.

Alle 3 lejligheder er udlejet, og hvert lejemål har terrasse samt sin egen kælder, som udover vaskerum også indeholder plads til opbevaring, hobbyrum eller lignende. Det ekstra areal i kælderen er med til at gøre boligerne unikke og efterspurgte.

Vestervej 5A:
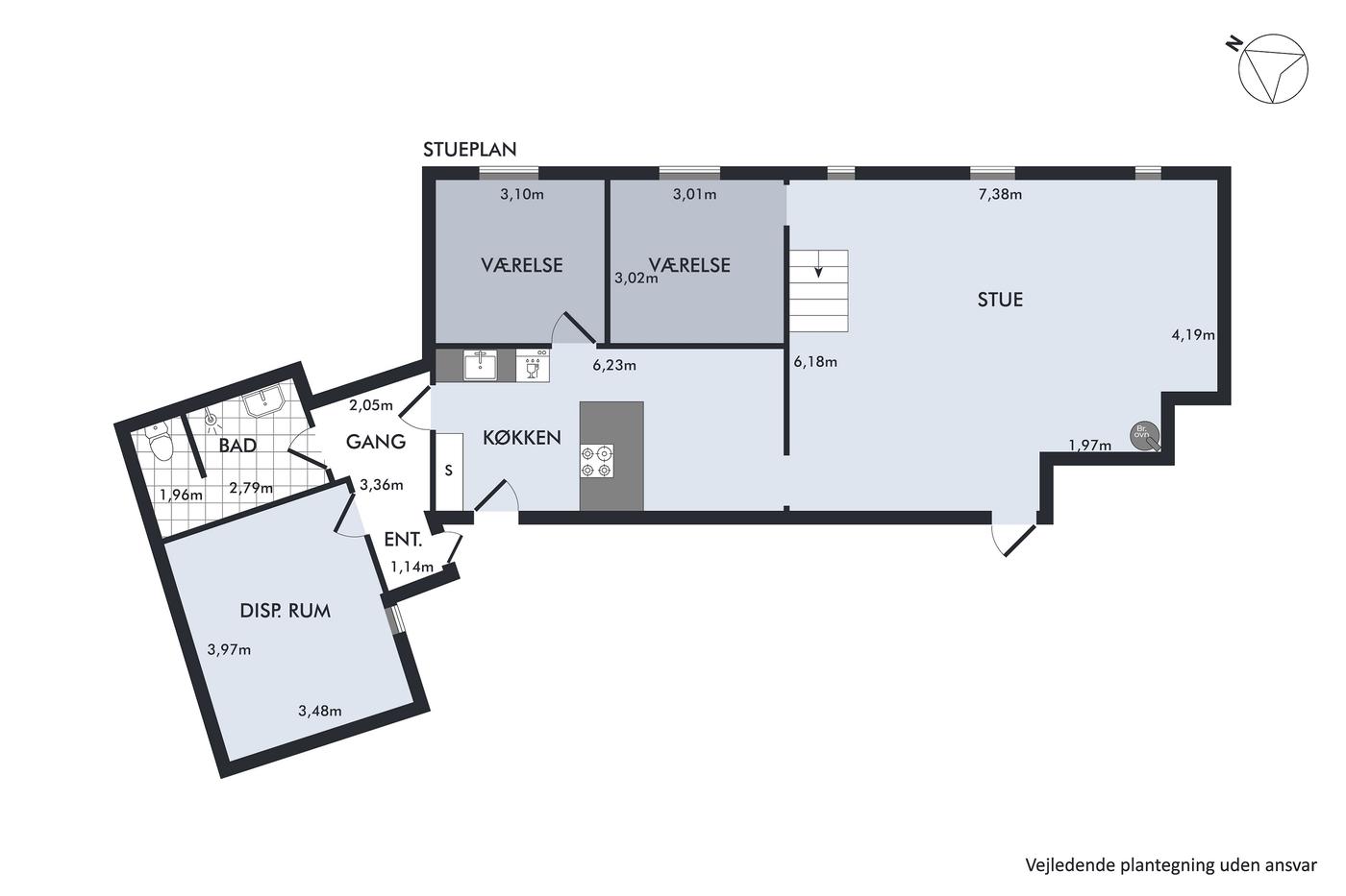
Stor 6-værelses lejlighed på 135m² bolig i 2 plan. Lejligheden har egen indgang, altan samt egen kælder på 28m².

Vestervej 5B:
2- værelses lejlighed på 62 m² bolig med egen indgang, terrasse samt 28 m² kælder.

Parcelvej 1A:
Stor lejlighed på 136m² bolig, med bl.a. stort køkken/alrum og en lækker stue med loft til kip. Her er også egen terrasse og disponibelt rum i kælderen (15m²).

Ny pris

Læs mere

Vil du vide mere?

Peter Løndal

plo@nordicals.dk

+45 20774243

Frederiks Plads 42, 12. sal, 8000 Aarhus

+4586208585

8000@nordicals.dk

Besøg vores mæglerside

Lignende ejendomme

Til top