Havneplads 1
8500 Grenaa

Sagsnr. 2105158

Ejendomstype

Etageareal

Grund

Energiklasse

940 m²

1.970 m²

F

Projektejendom til boliger i Grenaa sælges

Hotel Grenaa Strand ligger ved havnen i Grenaa, og er byens traditionelle badehotel, bygget i 1912. Badehotellet "Grenaa Strand" der blev opført af et aktieselskab, med A. Thykier som formand, og med M. C. Thoft som arkitekt, blev indviet den 5. juli 1914.

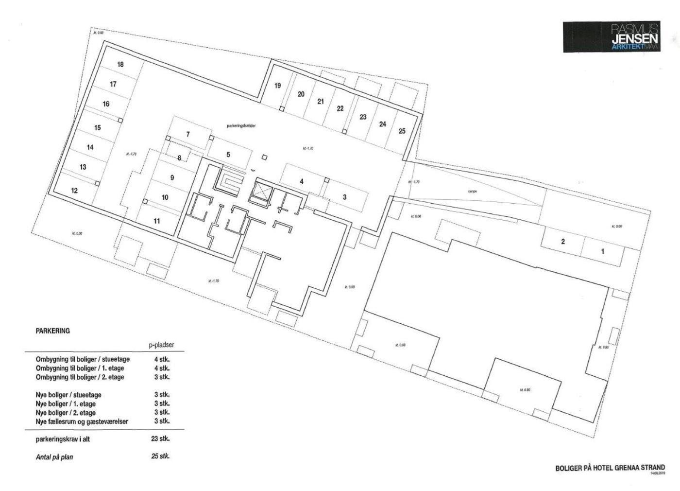
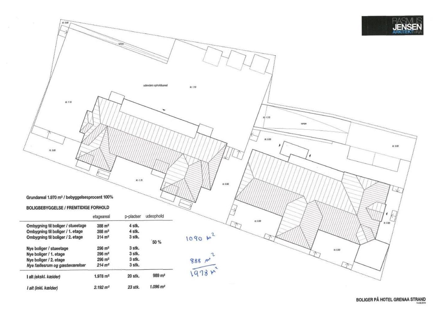
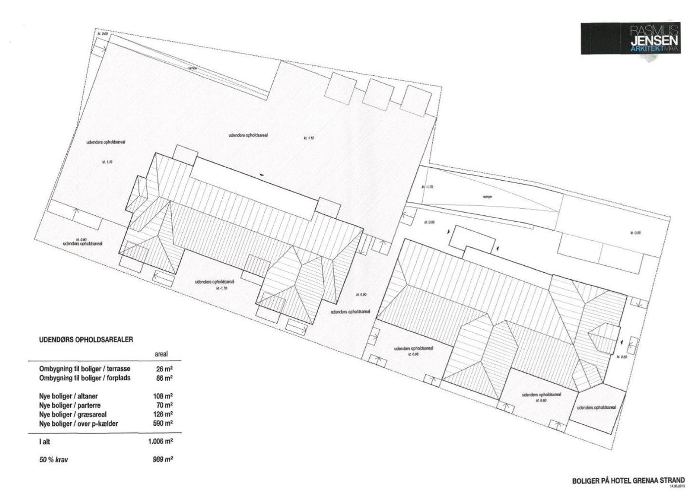
Hotellet har et bebygget areal på 400 m², et erhvervsareal på 860 m² samt et boligareal på 80 m². Grunden er på 1.970 m².

Hotellet sælges som en projektejendom, hvor det er muligt at ombygge det eksisterende hotel til 1.090 m² ejerlejligheder/boliger. Ved siden af hotellet og på samme grund er det muligt at opføre en ny boligbebyggelse på 888 m². Der foreligger et forslag som er udarbejdet af arkitekt.

Sælger har løbende ombygget værelserne/boligerne i hotellet og der foreligger ikke en godkendelse af alle ombygninger. Ejendommen sælges derfor som en projektejendom, uden ansvar for sælger med hensyn til den eksisterende bebyggelse.

Da hotellet fortsat er i drift skal alle fremvisninger først aftales med Nordicals

Læs mere

Denne ejendom er solgt

Vil du vide mere?

Paul Asger Mühl

pam@nordicals.dk

+45 21375306

Frederiks Plads 42, 12. sal, 8000 Aarhus

+4586208585

8000@nordicals.dk

Besøg vores mæglerside

Lignende ejendomme

Til top