Stationsplads 2
8500 Grenaa

Sagsnr. 2008031

Ejendomstype

Etageareal

Grund

Energiklasse

1.041 m²

2.393 m²

C

Projektejendom med lager/opbevaring sælges i Grenaa

Beskrivelse.
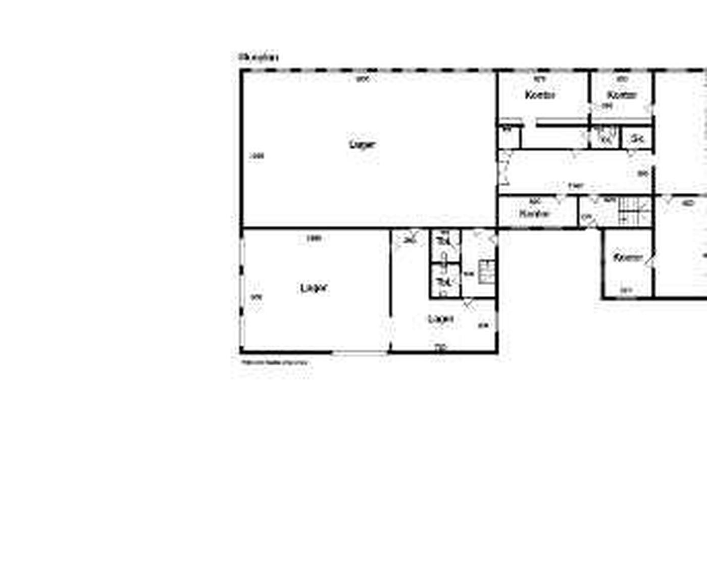
Ejendommen er opført i 1909 og senere i 1976 tilbygget med en lagerbygning.

Bygningen har været anvendt til postomdeling og kontorfaciliter. Bygningen har facade af mursten og tegl på taget. Vinduerne i kontorbygningen er skiftet til plastikrammer, hvorimod vinduerne i lagerbygningen er af ældre dato.

Der er kælder, stue og første sal samt loftrum i kontordelen. Kælderen er indrettet med ældre toiletter/badeforhold, fyrrum og flere opbevaringsrum samt et lille værksted. Der er krybekælder. Der er en udgang og 2 trappeopgange til stueetagen. Stueetagen har flere kontorer og et storrumskontor samt toiletforhold og adgang til lageret.

Der er 3 indgange til stueplan. Der er indgangsparti, hvor der er opgang til første sal og nedgang til kælder. Der er klinker og linoleum på gulvet. Der er et stort areal der har været anvendt til kundebetjening samt flere kontorer og en sikkerhedsboks. Der er en nedgang til kælder og en udgang.

Derudover er det en tilbygning fra 1976 som har været anvendt til postsortering. Det udgøres af et stort lagerrum og en mindre rum med 3 porte. Derudover er der flere mindre rum , der kan anvendes til lager. Der er flere toiletter. Der er gode til og frakørselsforhold til lageret. Langs lagerbygningen er der yderligere en træbygning som kan anvendes til kold lager eller opbevaring. Der er også nedgang til en kælder som indeholder flere rum til opbevaring. Der er også en udgang fra kælderen og opgang til stueetagen.

Første salen er indrettet til kontorer og velfærdsfaciliteter. Der er vel 9 kontorer, tekøkken og toiletforhold. På loftet er der arkivrum. Loftet kan udnyttes mere til arkiv end det bliver udnyttet i dag. Der er udviklingsmuligheder.

Udenomsarealer.
Ved siden af kontorbygningen er der en fin aflåst gård til cykelparkering. Langs kontorbygningen på den anden side er der en bred indkørsel med aflåst port til lagerbygningen. Der er også god plads til parkering og oplagring ved lagerbygningen.

Læs mere

Denne ejendom er solgt

Vil du vide mere?

Paul Asger Mühl

pam@nordicals.dk

+45 21375306

Frederiks Plads 42, 12. sal, 8000 Aarhus

+4586208585

8000@nordicals.dk

Besøg vores mæglerside

Lignende ejendomme

Til top