Bakketoften 12
8541 Skødstrup

Sagsnr. 1906174

Ejendomstype

Etageareal

Grund

Energiklasse

609 m²

1.792 m²

C

Bolig/kontor med erhvervshal i det nordlige Aarhus

OMRÅDET:
Attraktiv beliggenhed i populært erhvervsområde i Skødstrup som hører til den nordlige del af Aarhus Kommune. Området er næsten fuldt udbygget og ligger få hundrede meter fra tilkørsel til Djurslandsmotorvejen der forbinder ejendommen med hele motorvejsnettet. Skødstrup er en populær forstad med gode busforbindelser, letbane og cykelafstand til Aarhus C.

EJENDOMMEN:
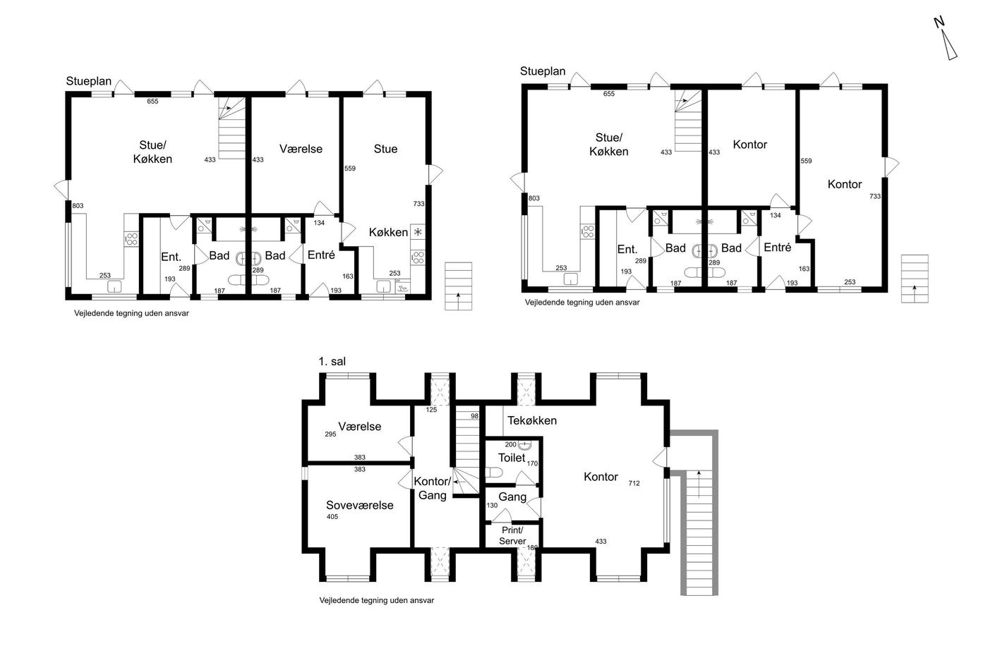
Den flotte hovedbygning på 210m² er opført i år 2008 i lækre kvalitetsmaterialer. Bygningen er ideel til såvel bolig som kontor. I dag er bygningen indrettet med 105m² bolig og 105m² kontor men er forberedt til anvendelse til ren bolig eller kontor.

Bagerst på grunden ligger der en god og regulær erhvervshal på 399 m² fra år 2005, hallens tag og facade er opført i vedligeholdelsesfrit plademetal. Hallen er søjlefri, med betongulv, uisoleret. og indeholder et lille kontor samt toilet.

Grunden er indhegnet og udenomsarealerne er belagt med befæstningssten. Her er god udenomsplads og der kan også være mulighed for at bygge yderligere 2-300m² bygninger på grunden.

En flot ejendom med mange anvendelsesmuligheder.

Perfekt til f.eks. håndværksmestre og selvstændige med mindre virksomheder.

Læs mere

Denne ejendom er solgt

Vil du vide mere?

Peter Løndal

plo@nordicals.dk

+45 20774243

Frederiks Plads 42, 12. sal, 8000 Aarhus

+4586208585

8000@nordicals.dk

Besøg vores mæglerside

Lignende ejendomme

Til top