Grenåvej 627A
8541 Skødstrup

Sagsnr. 1911231

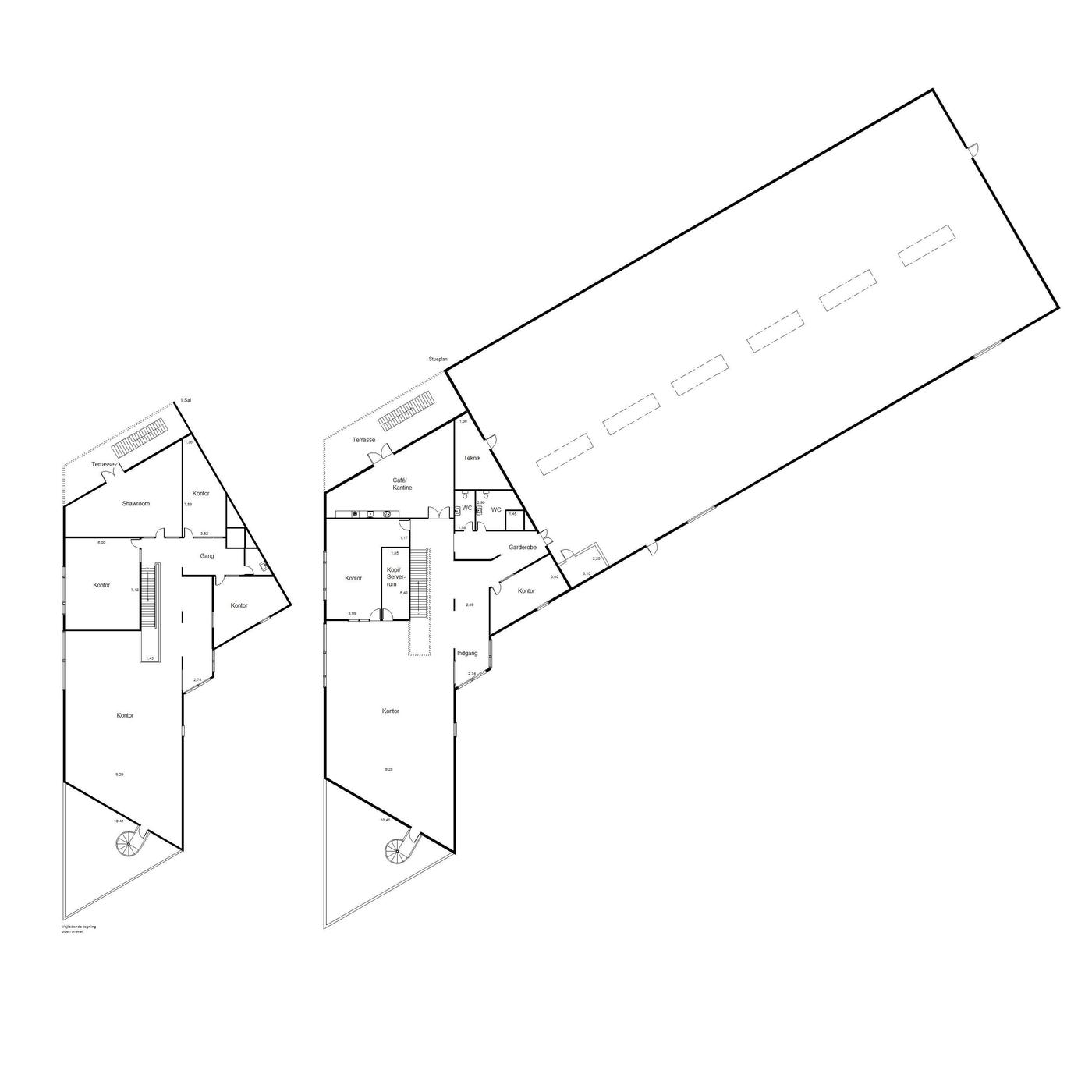
Ejendomstype

Etageareal

Grund

Energiklasse

650 m²

7.770 m²

B

Nyere lager-/logistikejendom i Aarhus

Ejendommen
Arkitektonisk flot logistik-/lagerejendom med stor synlighed og let tilkørsel fra motorvejen.

Ejendommen, der er topsikret, byder indvendigt på nogle fantastiske og moderne rammer. Lager-/produktionshallen er højloftet, søjlefri, opvarmet og med støbt betongulv. Her er gode adgangsforhold med både læsserampe og direkte indkørsel gennem en høj port. En stor og meget fleksibel hal. Perfekt til f.eks. E-handelsvirksomhed.

Beliggenhed
Beliggenheden er meget attraktiv med kort afstand til Aarhus og let adgang til resten af landet via motorvejsnettet. Her er gode parkeringsforhold til medarbejderne, adgang til både bus og letbane samt cykelsti fra Aarhus C.

Fleksibilitet
Her er mulighed for at lave en tilpasset/fleksibel aftale omkring leje af arealer mellem 400 - 1.000 m², ligesom der også er mulighed for at leje moderne og eksklusive kontorlokaler i ejendommen.

Kontakt Nordicals for nærmere oplysninger eller en besigtigelse.

Læs mere

Denne ejendom er udlejet

Vil du vide mere?

Peter Løndal

plo@nordicals.dk

+45 20774243

Frederiks Plads 42, 12. sal, 8000 Aarhus

+4586208585

8000@nordicals.dk

Besøg vores mæglerside

Lignende ejendomme

Til top