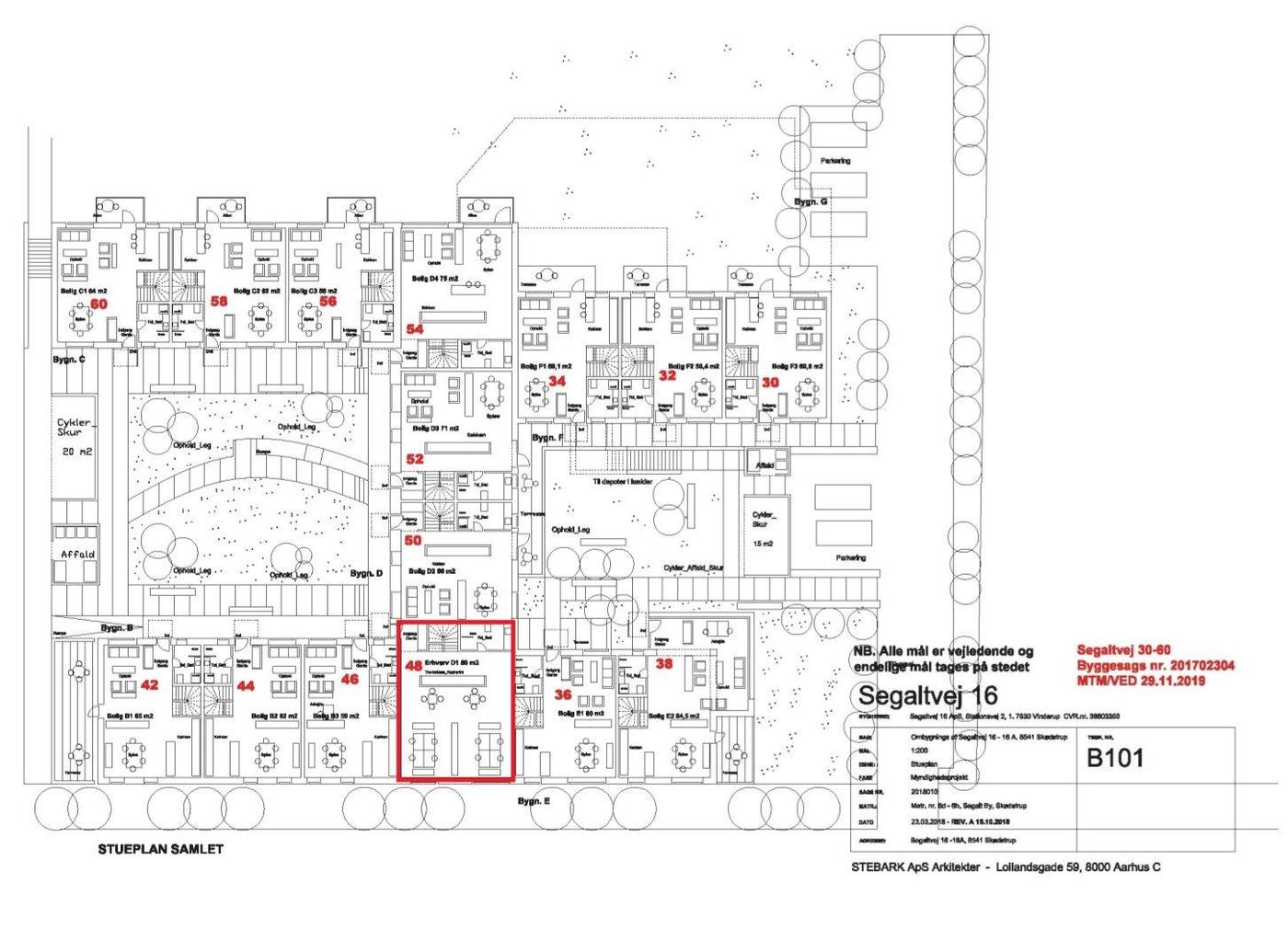
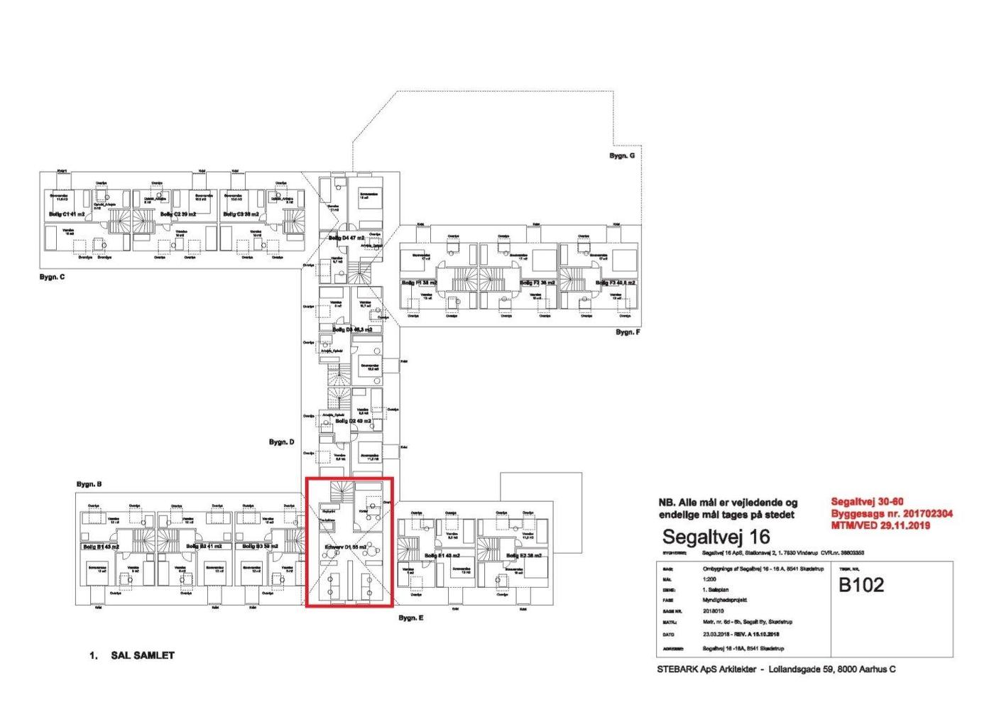
Segaltvej 48
8541 Skødstrup

Sagsnr. 2001107

Ejendomstype

Etageareal

169 m²

Kontor i 2 etager - beliggende i flot nyopført ejendom

Området:
Ejendommen er beliggende ca. 1 km fra motorvejen, således at Aarhus samt E45 hurtigt og nemt kan tilgås. Samtidig ligger Løgten 800 meter væk, og kan fx nås på cykel via naturstien, der ligger bag
ejendommen. Løgten er en stationsby i Østjylland med 8.200 indbyggere og hører under Aarhus kommune.
Byens tætte placering på skov, strand, storbyen Aarhus samt dens infrastruktur med motorvej og jernbane
(Djurslandmotorvejen på strækningen Skødstrup-Lisbjerg samt nærbane med stop ved både Løgten S og
Skødstrup S) har medvirket til en kraftig udbygning af hundredvis af nye huse.

Lejemålet bliver indrettet med pæne gulve og gulvvarme. Der monteres køkken samt badeværelse i lejemålet.

Indretningen i stueplan: Åbent miljø med plads til 8-10 skriveborde, køkken samt badeværelse.
Indretningen på første sal: Åbent miljø, 4 værelser/kontor samt møderum.

Der bliver monteret komplet hårde hvidevareløsning: Køle/fryseskab, indbygningsovn, emhætte, kogeplader, opvaskemaskine, vaskemaskine og tørretumbler

Det er muligt for lejeren at komme med forslag til indretningen.

Anvendelsesmulighederne er mange: Kontor, klinik, læge osv.

Overtagelse den 1.7.2020.

Læs mere

Denne ejendom er udlejet

Vil du vide mere?

Marc Hansen

mhn@nordicals.dk

+45 51393345

Frederiks Plads 42, 12. sal, 8000 Aarhus

+4586208585

8000@nordicals.dk

Besøg vores mæglerside

Lignende ejendomme

Til top