Tingvej 41
8543 Hornslet

Sagsnr. 2101186

Ejendomstype

Etageareal

Grund

Energiklasse

502 m²

1.164 m²

F

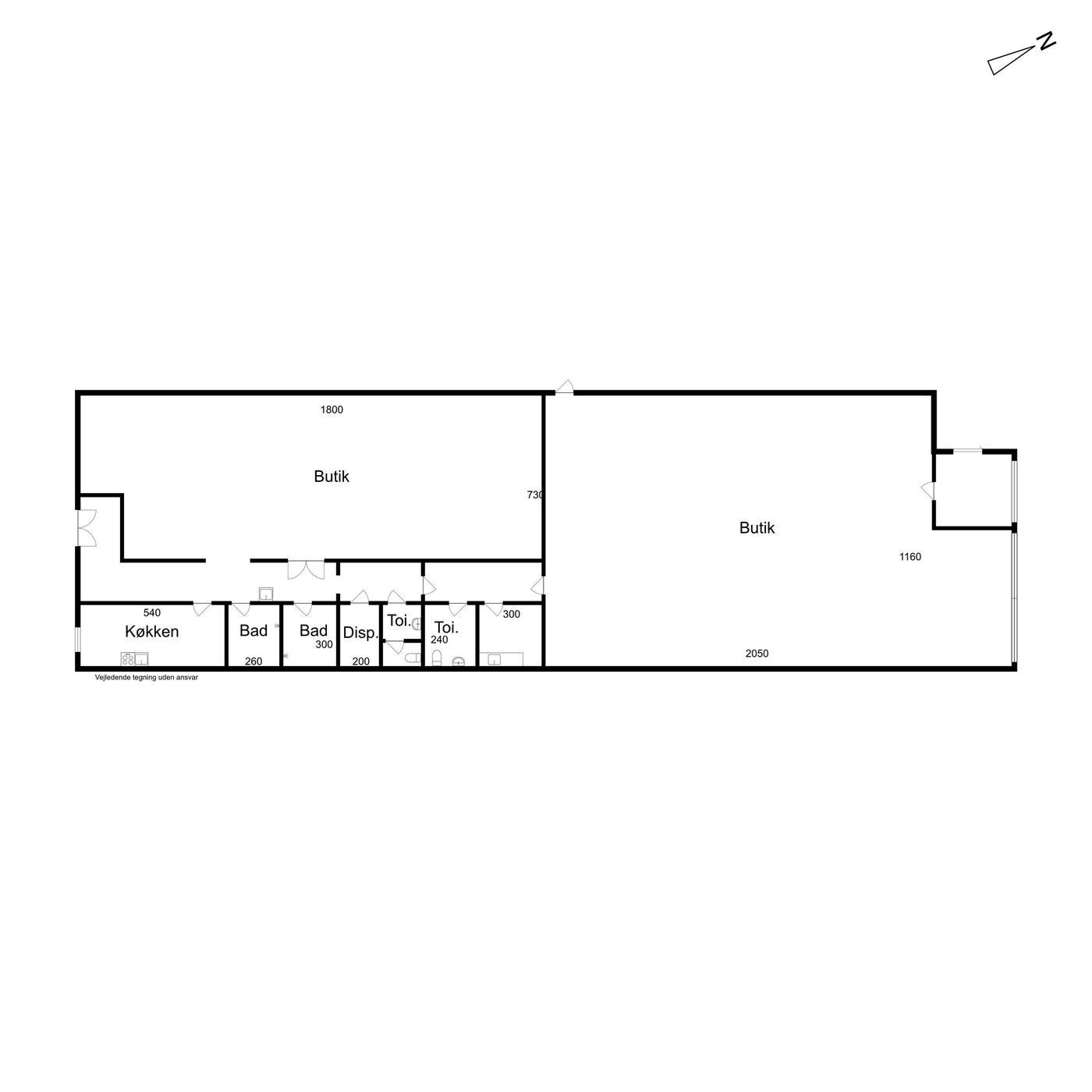
Investeringsejendom i Hornslet

Investeringsejendom beliggende centralt i Hornslet.

Den er i dag opdelt i 2 lejemål og er fuldt udlejet.

En stor del af ejendommen er i 2016 gennemrenoveret indvendigt i forbindelse med at der blev indgået lejekontrakt med Fitnesscenter. Der er lavet toilet, gulve, lofter m.m.

I 2019 er resten af bygningen renoveret indvendigt i forbindelse med at der blev indgået lejekontrakt med en lokal Karateskole. Her er der lavet omklædningsrum, lagt trægulv, køkken, toilet med håndvask m.m.

Ejendommen er oprindelig opført i 1974 i hvide kalksandsten og med fladt tag.

Der er fri parkering på og ved ejendommen.

Tæt på ligger dagligvarebutik og indenfor gåafstand ligger de fleste af byens butikker samt letbane station.

Læs mere

Denne ejendom er solgt

Vil du vide mere?

Jens Eskildsen

jes@nordicals.dk

+4551261408

Frederiks Plads 42, 12. sal, 8000 Aarhus

+4586208585

8000@nordicals.dk

Besøg vores mæglerside

Lignende ejendomme

Til top