Bohrsvej 5
8600 Silkeborg

Sagsnr. 863995

Ejendomstype

Etageareal

Grund

Energiklasse

588 m²

1.502 m²

B

Præsentabel investeringsejendom med solid lejer

Velbeliggende udlejningsejendom i Silkeborgs nordlige erhvervsområde tæt på motorvejs til- og frakørsel til Århus og Herning, samt den ydre ringvej, Nordre Højmarksvej.

Ejendommen fremtræder både indvendigt og udvendigt særdeles pæn og velholdt, med muret facade og tegltag.

Nordic Green Engineering er lejer i ejendommen. En god og solid lejer, som har NPI regulering og uopsigelighed frem til oktober 2024.

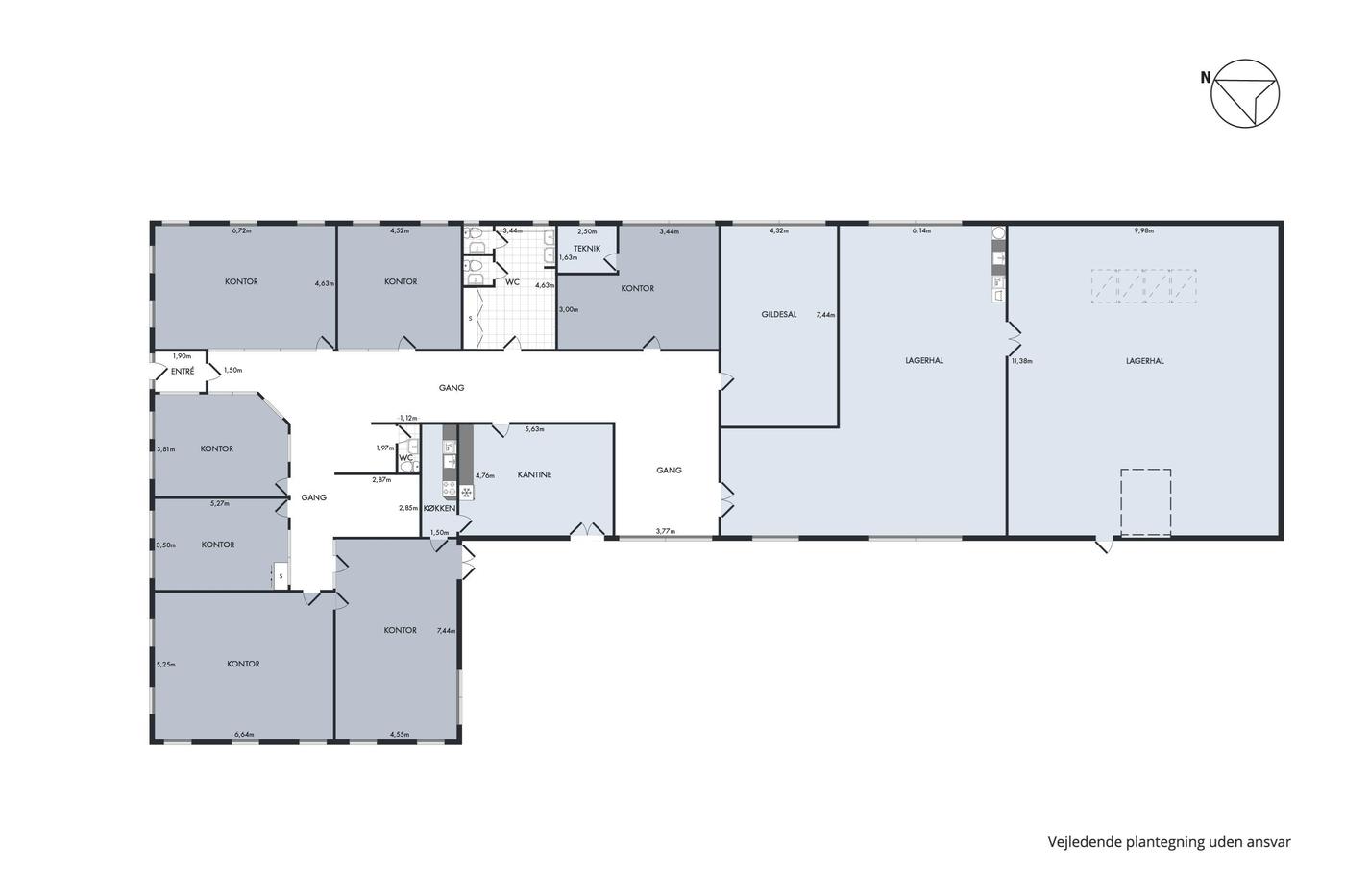
I ejendommen er indgang og fordelingsgang til flere kontorer i forskellige størrelser, så der er mulighed for enkeltmandskontorer og åbne kontormiljøer. I forbindelse med kontorlokalerne er der plads til print og kopi samt kundetoilet. Herudover 2 mødelokaler, frokostrum, køkken, personaletoiletter samt fyrrum.

Bagerst i bygningen er et laboratorium samt et mindre lager med almindelig port og loft til kip med en max. højde på 4 meter. I rummene er der epoxygulve.

Ejendommen er opvarmet med naturgas. Der er også flere varmepumper i ejendommen primært på kontorerne.

Silkeborg i vækst
Silkeborg er blandt landets stærkeste vækstbyer. Efter åbning af Århus-Silkeborg-Herning motorvejen i 2016 har befolkningstilvæksten i Silkeborg kommune været massiv. Det samme gælder investeringslysten, udvikling i iværksætteri og vækst i erhvervslivet generelt, hvilket tiltrækker både virksomheder og arbejdskraft fra et stort geografisk område. Med sin nærhed til Århus, og udsigt til fortsat vækst på alle parametre, byder området på attraktive investeringsmuligheder med relativ lav risiko og stort potentiale.

Område:
Silkeborgs Nordlige erhvervsområde er særligt kendetegnet ved de gode logistik-og adgangsforhold. Placeringen imellem ydre og indre ringvej, samt nærhed til motorvejstilkørsel, center nord og byens største boligområder, gør området særligt attraktivt og nemt tilgængeligt for kunder og medarbejdere. Som nærmeste naboer er bl.a. Kølegruppen, Stildan A/S, Carglas, Grauballe Bryghus, Silkeborg Slagteren, High on life, Bikeworld m.fl.

Lejeforhold:
Af forsiden samt i pkt. 6.5 fremgår der 2 beregninger for 1. års nettoafkast. Der er foretaget ombygning for lejer, som derfor betaler en tillægsleje frem til 31.03.2025. Nettoafkastet i parentesen (6.20%) er uden tillægslejen.

Udenomsarealer:
Arealerne omkring ejendommen er flisebelagt og bruges primært til parkering.

P-forhold:
God kunde- og personaleparkering på ejendommen.

Læs mere

Denne ejendom er solgt

Vil du vide mere?

Mads Faber

mfa@nordicals.dk

+4560177124

Frederiksberggade 18, 8600 Silkeborg

+4586804484

8600@nordicals.dk

Besøg vores mæglerside

Lignende ejendomme

Til top