Bohrsvej 14
8600 Silkeborg

Sagsnr. 864206L

Ejendomstype

Etageareal

Grund

Energiklasse

724 m²

1.847 m²

E

Årlig leje

Leje pr. m²

Depositum

300.000 kr.

414 kr.

150.000 kr.

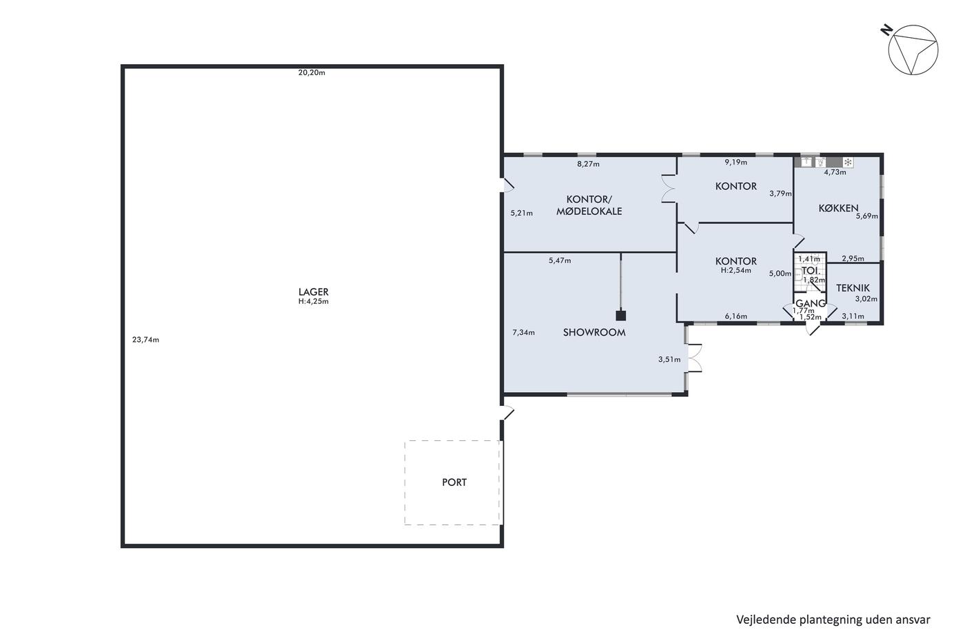
Attraktiv lager/kontor ejendom med godt showroom

I attraktivt erhvervsområde i den nordlige del af Silkeborg er denne velholdte erhvervsejendom til leje.

Ejendommen består af et lager, showroom og kontorlokaler. Med en gennemgående god standard og mange anvendelsesmuligheder, er denne ejendom et kvalitetsvalg for lejeren, der sætter pris på fleksibilitet, kvalitet og beliggenhed.

Lageret er højloftet, opvarmet med kalorifere og med 4,0 m (B) x 3,5 m (H) portadgang. Med sine ca. 500 m² er der rig mulighed for opbevaring, logistik lager eller måske som pluklager til webshop. De effektive kvadratmeter og de gode adgangsforhold gør lageret utroligt anvendeligt for mange forskellige virksomhedstyper og brancher.

Det lyse showroom er på ca. 60 m². Her er et pænt lysindfald og rummet fremstår lyst og indbydende. Det vil være ideelt til fremvisning af produkter eller måske som et kreativt kontorlandskab. Med lidt kreativitet kan dette rum bruges til mangfoldige formål. Kontorlokalerne er klar til indflytning og egner sig godt til forskellige virksomhedsformer. Der er også kantine, toilet og depotrum/teknikrum.

En ejendom der opfylder de moderne krav til en effektiv og veldrevet virksomhed.

Ejendommens beliggenhed i Silkeborg Nord er betydelig. Det er tæt på motorvejen, hvilket betyder, at du har nem og hurtig adgang til og fra Aarhus og Herning, hvilket er en stor fordel, hvis virksomheden har en stor distributionskreds eller har brug for lejlighedsvise leverancer. Midt i hjertet af Jylland, er Silkeborg kendt for sit fremragende erhvervsklima. Ejendommens beliggenhed i det attraktive erhvervsområde tiltrækker en bred vifte af virksomheder. Med kort vej til resten af landet, en velfungerende infrastruktur og flere store virksomheder beliggende i området, er Silkeborg et attraktivt sted at drive virksomhed. Den velholdte bygning og de praktiske faciliteter understøtter en moderne og effektiv virksomhedsdrift. Den strategiske beliggenhed nær hovedtransportårer tilbyder nem adgang til resten af landet.

En ejendom der har det hele: kvalitet, fleksibilitet og beliggenhed.

Udenomsarealer/P-forhold:
Grundareal på 1.847 m² med flisebelagt parkeringsområde til medarbejdere og kunder.

Område:
Silkeborgs Nordlige erhvervsområde er særligt kendetegnet ved de gode logistik-og adgangsforhold. Placeringen imellem ydre og indre ringvej, samt nærhed til motorvejstilkørsel, center nord og byens største boligområder, gør området særligt attraktivt og nemt tilgængeligt for kunder og medarbejdere. Andre virksomheder i området er bl.a. Norlys, Kølegruppen, Stildan A/S, Carglass, SPX, Idé House of Brands, Grauballe Bryghus, Silkeborg Slagteren, High on life, Bikeworld m.fl.

Læs mere

Vil du vide mere?

Frank Lerche

flc@nordicals.dk

+4540301183

Frederiksberggade 18, 8600 Silkeborg

+4586804484

8600@nordicals.dk

Besøg vores mæglerside

Lignende ejendomme

Til top