Glarmestervej 18A, st. th. + 18B st. tv.
8600 Silkeborg

Sagsnr. 863931

Ejendomstype

Etageareal

Energiklasse

462 m²

B

Årlig leje

Leje pr. m²

Depositum

Årlig driftsudgift

Årlig driftsudgift pr. m²

300.300 kr.

650 kr.

100.100 kr.

41.118 kr.

89 kr.

Moderne og lyse kontorlokaler

Tæt på Ringvejen og kun 3 km til motorvejsnettet.

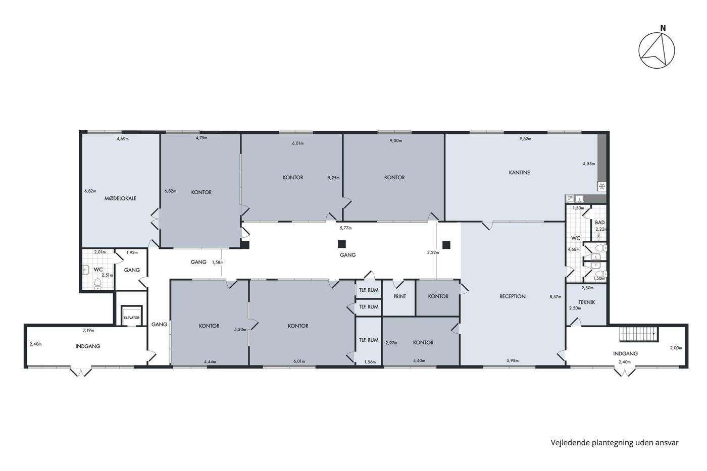
De 462 m² er beliggende i stueplan med godt lysindfald. Er indrettet med reception, 8 kontorer/mødelokaler i forskellige størrelser. Flere af væggene er af glas, hvilket giver et lyst og åbent arbejdsmiljø.

Derudover er der 3 telefonrum, stor kantine, 3 toiletter og bad.

Der er installeret ventilation med varmegenvinding.

Adgang til lejemålet sker via to fælles indgangspartier af glas, og med fælles fordelingsrum, hvor der er mindre teknikrum samt trappe til 1. sal. Der er adgang til lejemålet både via 18A og 18B.

Ringvejen ligger kun få hundrede meter fra ejendommen og til motorvejen kun cirka 3 km, så placeringen er perfekt for transport i alle retninger.

Ejendommen er opført i 2 etages stålbyggeri med delvis glasfacader. Ejendommen er opført i 2007.

Beliggenhed:
Glarmestervej er beliggende i Balle - meget tæt på Ringvejen. Gode tilkørselsforhold til ejendommen.

P-forhold:
Der er 9 stk. parkeringspladser til rådighed ved lejemålet samt ekstra kundeparkering.

Læs mere

Vil du vide mere?

Mads Faber

mfa@nordicals.dk

+4560177124

Frederiksberggade 18, 8600 Silkeborg

+4586804484

8600@nordicals.dk

Besøg vores mæglerside

Lignende ejendomme

Til top