Glarmestervej 16B, 1. tv.
8600 Silkeborg

Sagsnr. 864388

Ejendomstype

Etageareal

Energiklasse

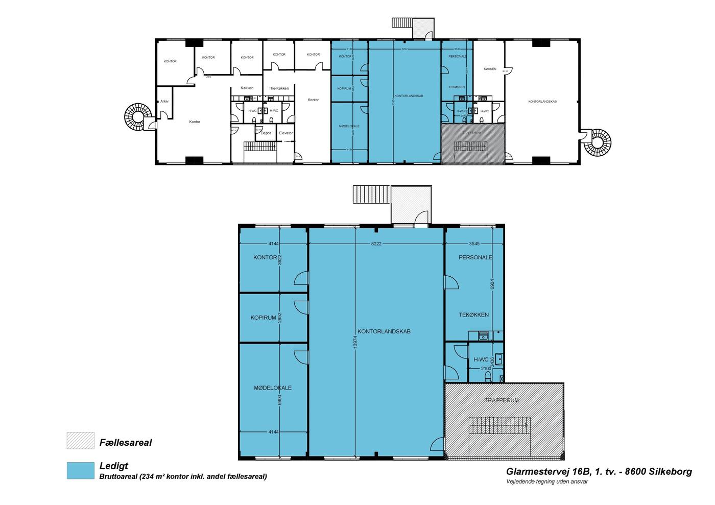
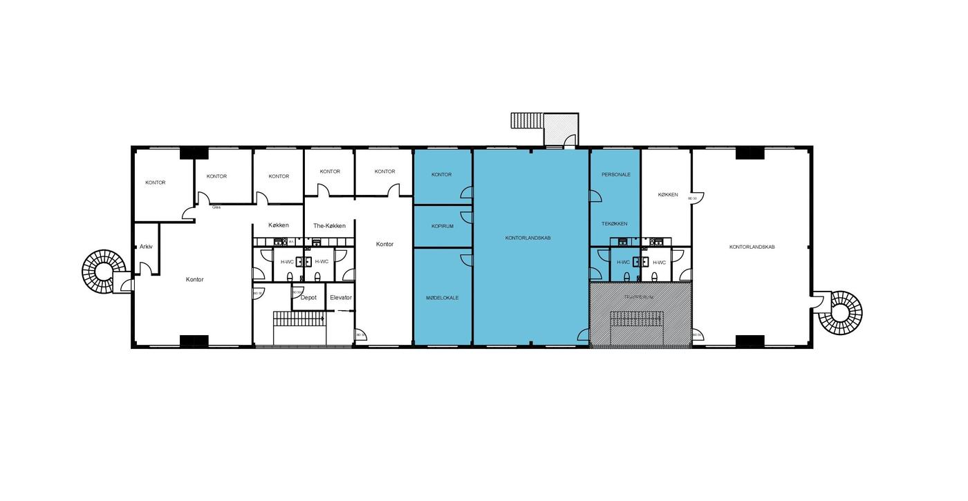
234 m²

B

Årlig leje

Leje pr. m²

Depositum

Årlig driftsudgift

Årlig driftsudgift pr. m²

169.650 kr.

725 kr.

56.550 kr.

19.890 kr.

85 kr.

Attraktivt kontorlejemål med åbent kontorlandskab

På Glarmestervej 16B, 1. tv. i større erhvervsejendom, som er opført i 2007, udbydes nu et lyst og indbydende kontorlejemål på i alt 234 m².
Lejemålet er ideelt til virksomheder inden for liberale erhverv som rådgivning, ingeniørvirksomhed, IT eller lignende, der ønsker en funktionel og præsentabel base.
Indretningen består af et rummeligt kontorlandskab med plads til flere arbejdsstationer, et separat kontor, et mødelokale samt et godt personalerum med tekøkken. Derudover forefindes både toilet og depotrum, hvilket sikrer en praktisk og velfungerende hverdag.
Lejemålet er beliggende på 1. sal med let adgang via fælles trappeopgang.
Ejendommen fremstår velholdt, og der er parkeringsplads lige uden for døren, hvilket gør det nemt for både medarbejdere og besøgende at komme til og fra adressen.

Centralt beliggende med nem adgang til motorvej og Silkeborg centrum
Ejendommen er placeret i et attraktivt erhvervsområde med gode tilkørselsforhold og kort afstand til motorvejsnettet, hvilket sikrer nem adgang til både Aarhus, Herning og resten af Midtjylland. Området er præget af en bred vifte af erhvervsdrivende, hvilket skaber et dynamisk og professionelt miljø. Der er desuden kun få minutters kørsel til Silkeborg centrum, hvor både caféer, butikker og øvrige bylivsfaciliteter er tilgængelige. Den centrale placering kombineret med gode parkeringsforhold og en fleksibel indretning gør dette lejemål til en oplagt mulighed for virksomheder, der ønsker at etablere sig i et velfungerende erhvervskvarter.

Udenomsarealer:
Flisebelagt med fælles parkeringsplads

Medfølgende løsøre:
Der medfølger ikke løsøre.

Overtagelse:
Lejemålet overtages iht. nærmere aftale.

De nævnte priser er gældende ved overtagelse af lejemålet, uden krav om yderligere særindretninger fra udlejers side, men udlejer er naturligvis altid behjælpelig, såfremt der er ønsker med hensyn til indretning af lejemålet.

Læs mere

Vil du vide mere?

Frank Lerche

flc@nordicals.dk

+4540301183

Frederiksberggade 18, 8600 Silkeborg

+4586804484

8600@nordicals.dk

Besøg vores mæglerside

Lignende ejendomme

Til top