Holmbladsvej 15
8600 Silkeborg

Sagsnr. 864407

Ejendomstype

Etageareal

Grund

Energiklasse

484 m²

1.500 m²

B

Årlig leje

Leje pr. m²

Depositum

240.000 kr.

496 kr.

70.227 kr.

Præsentabel kontor- og lagerejendom - Lejerabat 1. år

Perfekt til mindre håndværkervirksomhed eller webshop

Bemærk: Lejerabat det første år på kr. 40.908 ved leje af hele ejendommen.

Holmbladsvej 15 i Silkeborg udbydes nu til leje - en moderne og funktionel erhvervsejendom, der kombinerer præsentable kontorfaciliteter med et nyere lager/showroom. Ejendommen er særligt velegnet til eksempelvis mindre håndværkervirksomheder, der har behov for både administration og lager, eller til webshops, der ønsker en effektiv base for drift og logistik.

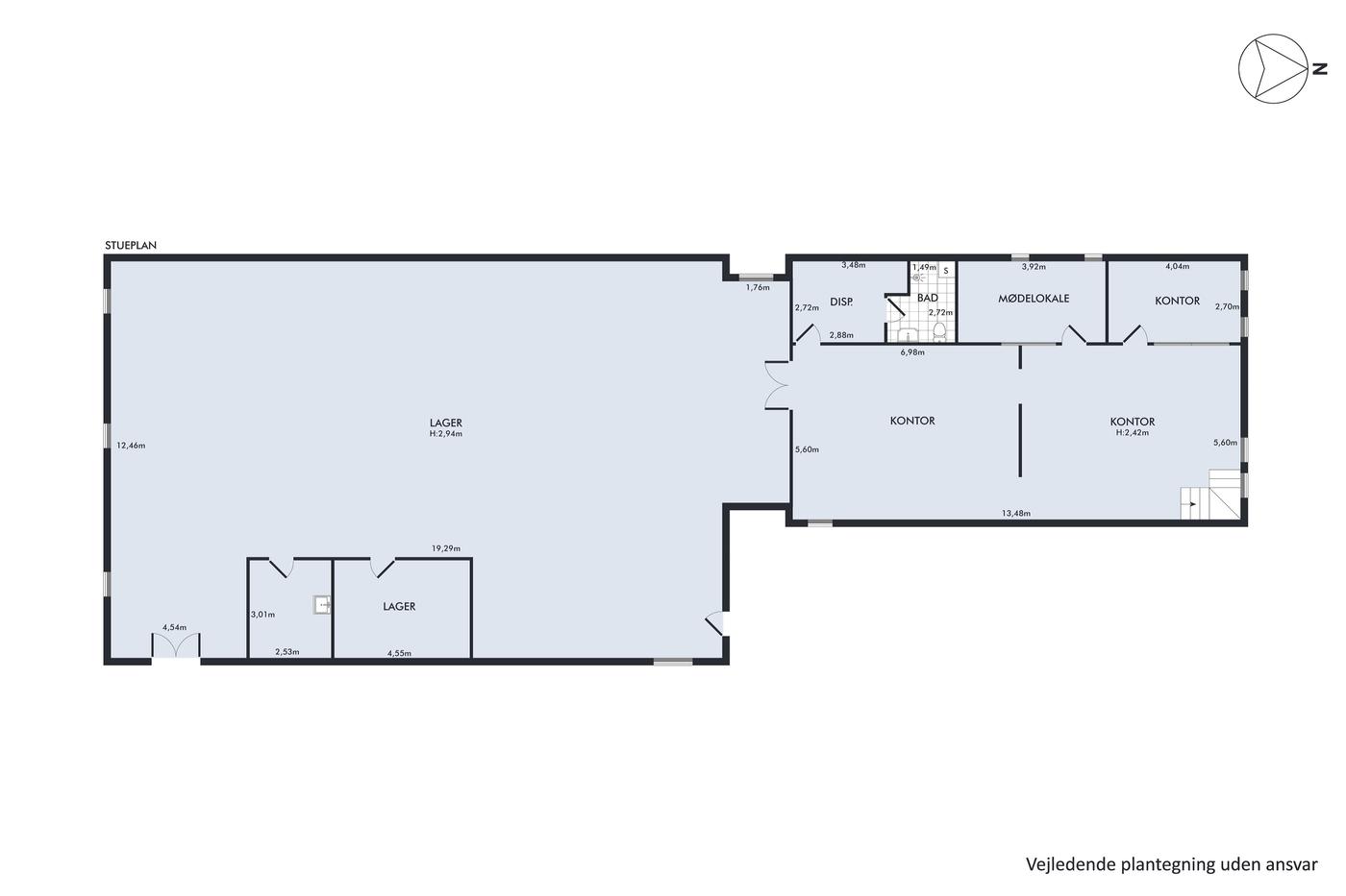
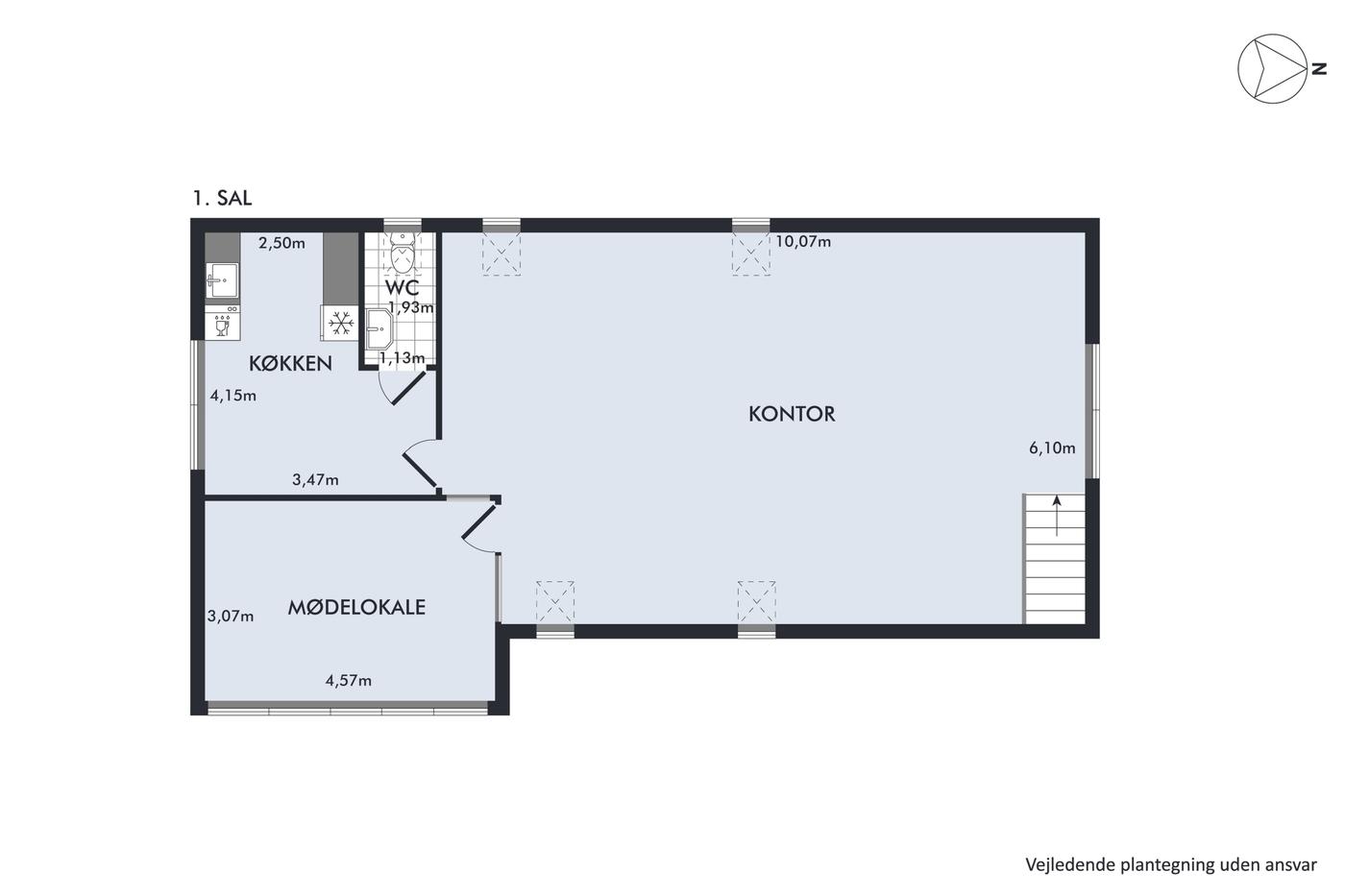
Kontoret fremstår lyst og indbydende med moderne overflader og en indretning, der understøtter både daglig drift og kundekontakt. Her er plads til både åbne kontorlandskaber og mødelokaler, og der er direkte adgang til lager/showroomet, hvilket skaber en naturlig og funktionel sammenhæng mellem de forskellige arbejdsområder. Udgør 211 m².

Lager/showroomet er opført i nyere tid og fremstår derfor i flot stand. Det er velegnet til opbevaring af materialer, pakning af varer eller udstilling af produkter. Kombinationen af kontor og lager gør ejendommen ideel til virksomheder, der har behov for at samle drift og logistik under ét tag - og samtidig fremstå professionelt over for kunder og samarbejdspartnere. Denne del udgør 273 m².

Der er gode parkeringsforhold på ejendommen, hvilket gør den attraktiv for både medarbejdere, kunder og leverandører.

Kontordelen på 211 m² kan lejes særskilt
De 211 m² kan lejes uden lagerdelen. Lejen udgør kr. 700 pr. m², svarende til en årlig leje på kr. 147.700.

Central beliggenhed med nem adgang til motorvej og lokal erhvervsstruktur
Ejendommen er beliggende i et aktivt og veludbygget erhvervsområde i Silkeborg, med kort afstand til motorvej E45. Det giver nem og hurtig adgang til Aarhus, Herning og resten af Midtjylland - en stor fordel for virksomheder med regional aktivitet eller behov for effektiv distribution.

Der er kun få minutters kørsel til Silkeborg centrum, hvor man finder et bredt udvalg af butikker, caféer og servicefunktioner. Området omkring Holmbladsvej er præget af en række mindre og mellemstore virksomheder inden for håndværk, service og handel, hvilket skaber et dynamisk og professionelt erhvervsmiljø.

Ejendommen ligger strategisk godt i forhold til både infrastruktur og lokal erhvervsudvikling - og med sin kombination af kontor og lager/showroom er den oplagt til virksomheder, der ønsker fleksibilitet, tilgængelighed og funktionalitet.

Lejerabat 1. år ved 484 m²:
1. års leje udgør kr. 240.000. Basislejen udgør kr. 280.908.

Læs mere

Vil du vide mere?

Morten Snitkjær Damm

msn@nordicals.dk

+4540434699

Frederiksberggade 18, 8600 Silkeborg

+4586804484

8600@nordicals.dk

Besøg vores mæglerside

Lignende ejendomme

Til top