Lillehøjvej 23
8600 Silkeborg

Sagsnr. 863966S

Ejendomstype

Etageareal

Grund

Energiklasse

1.542 m²

6.391 m²

D

ATTRAKTIVT BELIGGENDE INVESTERINGSEJENDOM

Med god risikospredning fordelt på 9 lejemål.

Lillehøjvej 23 er beliggende i Silkeborgs erhvervskorridor, og er dermed centralt beliggende i nærheden af både ringvejen og motorvejen, hvilket giver nem adgang til den lokale logistik og optimal infrastruktur til hele Midt- og Østjylland.

Erhvervsområdet er i rivende udvikling med flere nybyggerier og projekter i erhvervskorridoren, og det er da også nærtliggende at se ejendommen som en fremtidig projektmulighed.

En af de mest spændende udviklinger i den nære fremtid er planerne om at forlænge Lillehøjvej til Kastaniehøjvej. Dette vil omdanne Lillehøjvej til en hovedfordelingsåre for erhvervskorridoren, hvilket vil øge tilgængeligheden og synligheden for lejerne i ejendommen her. I den forbindelse eksproprieres også en mindre strimmel af ejendommen til gøre vejen bredere og adgangsforholdene bedre for både cyklister og varetransport.

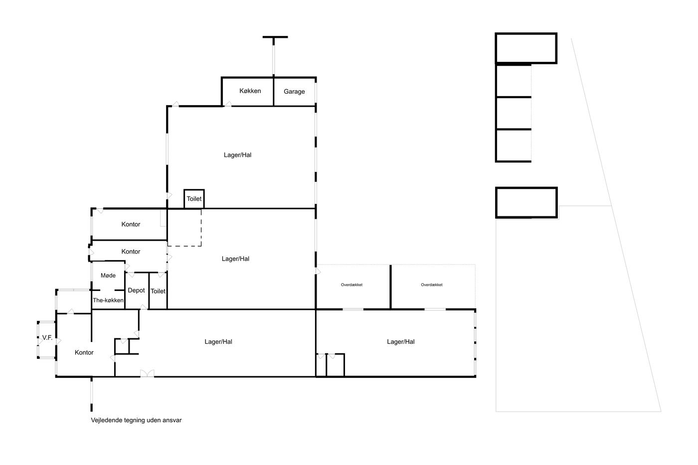
Der er god risikospredning og godt cashflow for ejendommens ejer, idet ejendommen er opdelt i 9 lejemål, heraf 4 i hovedbygningen og de øvrige sekundære bygninger og udendørs plads i den lukkede gård bag ejendommen. Et lejemål på ca. 370 m² bliver dog ledigt medio 2024 til købers eget brug eller ny lejer. Lejemålet er pt. udbudt til en årlig leje kr. 195.000.

Ejendommens mange anvendelsesmuligheder og alsidighed, reducerer også risikoen for tomgang. Ejendommen består af lager, værksted og administrationsfaciliteter, som henvender sig til mange forskellige erhverv. Hertil et stort grundstykke bag port til ejendommens bagside. Her er der rigelige udenomsarealer til oplag, som også supplerer lejeindtægten fra hovedbygningen.

Der er løbende lagt nyt tag på hovedejendommen, så hele tagbelægningen her er udskiftet, senest i 2022 og 2024 på de højloftede haller.

Silkeborg har stærk og voksende erhvervssektor, som tiltrækker både nationale og internationale virksomheder. Investeringsejendommen på Lillehøjvej 23 repræsenterer således en god mulighed for at erhverve et attraktivt aktiv i et dynamisk erhvervsmiljø med mange udviklingsmuligheder og udsigt til endnu bedre adgangsforhold i fremtiden.

Udenomsarealer:
Cirka halvdelen er befæstet, og den anden halvdel er grusbelagt. Der er lidt buske og græs i den bagerste del af grunden. Der er gode parkeringsforhold på ejendommen.

Område:
Attraktivt beliggende i erhvervskorridoren med gode tilkørselsforhold, samt tæt på både Nordre Ringvej og motorvejsnettet. Der er planlagt udvidelse af Lillehøjvej som forlænges til Kastaniehøjvej, og derved bliver en hovedfordelingsåre til erhvervskorridoren. I den forbindelse vil en lille del af arealet foran ejendommen langs Lillehøjvej blive eksproprieret, så der skabes endnu bedre adgang til ejendommen - også for personale på cykel.

Læs mere

Denne ejendom er solgt

Vil du vide mere?

Mads Faber

mfa@nordicals.dk

+4560177124

Frederiksberggade 18, 8600 Silkeborg

+4586804484

8600@nordicals.dk

Besøg vores mæglerside

Lignende ejendomme

Til top