Nygade 23A
8600 Silkeborg

Sagsnr. 864372L

Ejendomstype

Etageareal

Energiklasse

211 m²

D

Årlig leje

Leje pr. m²

Depositum

316.500 kr.

1.500 kr.

158.250 kr.

Lejemål til butik, restaurant, café og take-away - mulighed for leje eller køb af ejerlejlighed

I mere end 20 år har lejemålet dannet ramme om det italienske spisested Marco Polo i Silkeborgs "Latiner kvarter", som byder på en livlig kundestrøm blandt områdets udvalg af caféer, vinbarer, take away, hyggelige restauratanter og-specialbutikker.

Det er således oplagt at bygge videre på stedets tidligere anvendelse til restaurant, hvor en del indretninger vil kunne genanvendes. Bl.a. de fine kundetoiletter, kølerum og enkelte af de tidligere installationer til køkken. Man skal dog stadig påregne udgifter til særligt køkkenindretning og tiltrængt opgradering af facaden. Her vil det være nærtliggende at etablere skydedøre, så man kan åbne til gadelivet udenfor på varme sommerdage. En alternativ anvendelse til butik er absolut også en mulighed, hvor man også vil skulle påregne udgifter til indretning og ny butiksfacade.

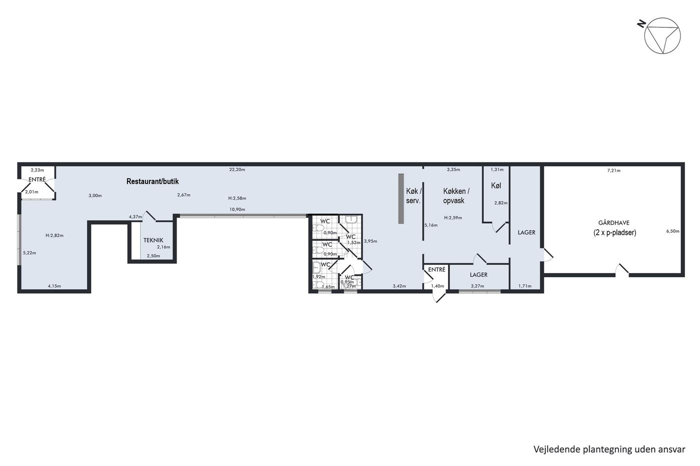
Lejemålet er indrettet med charmerende forbutik/serveringslokaler og flere siddepladser i dybden, hvor rå murstensvægge og stuklofter giver en hyggelig stemning. Bagerst i kundeområdet er der adgang til tre nydeligt istandsatte gæstetoiletter, samt personaletoilet. I den bagerste del af lejemålet har der været indrettet åbent køkken bag serveringsdisk samt yderligere et køkken/opvask. Området trænger i dag til en renovering. Desuden mindre kølerum og lagerplads.

Bag lejemålet er 2 P-pladser indrettet til en hyggelig overdækket terrasse (ej godkendt på BBR), som også kan tænkes integreret i serveringsområdet.

Mulighed for køb:
Lejemålet udgør en selvstændig ejerlejlighed, som der også vil være mulighed for at købe til 3.500.000 kr.

Medfølgende løsøre:
Der medfølger ikke løsøre.

Overtagelse:
Lejemålet overtages som det er og forefindes.

Læs mere

Vil du vide mere?

Mads Faber

mfa@nordicals.dk

+4560177124

Frederiksberggade 18, 8600 Silkeborg

+4586804484

8600@nordicals.dk

Besøg vores mæglerside

Lignende ejendomme

Til top