Nygade 9
8600 Silkeborg

Sagsnr. 864400

Ejendomstype

Etageareal

Energiklasse

262 m²

C

Årlig leje

Leje pr. m²

Depositum

Årlig driftsudgift

Årlig driftsudgift pr. m²

260.400 kr.

994 kr.

65.100 kr.

16.000 kr.

61 kr.

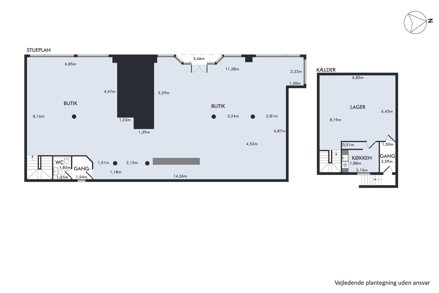
Butikslejemål med markant facade og mulighed for opdeling

Særdeles spændende og fleksibelt butikslejemål på Nygade 9 i Silkeborg, med store udstillings- og salgsarealer til et af byens mest aktive shoppingområder.

Lejemålet består af 190 m² butik i stueplan samt 72 m² tør og højloftet kælder, der er ideel til lager samt personalerum med køkken. Efter nærmere aftale, vil der være mulighed for opdeling af lejemålet i to separate enheder til forskellige behov:

Lejemål 1: 73 m² butik + 72 m² kælder med personalerum og køkken, årlig leje kr. 134.500
Lejemål 2: 117 m² butik med med eget toilet og personalerum med the-køkken, årlig leje kr. 152.100


Denne fleksibilitet gør lejemålet attraktivt for både mindre specialbutikker, skønhedspleje, showroom eller større kædebutikker, der ønsker en central placering med god eksponering. Eller en kombination af flere forretningskoncepter, som kan opnå synergier ved at at dele et samlet lejemål.

Ejendommen har en markant og bred facade, som sikrer maksimal synlighed og eksponering mod gaden. Butikslokalet er indrettet med epoxygulve, akustiklofter og klimaanlæg. Den høje kælder er tør og anvendelig, hvilket giver mange anvendelsesmuligheder.

Ejendommen ligger i den bedste ende af Nygade, som er en del af Silkeborgs velkendte shoppingområde kaldet "firkanten", der omfatter Vestergade, Tværgade, Nygade og Søndergade - med Mejerigården som det centrale omdrejningspunkt. Her finder man et stærkt miks af detailbutikker, caféer, restauranter og landsdækkende kæder, hvilket sikrer et konstant flow af besøgende og et levende handelsmiljø.

Området
Silkeborg er en by i vækst med et stærkt handelsliv og en attraktiv beliggenhed midt i Jylland - kåret til Årets Bedste Handelsby 2022-2025. Nygade og Tværgade betragtes af mange som Silkeborgs latinerkvarter med et mangfoldigt og varieret udvalg af hyggelige butikker, som spænder fra specialbutikker med tøj- og gaveartikler til caféer, take-away, restauranter og små hyggelige kaffebarer. Samt flere serviceerhverv, som frisører og skønhedspleje.

Denne del af Nygade er sivegade med kombineret gågade og indkørsel til parkeringsgården, Mejerigården, lige overfor lejemålet. Dette giver både nemme parkerings- og adgangsforhold for kunder, og ekstra opmærksomhed på butikkens facade. Til lejemålet kan desuden tillejes ekstra P-pladser for personalet.

Anvendelsesmuligheder (hvis der er flere fx Butik / Kontor / Klinik):
Lejemålet er oplagt til butik, klinik/salon eller tilsvarende kundeorienteret anvendelse. I udgangspunktet ikke fødevarer med produktion som kræver udsugning eller fedtudskiller.

Medfølgende løsøre:
3 markiser, 2 stk. aircondition, lysskinner, udendørs belysning og grundbelysning.

P-forhold:
Mulighed for tilleje af 2 P-pladser umiddelbart bag lejemålet á månedligt 500 kr./stk.

Overtagelse:
Lejemålet er ledigt til overtagelse efter nærmere aftale.

Læs mere

Vil du vide mere?

Mads Faber

mfa@nordicals.dk

+4560177124

Frederiksberggade 18, 8600 Silkeborg

+4586804484

8600@nordicals.dk

Besøg vores mæglerside

Lignende ejendomme

Til top