Stagehøjvej 2B
8600 Silkeborg

Sagsnr. 863896

Ejendomstype

Etageareal

Energiklasse

632 m²

B

Årlig leje

Leje pr. m²

Depositum

Årlig driftsudgift

Årlig driftsudgift pr. m²

316.000 kr.

500 kr.

79.000 kr.

26.017 kr.

41 kr.

KONTORLOKALER MED SHOWROOM

Kort afstand til motorvejsnettet.

Lejemål med mange anvendelsesmuligheder indenfor kontor og internethandel.

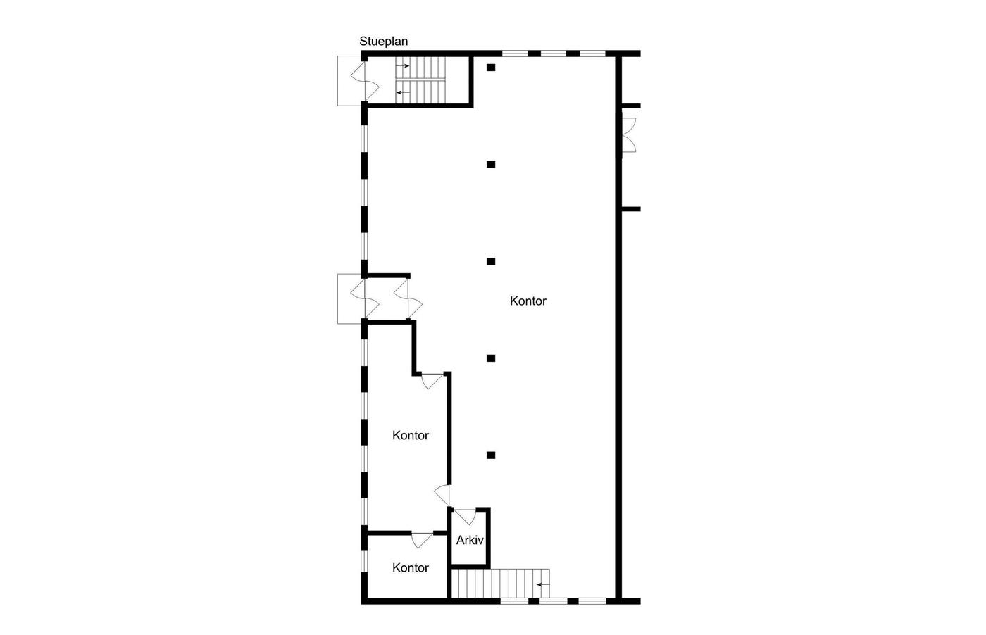
Indrettet med 632 m² kontorlokaler fordelt på 2 plan.

Stort kontorlandskab, 2 kontorer og arkiv i stueplan. Trappe til 1. sal der er indrettet med kontorlokaler i forskellige størrelser, showroom, frokostrum samt toiletfaciliteter.

Velbeliggende med gode tilkørselsforhold og særdeles tæt på motorvejsnettet.

Udenomsarealer:
Gode udenomsarealer der er udlagt til parkerings- og kørearealer. Befæstet med SF-sten.

P-forhold:
Der medfølger 1 p-plads pr. 100 m², med mulighed for leje af flere.

Læs mere

Vil du vide mere?

Morten Snitkjær Damm

msn@nordicals.dk

+4540434699

Frederiksberggade 18, 8600 Silkeborg

+4586804484

8600@nordicals.dk

Besøg vores mæglerside

Lignende ejendomme

Til top