Tværgade 6D
8600 Silkeborg

Sagsnr. 864393

Ejendomstype

Etageareal

Energiklasse

134 m²

B

Årlig leje

Leje pr. m²

Depositum

Årlig driftsudgift

Årlig driftsudgift pr. m²

268.000 kr.

2.000 kr.

134.000 kr.

8.400 kr.

63 kr.

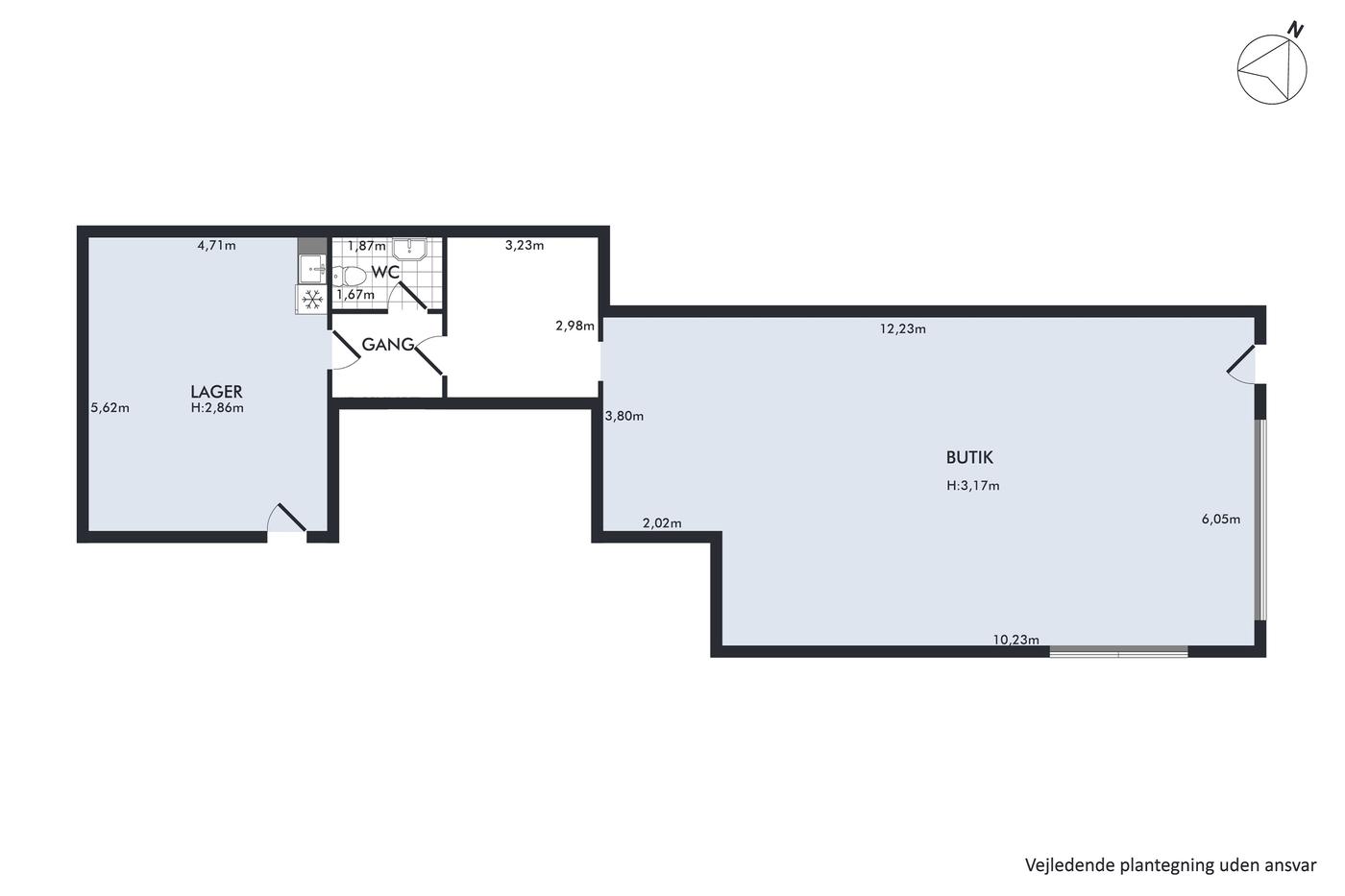
134 m² butik/klinik/restaurant/café på gågaden i Silkeborg

Butikslokale med synlig facade og attraktiv beliggenhed på Silkeborgs gågade - 134 m² butik/klinik/café, lager og personalefaciliteter

Nu udbydes en spændende mulighed for at etablere sig i hjertet af Silkeborgs handelsliv - på Tværgade 6D, hvor denne 134 m² store butik tilbyder både synlighed, funktionalitet og en beliggenhed med høj kundetilstrømning. Lokalet er indrettet med et lyst og præsentabelt butikslokale ud mod gågaden, et bagvedliggende lager med personalekøkken og toilet, hvilket giver optimale rammer for både detailhandel eller specialbutik.
Facaden har store vinduespartier, som sikrer god eksponering og naturligt lysindfald. Den synlige placering på gågaden gør butikken ideel til at tiltrække forbipasserende, og med offentlig kundeparkering lige om hjørnet ved Bios Gård, er det nemt for kunder at komme til og fra. Ejendommen ligger i et område med et stærkt og varieret butiksmix, hvor naboerne inkluderer Matas, NEYE, Bolig Form, Parfumeriet, Yerst Glas, T.I.N.G., Humlechok og Joe & The Juice. Dette skaber et aktivt handelsmiljø og et godt naboskab, hvor butikkerne understøtter hinandens kundestrømme.
Butikken er en del af en velfungerende handelsgade med en hyggelig atmosfære og et stærkt fællesskab blandt de erhvervsdrivende, hvilket gør det attraktivt både for etablerede kæder og lokale iværksættere. Lokalet fremstår i pæn stand og kan nemt tilpasses forskellige koncepter.

Området:
Tværgade ligger centralt i Silkeborg og er en del af byens mest besøgte handelsstrøg. Gaden har en god blanding af kædebutikker og lokale specialforretninger, hvilket skaber en levende og varieret handelsoplevelse. Der er kort afstand til Silkeborg Torv, Papirfabrikken, og byens kulturelle og gastronomiske tilbud. For kunder i bil er der nem adgang til midtbyen, og de nærliggende offentlige parkeringsplads bl.a. ved Bios Gård sikrer gode parkeringsforhold.
Silkeborg er en by i vækst med et stærkt erhvervsliv og en attraktiv beliggenhed midt i Jylland. Byens handelsliv nyder godt af både lokale kunder og turister, og Tværgade er en af de gader, hvor denne synergi mærkes tydeligt. Med sin centrale placering og gode adgangsforhold er Tværgade 6D et oplagt valg for virksomheder, der ønsker synlighed, tilgængelighed og et aktivt butiksmiljø.

Læs mere

Vil du vide mere?

Frank Lerche

flc@nordicals.dk

+4540301183

Frederiksberggade 18, 8600 Silkeborg

+4586804484

8600@nordicals.dk

Besøg vores mæglerside

Lignende ejendomme

Til top