Sepstrupvej 37, Asklev
8653 Them

Sagsnr. 864446

Ejendomstype

Etageareal

Energiklasse

459 m²

F

Årlig leje

Leje pr. m²

Depositum

123.150 kr.

268 kr.

30.788 kr.

Præsentabel og funktionel lagerhal med kontor i Silkeborg Syd

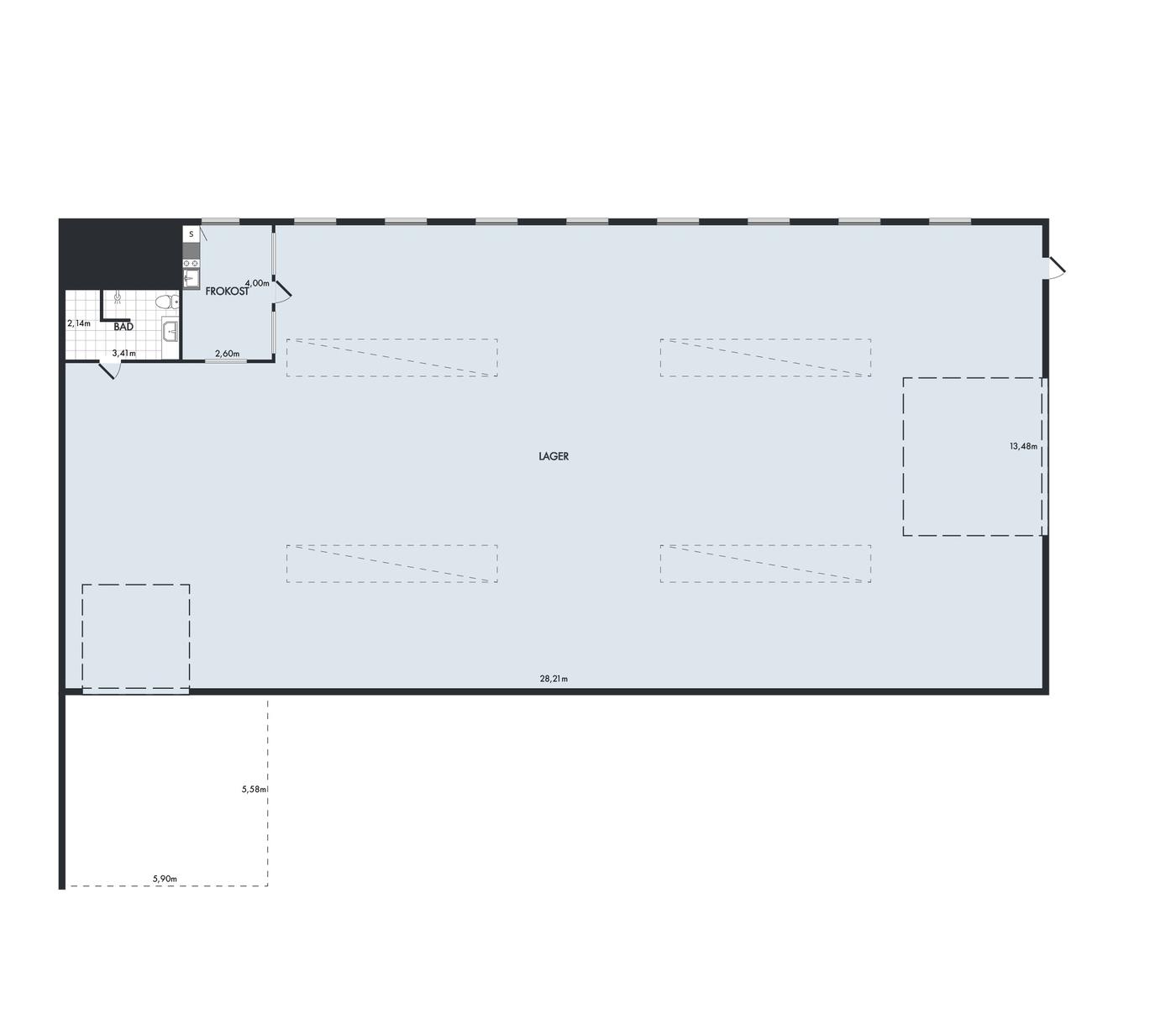
Lejemålet på Sepstrupvej 37 tilbyder en funktionel og regulær lagerhal på 411 m², der er ideel til virksomheder med behov for effektiv opbevaring og logistik.

Hallen er opført i stålbuekonstruktion med ydermure i røde sten, eternittag og betonbelægning, hvilket sikrer en robust og vedligeholdelsesvenlig bygning. Loftet er beklædt med troldtekt, og de fire store ovenlysvinduer giver et behageligt naturligt lys.

Lagerhallen har en sidehøjde på ca. 3,5 m og en kiphøjde på ca. 5,5 m, hvilket giver gode muligheder for reoler og fleksibel indretning.

Adgangen er optimal med to porte - den ene med læsserampe - med målene hhv. 2,7 x 3 m og 4 x 4 m.

I hjørnet af hallen er der indrettet frokostrum samt toilet og bad, hvilket gør det nemt for medarbejdere at have faciliteter tæt på arbejdsområdet.

Ved siden af lagerhallen ligger en kontorpavillon på 48 m², opført i træ med store vinduer, der sikrer et godt lysindfald. Pavillonen indeholder kontor, køkken og toilet, hvilket giver en praktisk løsning til administration og møder i direkte tilknytning til lageret.

Området
Ejendommen er beliggende i Silkeborg Syd ved Asklev - midt imellem Sepstrup og Them. Der er ca. 10 km til Silkeborg centrum, hvilket giver gode muligheder for både transport og tilgængelighed for kunder og medarbejdere.

Området er præget af erhvervsaktivitet og tilbyder en attraktiv placering for virksomheder, der ønsker en central beliggenhed i Midtjylland.
Udenomsarealer:

Er belagt med grus.

Lejemålet udgør en del af en større erhvervsejendom med gode udenomsarealer i umiddelbar forbindelse med lejemålet, der kan tillejes efter nærmere aftale med udlejer.

Læs mere

Vil du vide mere?

Morten Snitkjær Damm

msn@nordicals.dk

+4540434699

Frederiksberggade 18, 8600 Silkeborg

+4586804484

8600@nordicals.dk

Besøg vores mæglerside

Lignende ejendomme

Til top