Søndervang 2, Vrads
8654 Bryrup

Sagsnr. 864218

Ejendomstype

Etageareal

Grund

Energiklasse

2.087 m²

6.147 m²

B, D

Kontantpris

Købspris pr. m²

Afkast

Årlig lejeindtægt

Årlig lejeindtægt pr. m²

Årlig driftsudgift

Årlig driftsudgift pr. m²

2.895.000 kr.

1.387 kr.

12,62 %

396.300 kr.

190 kr.

34.167 kr.

16 kr.

Erhvervsejendom med mange anvendelsesmuligheder

Lager/kontorejendom
Meget velholdt erhvervsejendom beliggende i landsbyen Vrads ca. 17 km syd for Silkeborg.

Ejendommen består af 4 bygninger, hvoraf de 3 er sammenbygget og som i dag udnyttes som hhv. kontorer og lagre.

Hovedbygningen er på 746 m² hvoraf de 232 m² er underetage. Stueplan er i dag indrettet som kontorhotel, hvor størstedelen af kontorpladserne er udlejet. Her er flere kontorer i forskellige størrelser, mødelokale, fælles opholdsrum, receptionsområde, teknikrum, køkken og toiletter. Herudover et mindre lager med port.
I Underetagen finder du et stort mødelokale/kantine med køkkenfaciliteter med plads til ca. 70 personer, et rum med ekstra køkkenfaciliteter samt personale/omklædning med baderum med 3 bruser samt 2 toiletter. Endvidere finder du et disponibelt rum.

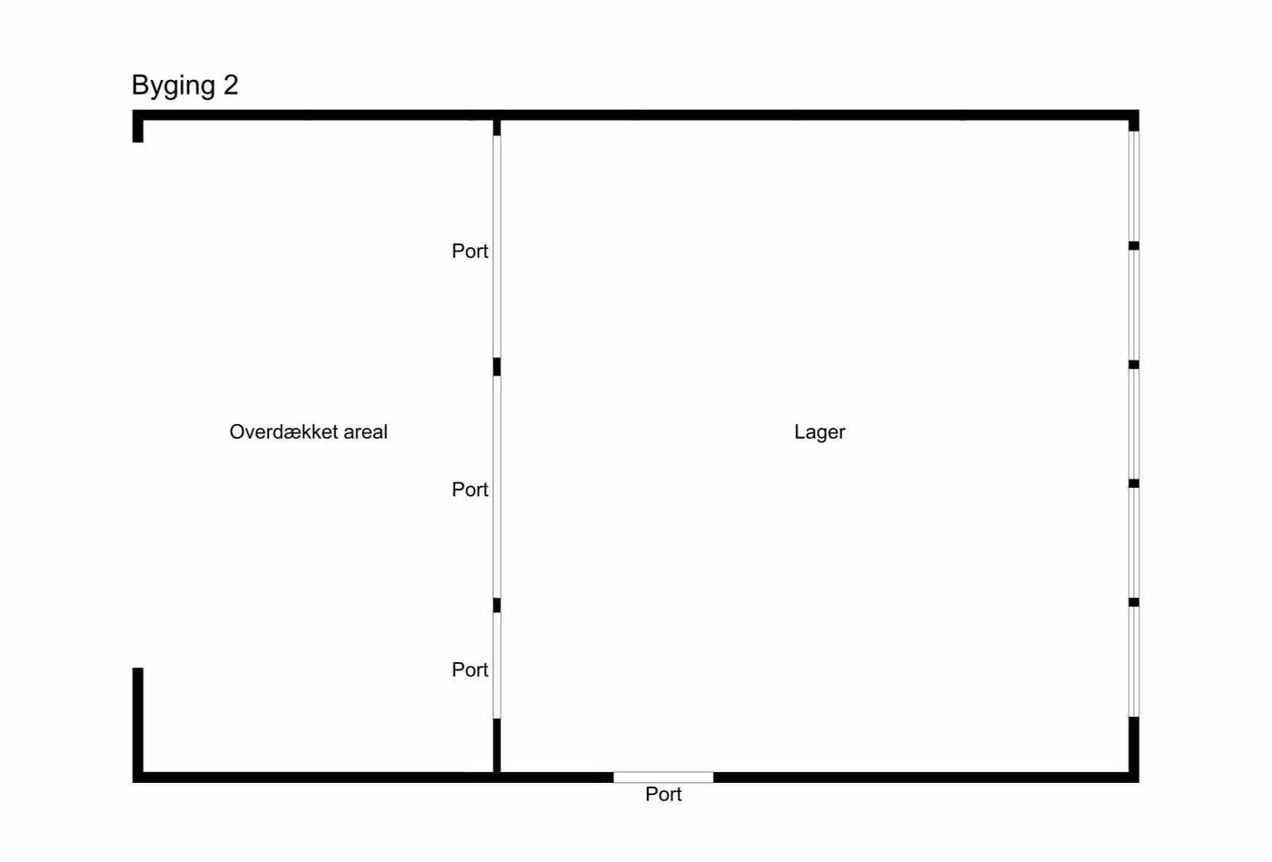
I bygning 2, som er på 432 m², er lagerhal med åben rampe og overdækket p-plads for lastbiler, hvor der via 3 porte er adgang til lagerhallen. Lofthøjden er i siderne ca. 3,4 m og i kip ca. 4,6 m. Der er adgang mellem lager i bygning 1 til lageret i denne bygning.

Den 3 bygning på 204 m² uopvarmet hal med indskudt dæk er fritliggende. Her er 3 aluporte og loftshøjden i siderne på ca. 3,8 m og ca. 6 m i kip.

Den sidste bygning er ledig til købers evt. egen anvendelse. Det er en stor opvarmet lagerhal på 705 m², som er sammenbygget med bygning 2. Her er flere lysbånd i taget, samt en stor port i gavlen. Lagerhallen har en loftshøjde på ca. 5,5 m i siden og ca. 8 m i kip.

Udenomsarealer:
Udenomsarealerne er belagt med belægningssten.

P-forhold:
På ejendommen.

Læs mere

Vil du vide mere?

Frank Lerche

flc@nordicals.dk

+4540301183

Frederiksberggade 18, 8600 Silkeborg

+4586804484

8600@nordicals.dk

Besøg vores mæglerside

Lignende ejendomme

Til top