Adelgade 5
8700 Horsens

Sagsnr. 116442

Ejendomstype

Etageareal

Grund

Energiklasse

275 m²

223 m²

D

Investeringsejendom - mulighed for projekt

Fin investeringsejendom med to lejligheder samt erhvervslejemål i stueplan.

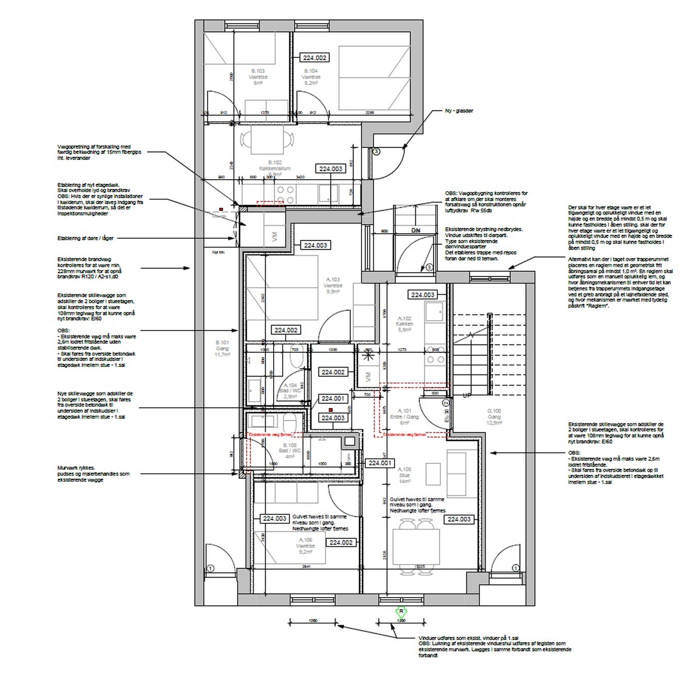
Der er mulighed for at omdanne erhvervsdelen til to boliglejemål. Der er udarbejdet projektmateriale til to lejligheder på henholdsvis 2 og 3 værelser. Sælger har modtaget byggetilladelse hertil. Køber skal dog selv ansøge om byggetilladelse til et ønsket projekt.

Der kan ligeledes være mulighed for at tilføje hems eller udvide boligarealet til lejligheden på 2. sal.

Ejendommens stueplan og 1. sal er tom for lejere, og der er således mulighed for at igangsætte projekt med ombygning.

Lejligheden på 1. sal har køkken og bad i pæn stand, og der er ældre, lakerede fyrretræsgulve. Lejligheden på 2. sal har nyt køkken og fint badeværelse med vaskesøjle. Ejendommen har ældre tegltag og ældre kviste. Hvide dannebrogsvinduer af træ, hvoraf flere er udskiftet.

Der forefindes fin gårdhave med tilhørende plæne.

Læs mere

Denne ejendom er solgt

Vil du vide mere?

Per Ahlgreen

per@nordicals.dk

+4540206715

Vitus Berings Plads 6, 8700 Horsens

+4576282610

8700@nordicals.dk

Besøg vores mæglerside

Lignende ejendomme

Til top