Amaliegade 20
8700 Horsens

Sagsnr. 115083

Ejendomstype

Etageareal

Grund

Energiklasse

535 m²

324 m²

C

Investeringsejendom

Investeringsejendom med 8 beboelseslejligheder.

God beliggenhed i den østlige bydel tæt ved Lunden og i gåafstand fra hovedstrøget.

Ejendommen har tidligere været 2 særskilte ejendomme, som er sammenlagt i 2003 i forbindelse med ombygning og renovering.

Bebyggelsen er opført i 1899 og senest ombygget i 2003. Facaden mod Amaliegade fremstår i røde mursten. Øvrige facader er pudsede og malede. Forhus med tegltag.

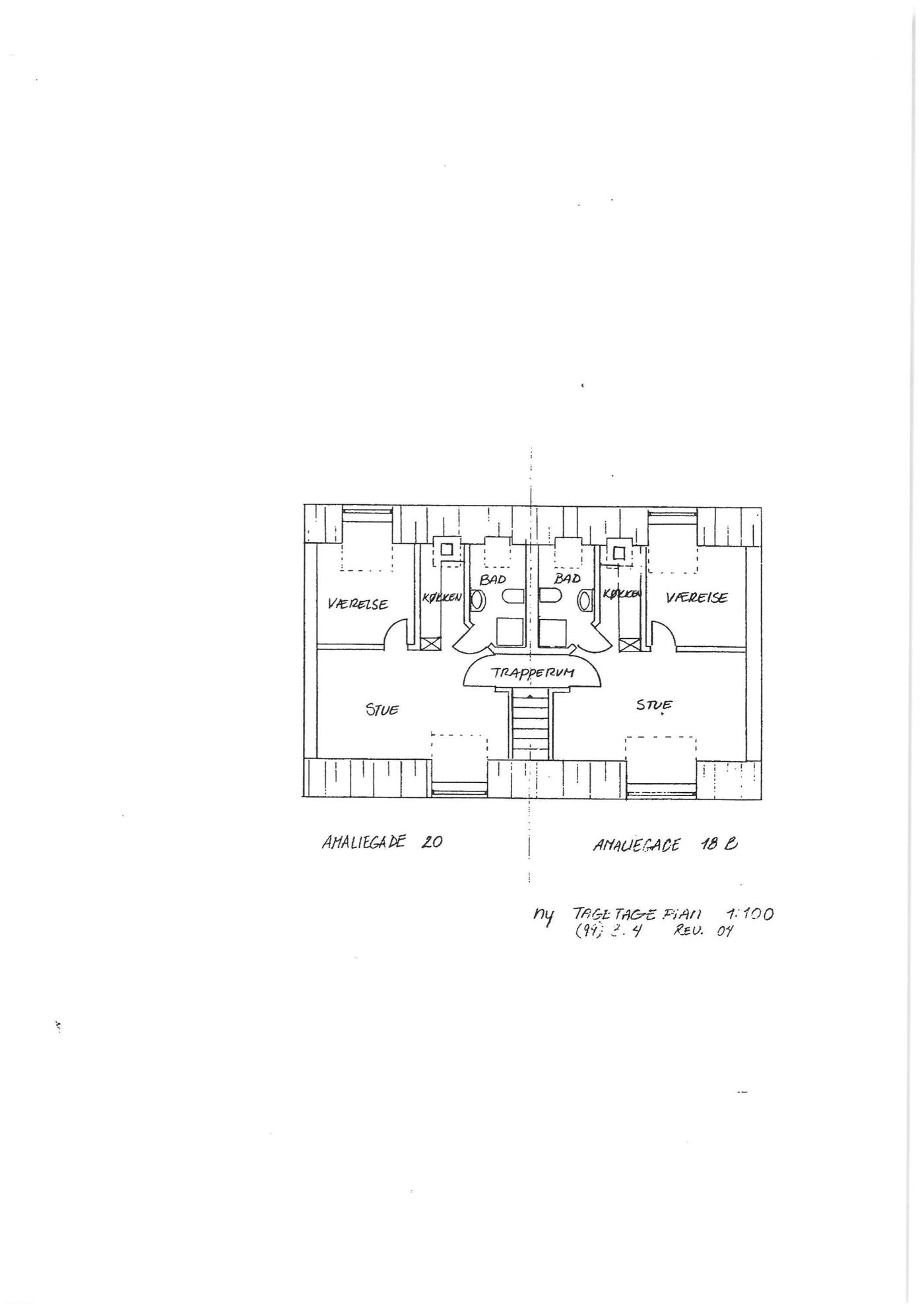
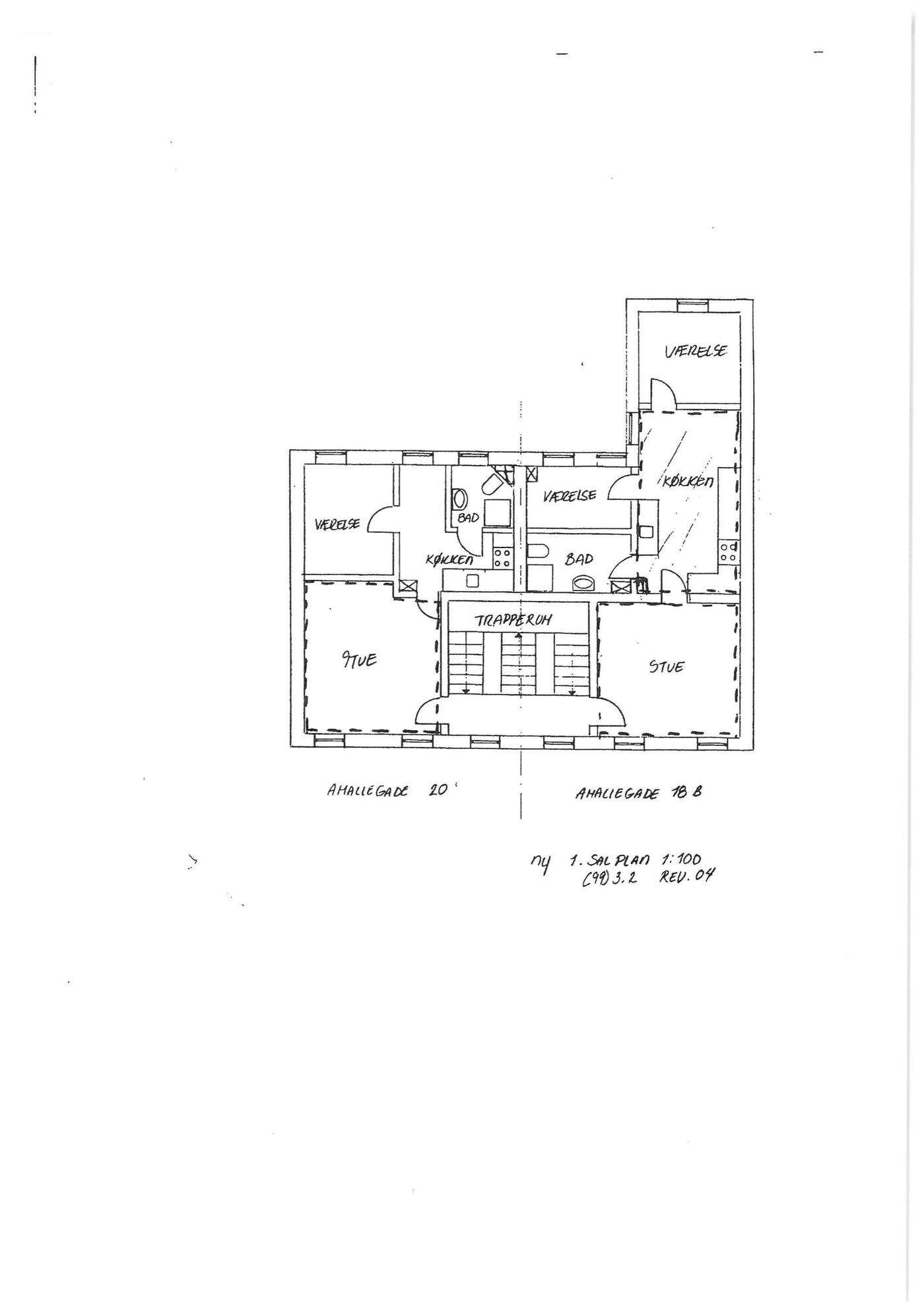
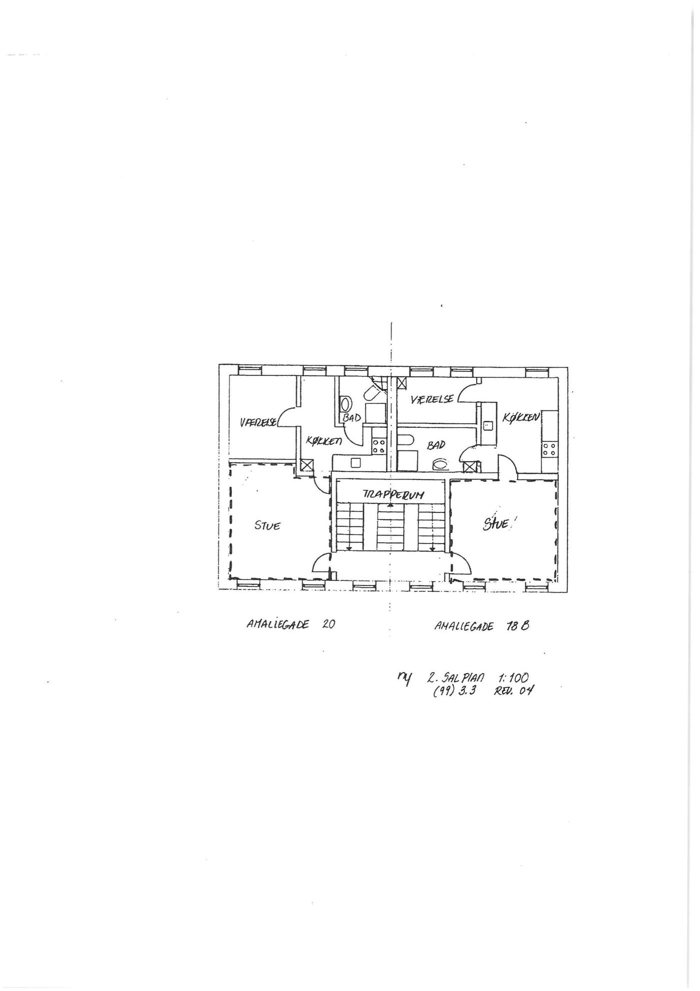
Samlet boligareal ca. 535 m² fordelt på 8 lejligheder. 3 stk. 3-værelses lejligheder og 5 stk. 2-værelses lejligheder. Desuden ca. 126 m² kælder.

Lejlighederne er med pæne parketgulve i stuer og værelser. Lejligheden 1.sal tv. har egen tagterrasse.

Pæn trappeopgang. Der er dørtelefon.

Mindre gårdhave.

Læs mere

Denne ejendom er solgt

Vil du vide mere?

Per Ahlgreen

per@nordicals.dk

+4540206715

Vitus Berings Plads 6, 8700 Horsens

+4576282610

8700@nordicals.dk

Besøg vores mæglerside

Lignende ejendomme

Til top