Egeskovvej 2A, Tolstrup
8700 Horsens

Sagsnr. 116441

Ejendomstype

Etageareal

Grund

Energiklasse

2.583 m²

9.352 m²

D

Årlig leje

Leje pr. m²

Depositum

Årlig driftsudgift

Årlig driftsudgift pr. m²

1.327.875 kr.

514 kr.

663.938 kr.

154.980 kr.

60 kr.

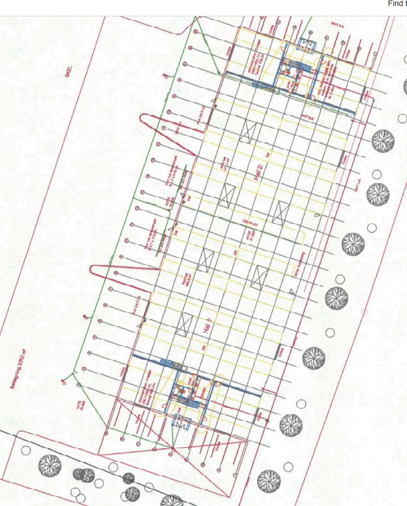
Erhvervslejemål nær motorvejen

Ejendom med særdeles attraktiv beliggenhed kun få hundrede meter fra til-/frakørsel til motorvej E45.

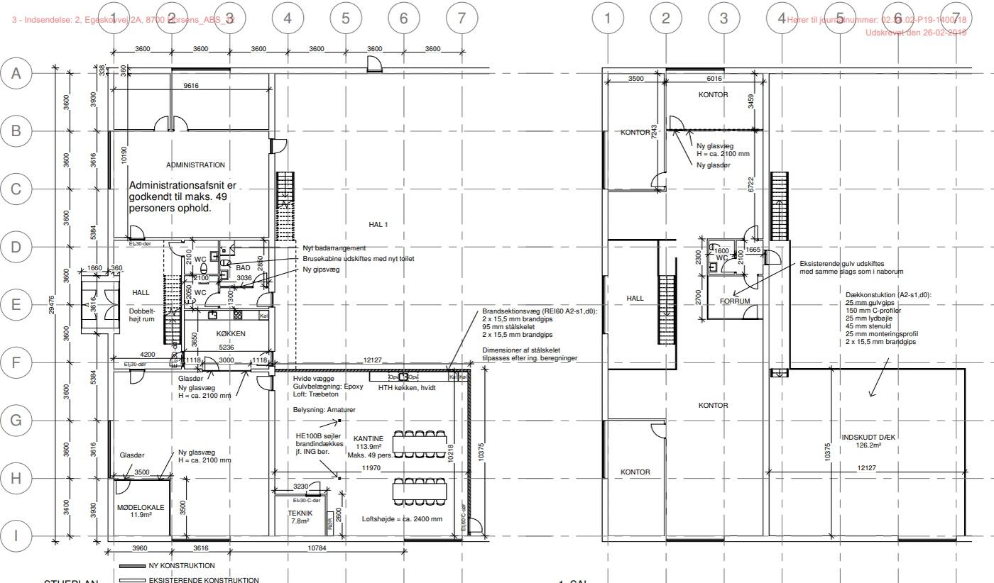
Lejemålet er på i alt 2.583 m², hvoraf 1.875 m² er højloftet hal, og 708 m² er moderne administrationsfaciliteter i 2 plan.

Hallen har 2 stk. ledhejseporte og 2 stk. power-ramper med port. Hallen er etableret med ovenlys og grundbelysning på min. 200 lux samt 80 ampere strøm.

Administrationsdelen er indrettet med en foyer i åben plan og trappeføring til 1. sal. I stueplan er der toiletter, omklædning/bad, større storrumskontor samt kantine og køkken. På 1. sal er der mødelokale med glasparti mod gang, toilet samt 2 store storrumskontorer. Fra 1. sal er der tillige indvendig galvaniseret ståltrappe til hallen.

Ejendommen er opført i lys grå betonelementer med hal i søjlefri konstruktion og betongulv. Bygningens vinduer og porte er sorte, ligesom indgangs-parti og bygningsmæssigt indhak i facaden mod Skanderborgvej er udført i naturskifer. Tagbeklædning er med mørkt tagpap.

Udenomsareler er belagt med Uni Coloc-belægning. Øvrige udenomsarealer er med græs samt beplantet med træer og buske.

Læs mere

Vil du vide mere?

Nikolai Høgh

nih@nordicals.dk

+4528903268

Vitus Berings Plads 6, 8700 Horsens

+4576282610

8700@nordicals.dk

Besøg vores mæglerside

Lignende ejendomme

Til top