Gotlandsvej 28
8700 Horsens

Sagsnr. 116369

Ejendomstype

Etageareal

Grund

Energiklasse

792 m²

4.838 m²

E

God værkstedsejendom med gennemgående porte

God ejendom hidtil benyttet til busværksted.

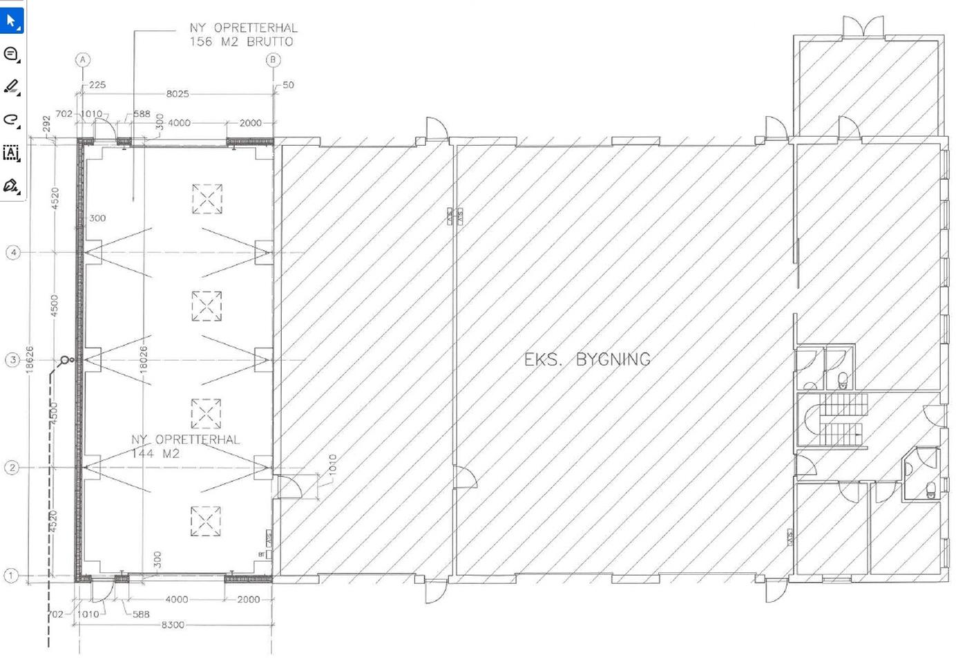
Ejendommen er opført i 2002 og tilbygget i 2007 (156 m² opretterværksted). Den opr. bebyggelse er opført i betonelementer. Tilbygningen fremstår med facader i profilerede aluplader.

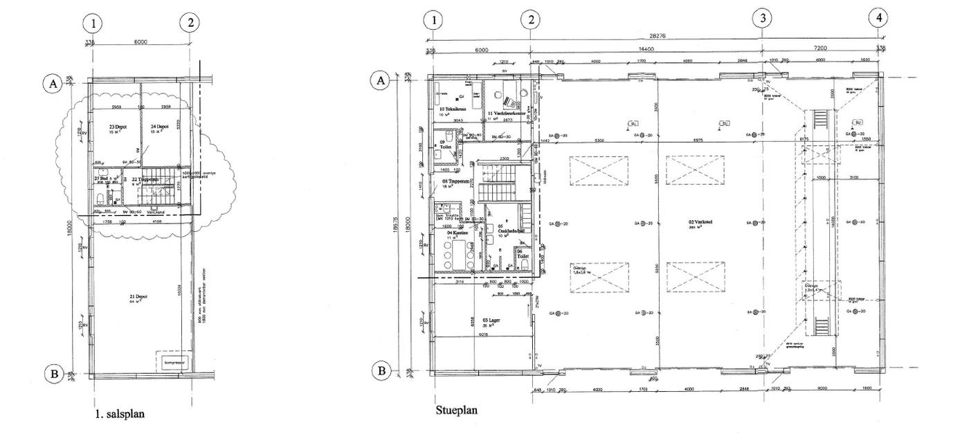
Bebygget areal 684 m², hvortil kommer 108 m² indskudt lagerdæk.

Bebyggelsen består af stort værksted med 3 gennemgående porte og grav. Mindre lager. Kontor/velfærdsafsnit med entre med trappe til indskudt dæk, omklædning med bad og toilet, kantine, toilet, kontor og teknikrum samt opretterværksted med gennemgående port.

Desuden 108 m² indskudt lagerdæk med 3 depotrum og toilet.

Ejendommen er velbeliggende i industriområde i den vestlige del af Horsens, tæt ved omfartsvejen og Horsens midtby og kun ca. 4,5 km fra motorvejstilkørsel Horsens C ved Hatting.

Store udendørsarealer så mulighed for udvidelser.

Udendørsarealer er i det væsentligste udlagt med grus og SF-sten.

Det bemærkes, at driftsinventar, herunder lifte, tilhører nuværende lejer og indgår ikke i en handel.

Læs mere

Denne ejendom er solgt

Vil du vide mere?

Nikolai Høgh

nih@nordicals.dk

+4528903268

Vitus Berings Plads 6, 8700 Horsens

+4576282610

8700@nordicals.dk

Besøg vores mæglerside

Lignende ejendomme

Til top