Gotlandsvej 3B
8700 Horsens

Sagsnr. 116470

Ejendomstype

Etageareal

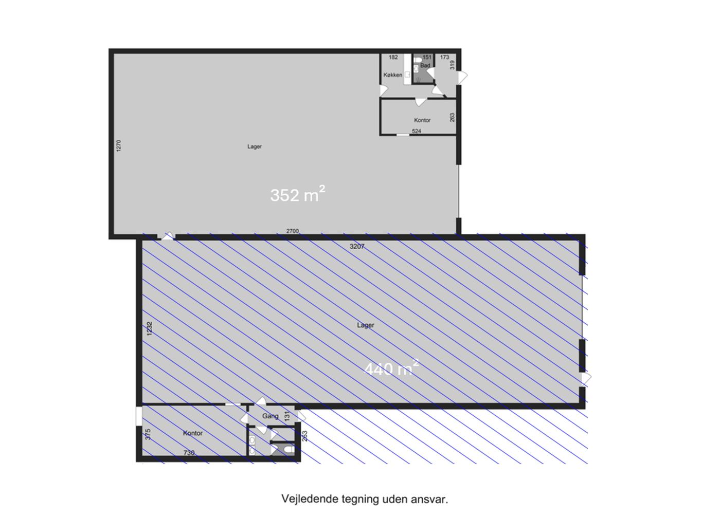
352 m²

Velbeliggende produktions/lagerlejemål

Lejemålet udgør del af ejendom med et samlet bebygget areal på 792 m² opført i 1994. Ydervægge fremstår i profilerede aluplader. Eternittag. Grundarealet udgør 1.999 m².

Ejendommen er velplaceret i industriområde i den sydvestlige del af Horsens, tæt ved omfartsvejen, centrum og banegård og ca. 5 km fra motorvejstilslutning Horsens C.

Lejemålet er på 352 m² (den bagerste hal på ejendommen) bestående af produktions/lagerhal på ca. 292 m² med ovenlys, lofthøjde fra ca. 4,1 m til ca. 5,9 m i kip, ca. 4 m bred hejseport i gavl. Velfærdsafsnit på ca. 60 m² indeholdende kontor, baderum med toilet og thekøkken.

Lejemålet omfatter dispositionsret til de ud for det lejedes facader værende udenomsarealer. Parkering m.v. på udenomsarealer må dog ikke være til gene for ejendommens øvrige brugere.
Herudover omfatter lejemålet i øvrigt brugsret til ejendommens øvrige udenomsarealer og adgangsarealer i forening med ejendommens øvrige brugere.

Køre- og parkeringsarealer er udlagt med SF-sten.

Der er for nuværende ligeledes mulighed for, at leje nabolejemålet på 440 m².

Læs mere

Denne ejendom er udlejet

Vil du vide mere?

Jesper Reinholt Düring

jrd@nordicals.dk

+45 2311 9944

Vitus Berings Plads 6, 8700 Horsens

+4576282610

8700@nordicals.dk

Besøg vores mæglerside

Lignende ejendomme

Til top