Gotlandsvej 3A
8700 Horsens

Sagsnr. 1164701

Ejendomstype

Etageareal

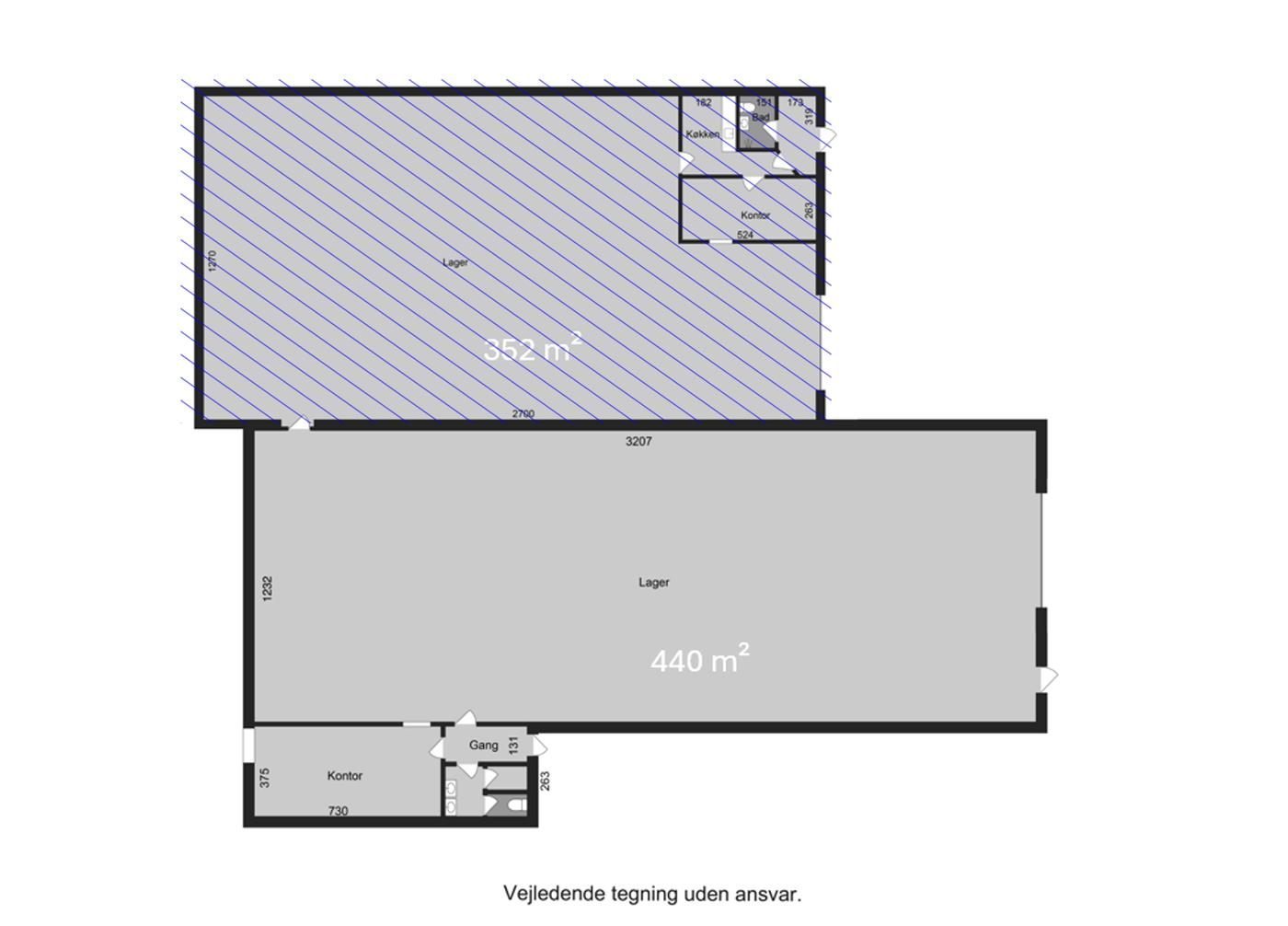
440 m²

Velbeliggende produktions/lagerlejemål

Lejemålet udgør del af ejendom med et samlet bebygget areal på 792 m² opført i 1994. Ydervægge fremstår i profilerede aluplader. Eternittag. Grundarealet udgør 1.999 m².

Ejendommen er velplaceret i industriområde i den sydvestlige del af Horsens, tæt ved omfartsvejen, centrum og banegård og ca. 5 km fra motorvejstilslutning Horsens C.

Lejemålet er på 440 m² (den forreste hal på ejendommen) bestående af produktions/lagerhal på ca. 395 m² med ovenlys, lofthøjde fra ca. 4,1 m til ca. 5,9 m i kip, ca. 4 m bred hejseport i gavl. Såvel yder- som indervægge fremstår i profilerede aluplader. Velfærdsafsnit på ca. 45 m² indeholdende entre, baderum med toilet og kontor/frokoststue.

Lejemålet omfatter dispositionsret til de ud for det lejedes facader værende udenomsarealer. Parkering m.v. på udenomsarealer må dog ikke være til gene for ejendommens øvrige brugere.
Herudover omfatter lejemålet i øvrigt brugsret til ejendommens øvrige udenomsarealer og adgangsarealer i forening med ejendommens øvrige brugere.

Køre- og parkeringsarealer er udlagt med SF-sten.

Der er for nuværende ligeledes mulighed for, at leje nabolejemålet på 352 m².

Læs mere

Denne ejendom er udlejet

Vil du vide mere?

Jesper Reinholt Düring

jrd@nordicals.dk

+45 2311 9944

Vitus Berings Plads 6, 8700 Horsens

+4576282610

8700@nordicals.dk

Besøg vores mæglerside

Lignende ejendomme

Til top