Graven 8, st.
8700 Horsens

Sagsnr. 115999

Ejendomstype

Etageareal

Grund

Energiklasse

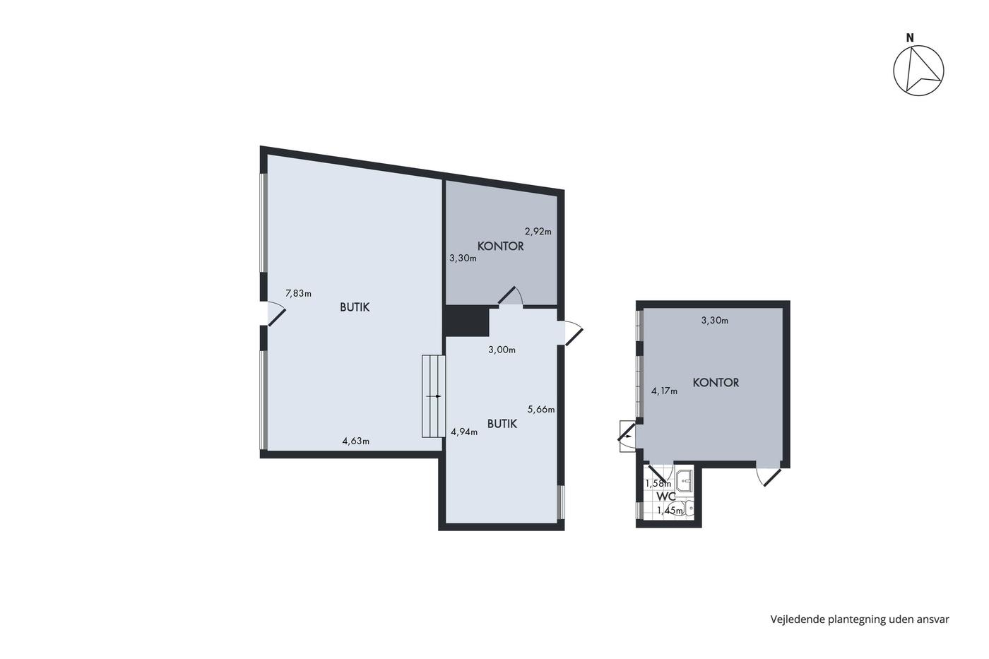
84 m²

161 m²

F

Lejemål til butik/frisør/cafe m.v. i Horsens midtby

Lejemål til butik/frisør/cafe m.v. i Horsens midtby.

Pænt facadeparti.

Velbeliggende på gågade i Horsens midtby ca. 50 meter fra hovedstrøget Søndergade.

Lejemålet består af:
84 m² i stueplan i forhus indrettet med lyst butikslokale med et par trin op til bagbutik samt køkken.
45 m² lager og toilet i stueetage i baghus.

Lejemålet overtages i den stand, hvori det er og forefindes.

Læs mere

Denne ejendom er udlejet

Vil du vide mere?

Vitus Berings Plads 6, 8700 Horsens

+4576282610

8700@nordicals.dk

Besøg vores mæglerside

Lignende ejendomme

Til top