Graven 20, st.
8700 Horsens

Sagsnr. 116149

Ejendomstype

Etageareal

Grund

139 m²

336 m²

Årlig leje

Leje pr. m²

Depositum

239.400 kr.

1.722 kr.

59.850 kr.

Nyindrettet lejemål

Unikt erhvervslejemål i hjertet af Horsens by.
Dette erhvervslejemål tilbyder en enestående mulighed for etablering af en lang række forskellige typer af forretning. Med sin unikke placering på hjørnet af byens mest livlige strøg, nyder lejemålet godt af høje trafiktal og maksimal synlighed. Den dobbelte facade tiltrækker forbipasserende og giver en imponerende præsentation af enhver forretning.
Lejemålet i korte træk:
• Ideel til butik, forretning, detail, bager, restaurant eller bar.
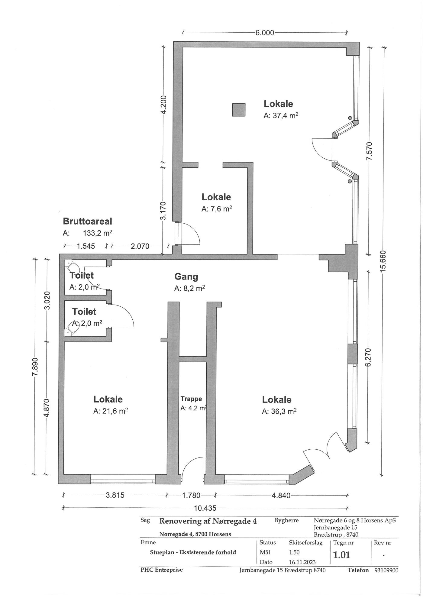
• 133 m² med ekstra opbevaringsplads i kælderen.
• I hjertet af Horsens, på byens mest livlige strøg.
• Hjørnebutik med dobbeltfacade
• Lejemålet ombygges og indrettes i samråd med lejer
• Hele bygningen totalrenoveres
• Fleksibel indretning og optimal eksponering
I dette hjørnelejemål på 133 m² kan din virksomheds behov og visioner realiseres. En smuk og bevaringsværdig bygning, hvor lejemålet totalrenoveres og kommer til at fremstå fantastisk smuk, samtidig med at dens bevaringsværdige karakter bevares. Dette giver et historisk og æstetisk udtryk, som bidrager positivt til din forretning og
dens image. Derudover er mulighed for leje af op til ca. 90 m² kælder, som ligger lige under lejemålet, så der er ekstra plads til opbevaring.

Grib muligheden for at etablere din virksomhed på en af Horsens mest attraktive beliggenheder. Med sin centrale placering, unikke synlighed og fleksible indretningsmuligheder er dette lejemål en sjælden perle i byens pulserende hjerte.

Lejemålet kan ikke lejes til brug for pizzaria, vandpibecafe og spillehal.

Lejer har mulighed for parkering i gården bag ejendommen efter nærmere aftale med udlejer.

Læs mere

Vil du vide mere?

Bo Pinholt

bpi@nordicals.dk

+4523402909

Vitus Berings Plads 6, 8700 Horsens

+4576282610

8700@nordicals.dk

Besøg vores mæglerside

Lignende ejendomme

Til top