Høegh Guldbergs Gade 9 /Alrøvej
8700 Horsens

Sagsnr. 116318

Ejendomstype

Grund

7.030 m²

Kontantpris

Årlig driftsudgift

16.000.000 kr.

1.000 kr.

Her er muligheden for erhvervelse af særdeles velbeliggende arealer til domicilejendom m.v.

Arealer til detail, kontor og andet erhvervsbyggeri med særdeles god beliggenhed.

Lokalplan giver mulighed for, at der nærmest Høegh Guldbergs Gade kan opføres 4 etages erhvervs- og finanshuse med butikker i
stueetagen og med en højde på op til 20 meter. I den østligste del af grunden kan opføres andre erhvervshuse i i 2-3 etager i en højde mellem
12 og 15 meter, der kan anvendes til mindre handelsvirksomheder, erhverv, sportsfaciliteter eller lignende, der ikke har behov for
synlighed fra de omkringliggende gader, men dog alligevel ønsker nærhed til bymidten.
Indenfor lokalplanområdet kan der etableres for eksempel kontorer og butikker, restauranter, cafeer, kulturelle aktiviteter som for
eksempel foreninger eller sports- eller træningscentre.
Lokalplanområdet skal indrettes og udformes med byggerier og udendørs arealer der i sin arkitektur giver et løft til bydelen og gaden for
både borgere og besøgende i byen. Særligt den del, der ligger nærmest Høegh Guldbergs Gade skal med lokalplan bestemmelser om
beplantning og belægninger være med til at man føler sig velkommen og tryg på alle tider af døgnet gennem årstidernes skiften. Langs
med Bygholm Å sikres det også, at man fremover fortsat kan gå og få en naturoplevelse tæt på byen.

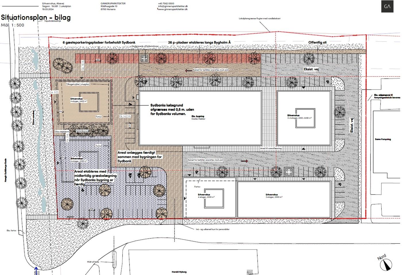
Der er 5 byggefelter, hvoraf den ene er solgt til Sydbank til opførelse af domicilejendom.

Arealerne sælges som sokkelgrunde med tillæg af ca. 0,5 m rundt om sokkelgrunden og ejendommens øvrige arealer udlægges til fælles brug for ejendommene i lokalplanområdet og overdrages til grundejerforening. Sælger afholder udgifter til anlæg af fællesarealer, herunder offentlig sti, som kommunen har krævet. Køber deltager forholdsmæssigt i udgifterne hertil udover købesummen. Udgifterne er foreløbigt estimeret til ca. kr. 990 pr. m² byggemulighed excl. moms for hele lokalplanområdet.

Såfremt køber erhverver alle de her omhandlede grunde, kan det evt. aftales, at køber overtager forpligtelsen til anlæg af udendørsarealer, mod en nærmere aftalt prisreduktion.

Hvis hele arealet erhverves, kan købet ske via selskabsoverdragelse. Der ligger ca. kr. 3.000.000 i udskudt skat.

Prisansættelse:

1. Byggefelt mod Høegh Guldbergs Gade kr. 8.450.000. Sokkelgrund på ca. 562 m² med tillæg af ca. 0,5 m rundt om grunden. Byggemulighed ca. 2.250 m² i 4 etager.

Byggefelt nærmest Alrøvej:

2. Byggefelt tv. kr. 5.700.000. Sokkelgrund på ca. 575 m² med tillæg af ca. 0,5 m rundt om grunden. Byggemulighed ca. 2.300 m² i 4 etager.

3. Byggefelt th. kr. 1.875.000. Sokkelgrund på ca. 1.000 m² med tillæg af ca. 0,5 m rundt om grunden. Byggemulighed ca. 2.000 m² i 2 etager.

4. Byggefelt med facade og udsigt til Bygholm Å og bag naboejendom (Danbo Møbler) kr. 3.975.000. Sokkelgrund på ca. 800 m² med tillæg af ca. 0,5 m rundt om grunden. Byggemulighed ca. 2.300-3.200 m² i 3-4 etager.

Samlet pris kr. 20.000.000.

Hvis alle byggefelter erhverves gives der dog er afslag, således at den samlede pris udgør kr. 16.000.000.

Den bedste placering i Horsens

Bygningerne kommer i godt selskab. De får nemlig den bedste beliggenhed ved Bilka, Harald Nyborg samt mange andre højprofilerede virksomheder.

Området omkring Bilka og Horsens Havn har set stor udvikling de seneste år. Havnens arealer er efterhånden blevet en forlængelse af midtbyen, der i sig selv er vokset fra provinsby til 'stor' by.

Ejendommen vil også komme til at ligge optimalt i forhold til den nye Ringvej Syd, der skal være med til at lede tung trafik udenom Horsens og derved bliver ejendommen endnu mere synlig og lettilgængelig for bilister i midtbyen.

I 2020 var den gennemsnitlige døgntrafik (ÅDT) på knap 17.000.

Projektets udformning er særligt designet til at tiltrække virksomheder, der lægger vægt på grøn omstilling og bæredygtighed.

Læs mere

Vil du vide mere?

Lignende ejendomme

Til top