Jessensgade 1, st., 1.sal og kælder
8700 Horsens

Sagsnr. 116233A

Ejendomstype

Etageareal

Grund

Energiklasse

1.442 m²

1.802 m²

D

Årlig leje

Leje pr. m²

Depositum

Årlig driftsudgift

Årlig driftsudgift pr. m²

1.501.610 kr.

1.041 kr.

375.403 kr.

325.765 kr.

226 kr.

Lejemål til butik, kontor, restaurant m.v.

Opdelingsvenligt lejemål på ca. 2.081 m² fordelt på 3 etager i særdeles flot og præsentabel strøgejendom.

Lokalerne i denne ikoniske ejendom, som i mere end en menneskealder har huset flere lokale pengeinstitutter, senest Danske Bank, er nu ledige til leje.

Der er flere muligheder for opdeling af lokalerne i som f.eks. særskilte etager eller på tværs af etager.

Beliggenheden på 10 ud af 10 i starten af strøget ved Vitus Berings Plads, med fantastisk synlighed for både gående og kørende, er attraktiv for mange.
Lokalerne er oplagte til alt fra butik, restauration, klinik, kontor m.m.

Med elevator på bagsiden (kld. - 3. sal) og niveaufri adgang fra både parkeringsplads og sidestrøget Jessensgade er der ca. 100 m. til hovedstrøget Søndergade, ca. 100 m. til off. transport (busser) og ca. 500 m. til banegård og trafikterminal.

Der er flere parkeringsmuligheder i nærhed af ejendommen, bl.a. den til ejendommen tilhørende parkeringsplads med betalingsparkering, hvor lejer har mulighed for at købe et begrænset antal parkeringskort til p.t. kr. 500 + moms pr. måned. Der ligger ydermere flere offentlige parkeringspladser i nærheden og parkeringshus i en afstand af ca. 50 m., hvor der kan lejes parkeringspladser. Lejers ansatte og kunder har dermed flere muligheder for parkering i nærheden af lejemålet.

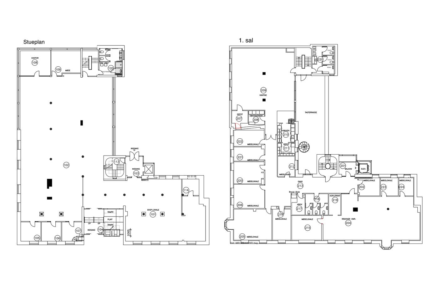
Lejemålet er pt. indrettet som følger:
Stueplan ca. 735 m²: Stueetagen er indrettet som stort åbent område med søjler og 5 kontorer/møderum i siderne. Ved bagtrappen er der adgang til to toiletter og bad.
1. sal ca. 671 m²:~ 1. salen er indrettet med spiseområde med tilhørende anretterkøkken, adskillige kontorer/mødelokaler, storrumskontor og to toiletrum med hver tre toiletter. Der er fra 1. salen adgang til stor tagterrasse, som deles med ejendommens øvrige lejere.
Der er tillige indskudt dæk ved bagtrappen på ca. 36 m² mellem stuen og 1.sal, hvor der er indrettet omklædningsrum.
Kælder på ca. 639 m²: Her findes den tidligere bankboks med forlokale. Boksen kan oplagt bruges til events, smagninger m.m. Ydermere indeholder kælderen en række arkivrum, omklædning, garderobe og traditionelle kælderrum med installationer.

Lejemålet overtages i den stand, hvori det er og forefindes - værende velvedligeholdt.

Udlejer er indforstået med at investere i ændringer af det lejede iflg. nærmere aftale.

Ejendommen er i kommuneatlas for Horsens Kommune registreret med bevaringsværdi 3 (1 er højt - 9 er lavt), hvorfor det skal påregnes, at evt. udvendige ændringer skal godkendes af kommunen.

Læs mere

Vil du vide mere?

Jesper Reinholt Düring

jrd@nordicals.dk

+45 2311 9944

Vitus Berings Plads 6, 8700 Horsens

+4576282610

8700@nordicals.dk

Besøg vores mæglerside

Lignende ejendomme

Til top