Levysgade 14, Parterreplan
8700 Horsens

Sagsnr. 116278

Ejendomstype

Etageareal

Energiklasse

215 m²

C

Årlig leje

Leje pr. m²

Depositum

Årlig driftsudgift

Årlig driftsudgift pr. m²

126.000 kr.

586 kr.

63.000 kr.

32.993 kr.

153 kr.

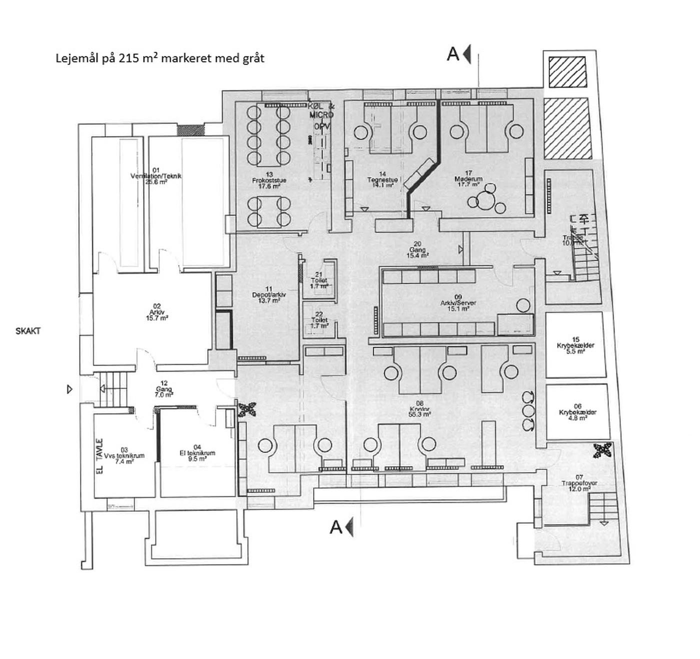
Kontorlejemål

Kontorlejemål i Horsens Centrum - Levysgade 14, parterreplan, 8700 Horsens

Er du på udkig efter moderne og præsentable kontorlokaler i Horsens midtby? Nu er der mulighed for at leje et attraktivt kontorlejemål på 215 m² i en velholdt og renoveret ejendom, beliggende i Levysgade 14.

Ejendommen er en flot og præsentabel kontorejendom i 4 etager, hvor det ledige lejemål er beliggende i parterreplan. Facaden blev renoveret i 2024, hvilket sikrer et indbydende udtryk både ude og inde.

Lejemålets indretning:

· Trappefoyer
· Kontorlandskab
· Mødelokale
· Arkiv/serverrum
· 3 separate kontorer
· Frokoststue med tekøkken
· 2 toiletter
· Klinkegulve

Lejemålet overtages nymalet, og lokalerne er lyse og hyggelige, hvilket giver et behageligt arbejdsmiljø. Der er desuden en praktisk hovedindgang fra Levysgade, samt adgang til lejemålet via en fælles bagtrappe fra parkeringsgården.

Parkeringsmuligheder:

· Der er mulighed for at leje op til 3 parkeringspladser i gården for p.t. kr. 10.493,43 + moms pr. stk. pr. år.
· 4 fælles gæsteparkeringspladser er tilgængelige ud til Levysgade, hvor lejer betaler en 1/4 af lejen (p.t. kr. 10.493,43 + moms pr. år). Gæsteparkeringen fungerer efter først-til-mølle-princippet, og lejer får udleveret gæsteparkeringskort.

Der er cykelskur/renovationsskur i gården.

Er du klar til at flytte din virksomhed ind i et af Horsens' bedste kontormiljøer? Kontakt os for yderligere information og fremvisning af lokalerne.

Læs mere

Vil du vide mere?

Lignende ejendomme

Til top