Lunavej 1D
8700 Horsens

Sagsnr. 116481

Ejendomstype

Etageareal

Grund

483 m²

2.250 m²

Årlig leje

Leje pr. m²

Depositum

300.000 kr.

621 kr.

75.000 kr.

God lager- og kontorbygning

Velbeliggende ejendom med synlig facadebeliggenhed mod Vejlevej. Der er kun ca. 6 km til Horsens midtby.

Lejemålet omfatter hele ejendommen med tilhørende udendørsarealer.

Ejendommen er opført i 2008 og har et bebygget areal 401 m², hvortil kommer indskudt dæk på 82 m². Ydervægge fremgår i det væsentligste i profilerede aluplader.

Grundarealet udgør 2.250 m². Der er udlagt befæstede køre- og parkeringsarealer.

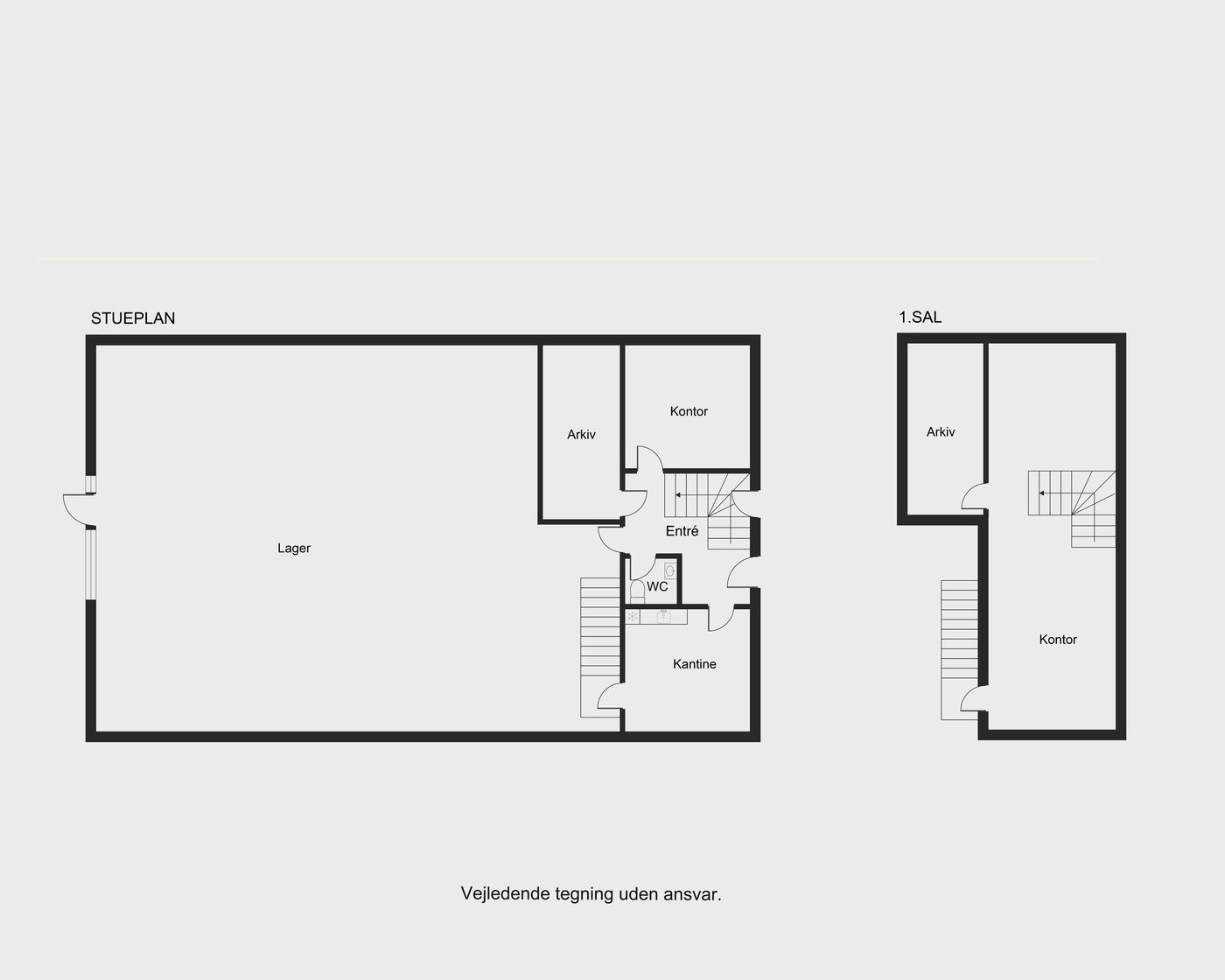
Stueplan består af: regulær lagerhal på ca. 319 m² med port (ca. 5 m bred og ca. 3 m høj). Loftshøjde ca. 7 m. Kontorafsnit på ca. 82 m² bestående af indgangsparti, med trappe til 1.sal, toilet kontor, arkiv og kantine med thekøkken.

1.sal på 82 m² består af åbent kontorlandskab og arkivrum.



Central placering i Horsens - tæt på Aarhus og Vejle m.m.
Nem adgang til motorvej E45 - der kun ca. 1,3 km til Vestvejen, som er tilkørselsvej til motorvejen og der er ca. 7 km til motorvejstilkørsel Horsens Syd.
Etableret erhvervsområde
God infrastruktur
Stærkt erhvervsklima - Horsens er kendt for dynamisk erhvervsliv og samarbejde med kommunen.

Læs mere

Vil du vide mere?

Jesper Reinholt Düring

jrd@nordicals.dk

+45 2311 9944

Vitus Berings Plads 6, 8700 Horsens

+4576282610

8700@nordicals.dk

Besøg vores mæglerside

Lignende ejendomme

Til top