Marsalle 58
8700 Horsens

Sagsnr. 115810B

Ejendomstype

Etageareal

Energiklasse

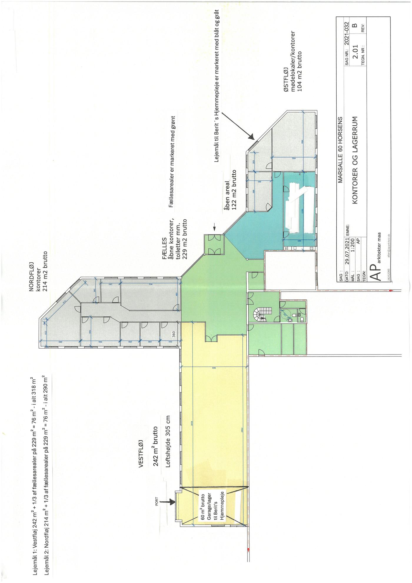
290 m²

B

Årlig leje

Leje pr. m²

Depositum

130.500 kr.

450 kr.

32.625 kr.

Kontorlejemål

Kontorlejemål på 290 m² udgørende del af større, velholdt ejendomskompleks.

Velbeliggende i erhvervsområdet Horsens Syd kun ca. 600 m fra Vestvejen, som er tilkørselsvej til E45, og der er ca. 4,5 km til motorvejstilslutning. Ca. 6 km til Horsens midtby.

Lokaliteterne består af administrationslokaler på 290 m² incl. andel af fællesarealer.

Der er isat nye vinduer ultimo 2022.

Lokalerne overtages i nymalet stand.

Særdeles favorabel leje.

Lokalerne udgør p.t. del af samlet lejemål på 608 m². Der er således mulighed for at leje yderligere lokaler.

Læs mere

Vil du vide mere?

Jesper Reinholt Düring

jrd@nordicals.dk

+45 2311 9944

Vitus Berings Plads 6, 8700 Horsens

+4576282610

8700@nordicals.dk

Besøg vores mæglerside

Lignende ejendomme

Til top