Nørretorv 27
8700 Horsens

Sagsnr. 115892

Ejendomstype

Etageareal

Grund

444 m²

694 m²

Kontantpris

Købspris pr. m²

Årlig driftsudgift

Årlig driftsudgift pr. m²

5.500.000 kr.

12.387 kr.

22.181 kr.

50 kr.

Centralt beliggende ejendom

Pæn og velholdt erhvervsejendom i 2 plan. Ejendommen er beliggende centralt i Horsens indre by, tæt på befærdet indfaldsvej. Bygningen har en stor synlig facade ud mod Nørretorv og Allégade, hvor der passerer ca. 13.000 køretøjer i døgnet.

Ejendommen er opført i 1974 i røde mursten med tagpapbeklædning og er efterfølgende ombygget i 2012 med delvis beklædning i vedligeholdelsesfrit materiale.

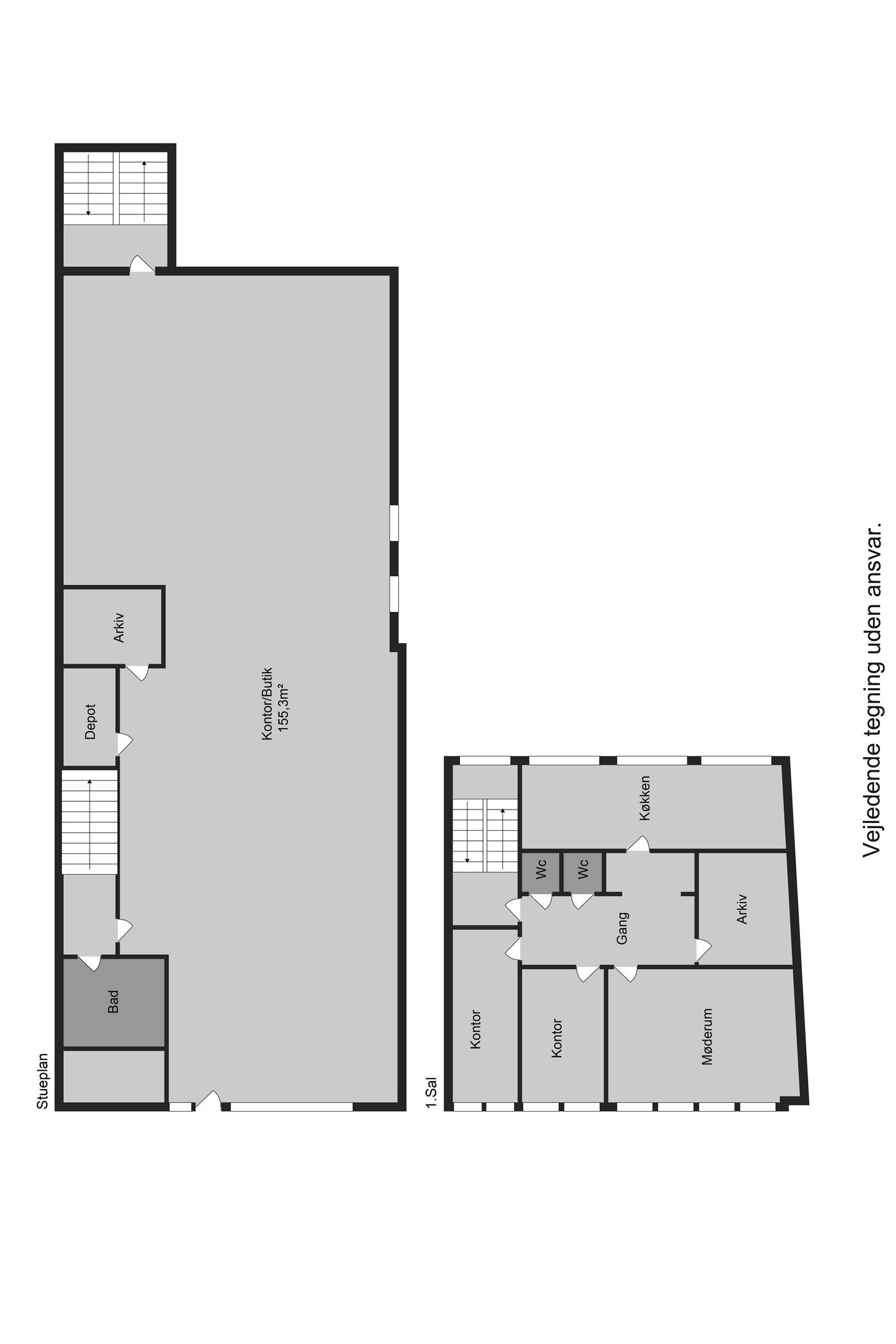
Det samlede areal for ejendommen udgør 444 m², hvoraf stuetagen og 1. sal udgør henholdsvis 282 m² og 162 m². Stueplan består af stort, regulært lokale med mindre køkkenniche samt toilet og bad og depotrum. På 1. sal forefindes køkken, kontorer/møderum samt 2 toiletter.

Der er indhegnet gårdmiljø med 10-12 parkeringspladser, ligesom der ved siden af ejendommen er gode muligheder for parkering på offentlig parkeringsplads.

Bygningens vedligeholdelsesmæssige stand fremstår som god.

Læs mere

Vil du vide mere?

Nikolai Høgh

nih@nordicals.dk

+4528903268

Vitus Berings Plads 6, 8700 Horsens

+4576282610

8700@nordicals.dk

Besøg vores mæglerside

Lignende ejendomme

Til top