Nokiavej 20
8700 Horsens

Sagsnr. 116414

Ejendomstype

Etageareal

Grund

1.025 m²

5.000 m²

Kontantpris

Købspris pr. m²

Årlig driftsudgift

Årlig driftsudgift pr. m²

6.500.000 kr.

6.341 kr.

29.391 kr.

29 kr.

Velbeliggende produktions/lagerejendom med mange anvendelsesmuligheder

Ejendommen er beliggende i veletableret industriområde præget af naboer indenfor industri, logistik og håndværk. Af naboer findes store udbydere som DSV, Nissens A/S, DFDS, AH Industries og AO Johansen.

Der er kun ca. 1,5 km til motorvejstilslutning Horsens V og ca. 6 km til Horsens midtby.

Bebyggelsen er opført i 2000 med ydervægge i betonelementer og profilerede aluplader og med eternittag (uden asbest). Der er Troltekt lofter.

Bebyggelsen er opført til brug for fremstilling af- og engroshandel med fodtøj.

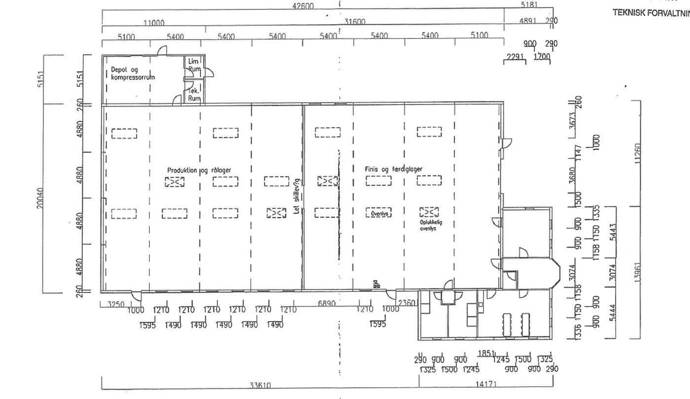
Samlet bygningsareal 1.025 m² fordelt således:

Administrationsafsnit 120 m² - bestående af: indgangsparti, toilet, kontor, frokostrum og 2 omklædningsrum med bad og toilet.

Produktions- og lagerhal 854 m² - er opdelt i 2 ca. lige store haller med let skillevæg. Der er åbning mellem hallerne. Ovenlys. Lofthøjde fra ca. 4 m i sider til ca. 6½ m i kip. Der er ventilationsanlæg i den ene hal.

Annex 51 m² - bestående af depot- og kompressorrum, teknikrum og limrum.

Der er SF-stensbelagt køre- og parkeringsareal foran bygningen. Den resterende del af grunden er udlagt med græs.

Gode udvidelsesmuligheder.

Læs mere

Vil du vide mere?

Lignende ejendomme

Til top