Plutovej 5
8700 Horsens

Sagsnr. 115019

Ejendomstype

Etageareal

200 m²

Pænt kontorlejemål

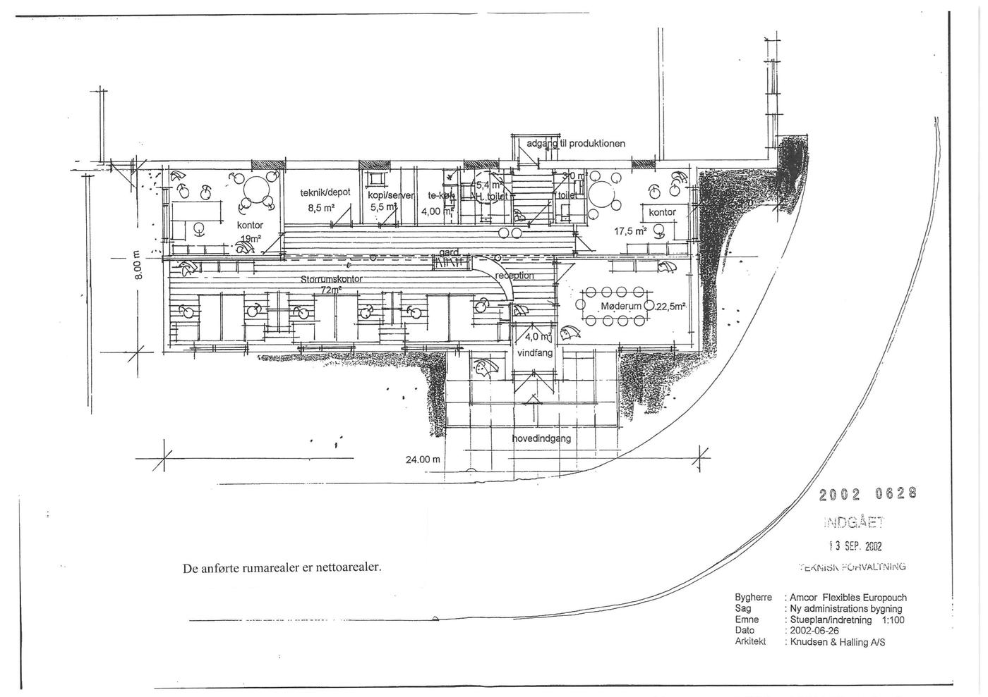
Pænt kontorlejemål på ca. 200 m² med god beliggenhed i industriområde i umiddelbar nærhed af Vestvejen og Vejlevej, ca. 4 km fra motorvej og ca. 4 km fra Horsens midtby.

Lejemålet, som udgør del af logistikejendom på i alt ca. 4.300 m², består af: vindfang, åbent kontorlandskab, 2 kontorer, mødelokale, thekøkken, depotrum, printerrum, toilet og handicaptoilet.

Pæne og lyse lokaler.

Lokalerne overtages i nymalet stand. Der er nye trælaminatgulve.

Lejemålet omfatter (såfremt lejer ønsker at gøre brug heraf):
4 hæve/sænkeborde, 1 kontorstol, 1 frokostbord med 8 stole, 2 skuffemoduler, 1 bord med 8 stole i mødelokale, div. køkkenting (service), gardiner + liftgardiner.

Det er installeret alarmanlæg. Lejer skal selv sørge for aftale med alarmselskab.

Lejemålet omfatter brugsret til parkeringspladser ud for det lejedes facade.

Læs mere

Denne ejendom er udlejet

Vil du vide mere?

Nikolai Høgh

nih@nordicals.dk

+4528903268

Vitus Berings Plads 6, 8700 Horsens

+4576282610

8700@nordicals.dk

Besøg vores mæglerside

Lignende ejendomme

Til top