Provstlund Alle 2C, 1. 1., Lund
8700 Horsens

Sagsnr. 115839

Ejendomstype

Etageareal

Grund

Energiklasse

153 m²

3.082 m²

A2015

Årlig leje

Leje pr. m²

Depositum

Årlig driftsudgift

Årlig driftsudgift pr. m²

168.000 kr.

1.098 kr.

42.000 kr.

10.000 kr.

65 kr.

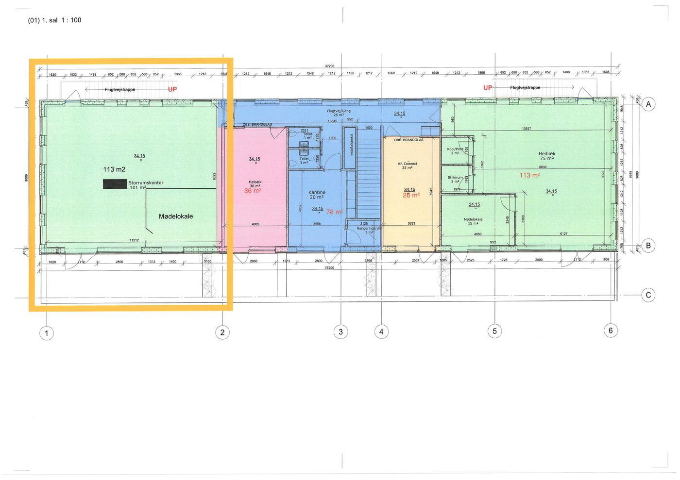
Kontorlejemål i nyopført ejendom

Er du på udkig efter det perfekte kontor i Horsens området?
Vi har et præsentabelt, nyopført lejemål til dig.

Velbeliggende ca. 2 minutters kørsel fra motorvej E45 - Horsens V - og ca. 10 minutter fra Horsens midtby.

Lejemålets bruttoareal udgør ca. 113 m², hvortil kommer ca. 40 m² bruttoareal andel af fællesarealer.
Fællesarealer består af indgangsparti i stueplan og på 1. sal kantine med udgang til tagterrasse, 2 toiletter og fordelingsgang.

Lejemålet har direkte udgang til en privat del af tagterrasse.

Lave driftsomkostninger.
Moderne ventilation og masser af naturligt lysindfald.
Naboer: I stueetagen er der bager, frisør og pizzeria, og 30 meter væk ligger Rema1000 Lund. På 1. salen, hvor dit kontor findes, holder andre spændende erhvervsvirksomheder til.
El-ladestandere: Tilgængelige ved siden af bygningen.
Gratis parkering: For både ansatte og kunder.
Der pålægges ikke tidsbegrænset parkering eller betaling for parkering.

Læs mere

Vil du vide mere?

Jesper Reinholt Düring

jrd@nordicals.dk

+45 2311 9944

Vitus Berings Plads 6, 8700 Horsens

+4576282610

8700@nordicals.dk

Besøg vores mæglerside

Lignende ejendomme

Til top