Rædersgade 3, 1., (lejemål 04)
8700 Horsens

Sagsnr. 11601304

Ejendomstype

Etageareal

Energiklasse

244 m²

D

Årlig leje

Leje pr. m²

Depositum

Årlig driftsudgift

Årlig driftsudgift pr. m²

219.600 kr.

900 kr.

54.900 kr.

38.000 kr.

156 kr.

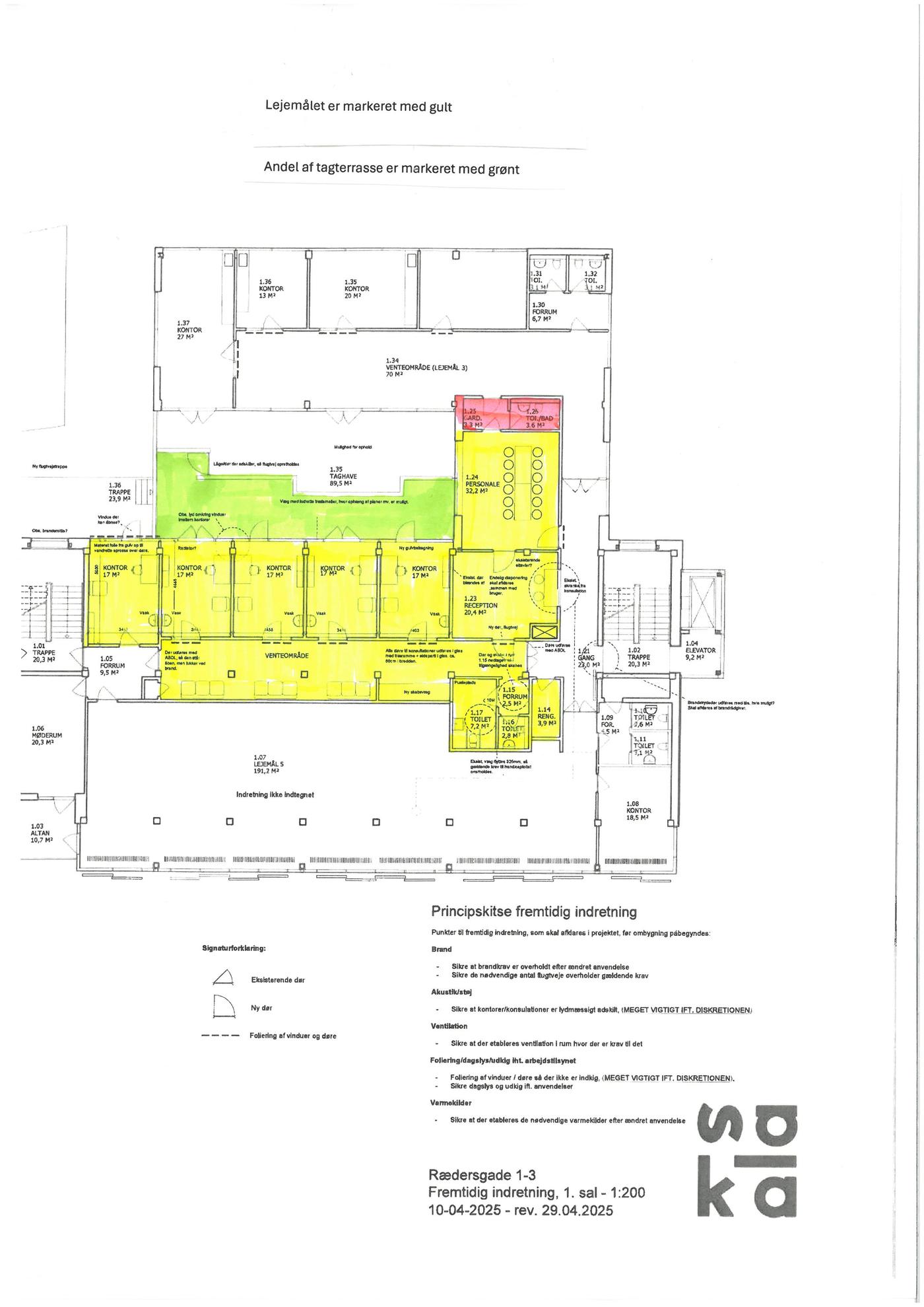
Nyindrettet lejemål

Nyindrettet lejemål til kontor/klinik.

Lejer kan være medbestemmende m.h.t. indretning.

Central beliggenhed i Horsens midtby.

Lejemålet er beliggende på 1.sal i præsentabel ejendom, som er ombygget af arkitekt i 2008.

"Rædershus" er et markant kontorhus med stor arkitektonisk signalværdi.

Facaden mod Rædersgade har et ekspressivt, flimrende og foranderligt udtryk, som signalerer et moderne kontorhus med stor repræsentationsværdi.

Lejemålet er på 244 m² incl. 32 m² andel af fællesarealer. Lejemålet har hidtil været anvendt til kantine, men vil blive ombygget i forbindelse med indgåelse af lejekontrakt. Der er udfærdiget indretningsforslag,
som dog kan ændres. Lejemålet overtages i øvrigt i nymalet stand.
Der bliver iøvrigt etableret handicaptoilet, som er fælles med nabolejemålet.

Indretning i henhold til forslag: Reception, venteområde, 5 kontor/kliniklokaler, toiletrum med 2 toiletter, rengøringsrum, personalerum med adgang til fælles handicaptoilet.

Lejemålet omfatter tillige brugsret til ca. 45 m² tagterrasse. Der er således super godt opholdsareal for medarbejdere.

Lejemålet er oplagt til klinikformål, da de 2 øvrige lejemål på etagetagen anvendes til lægeklinik.

Der er elevator.

Der er mulighed for at leje p-pladser på ejendommen for kr. 6.000 + moms p.a. Der forefindes iøvrigt p-hus i umiddelbar nærhed (Rædersgade 9).

Læs mere

Vil du vide mere?

Jesper Reinholt Düring

jrd@nordicals.dk

+45 2311 9944

Vitus Berings Plads 6, 8700 Horsens

+4576282610

8700@nordicals.dk

Besøg vores mæglerside

Lignende ejendomme

Til top