Rosenkrantzvej 10
8700 Horsens

Sagsnr. 116331

Ejendomstype

Etageareal

Grund

1.100 m²

4.284 m²

Årlig leje

Leje pr. m²

Depositum

790.000 kr.

718 kr.

395.000 kr.

Ny domicilejendom - opføres efter aftale

Nu er der mulighed for at leje nyopført domicilejendom med attraktiv beliggenhed - projektejendom, som opføres efter nærmere aftale - herunder størrelse.

Anvendelig til kontor, engroshandelsvirksomhed o.l.

Det nye erhvervsområde ved Bygholm i Horsens - kaldet Business Park Bygholm - er et attraktivt og strategisk placeret område, der er designet til at tiltrække virksomheder med behov for god infrastruktur og synlighed.

Synlig facadebeliggenhed mod Silkeborgvej, som er indfaldsvej fra motorvej E45 til Horsens.

Der er kun ca. 1 km til motorvejstilslutning Horsens V og ca. 4 km til Horsens midtby.

Området er bynært og naturskønt, hvilket gør det attraktivt både for medarbejdere og besøgende.

Naboskab til boligområder og natur skaber mulighed for en god balance mellem arbejde og fritid.

Bebyggelsen består af højloftet hal (ca. 9,5 m og ca. 8 m under dragere) på 700 m² med 3 porte samt administrationsafsnit på 400 m² fordelt på 2 etager.

I hallen indrettes lille værksted, renserum, 2 toiletter og omklædningsrum med bad.

Administrationsafsnit på 200 m² i stueplan indrettes med ankomstområde, kantine, mødelokale, depotrum, toiletrum med 2 toiletter og 2 opholdsrum.

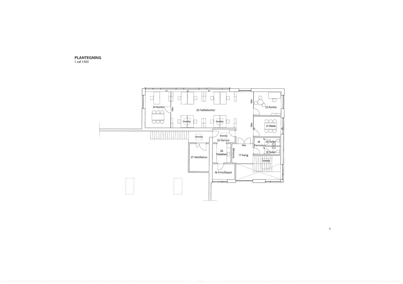
Administrationsafsnit på 200 m² på 1.sal indrettes med storrumskontor, mødelokale, 2 kontorer, toiletrum med 2 toiletter, tekøkken, printerrum og ventilationsrum.

Hal i sortmalet beton og kontorafsnit i hvidmalet beton. Facader på administrationsbygning kan dog evt. opføres i grå teglsten med spil - se vedhæftede foto af anden af udlejer opført ejendom på adressen Rosenkrantzvej 20.

Da byggeriet endnu ikke er opført, kan lejer være medbestemmende vedr. indretning, herunder lejemålsstørrelse.

Der vil på ejendommen blive opført yderligere bebyggelse. Den samlede bebyggelse skønnes at ligge i størrelsesorden ca. 2.000 m² med kontorafsnit i 2 etager.

Lejemålet forventes færdigopført ca. 1 år efter lejeaftales underskrift.

Udlejer har 10.000 grundareal i området, hvorved der kan bygges betydeligt mere efter lejers behov.

Der er også mulighed for køb af byggeri.

Læs mere

Vil du vide mere?

Bo Pinholt

bpi@nordicals.dk

+4523402909

Vitus Berings Plads 6, 8700 Horsens

+4576282610

8700@nordicals.dk

Besøg vores mæglerside

Lignende ejendomme

Til top