Rosenkrantzvej 20
8700 Horsens

Sagsnr. 116357

Ejendomstype

Etageareal

Energiklasse

795 m²

A2015

Årlig leje

Leje pr. m²

Depositum

423.500 kr.

533 kr.

211.750 kr.

Attraktivt lager- og kontorlejemål opført i 2023

Byggeriet er opført i betonelementer. Facaderne på administrationsbygning er i grå teglsten med spil, som harmonerer med de grålige betonfacader på hallen. Symmetriske vinduespartier med mørkegrå rammer bryder facaden mod Silkeborgvej.

Synlig facadebeliggenhed mod Silkeborgvej, som er indfaldsvej fra motorvej E45 til Horsens.

Der er kun ca. 800 m til motorvejstilslutning Horsens V og ca. 3,5 km til Horsens midtby.

Lejemålet udgør del af større lejemål på 1.900 m² med Pronghorn Bikes og der er tale om fremleje.

Lejemålet er på ca. 795 m² bestående af:

Højloftet (ca. 7, 6 m) lagerhal på ca. 450 m² med port.
Hallen udgør ca. ½ af større lagerhal. Der er ikke etableret en egentlig lejemålsadskillelse, men alene opsat spånplader på betonpiller i ca. halv loftshøjde. Indskudt lagerdæk er ligeledes alene opdelt med spånplade.

Indskudt lagerdæk på ca. 160 m².

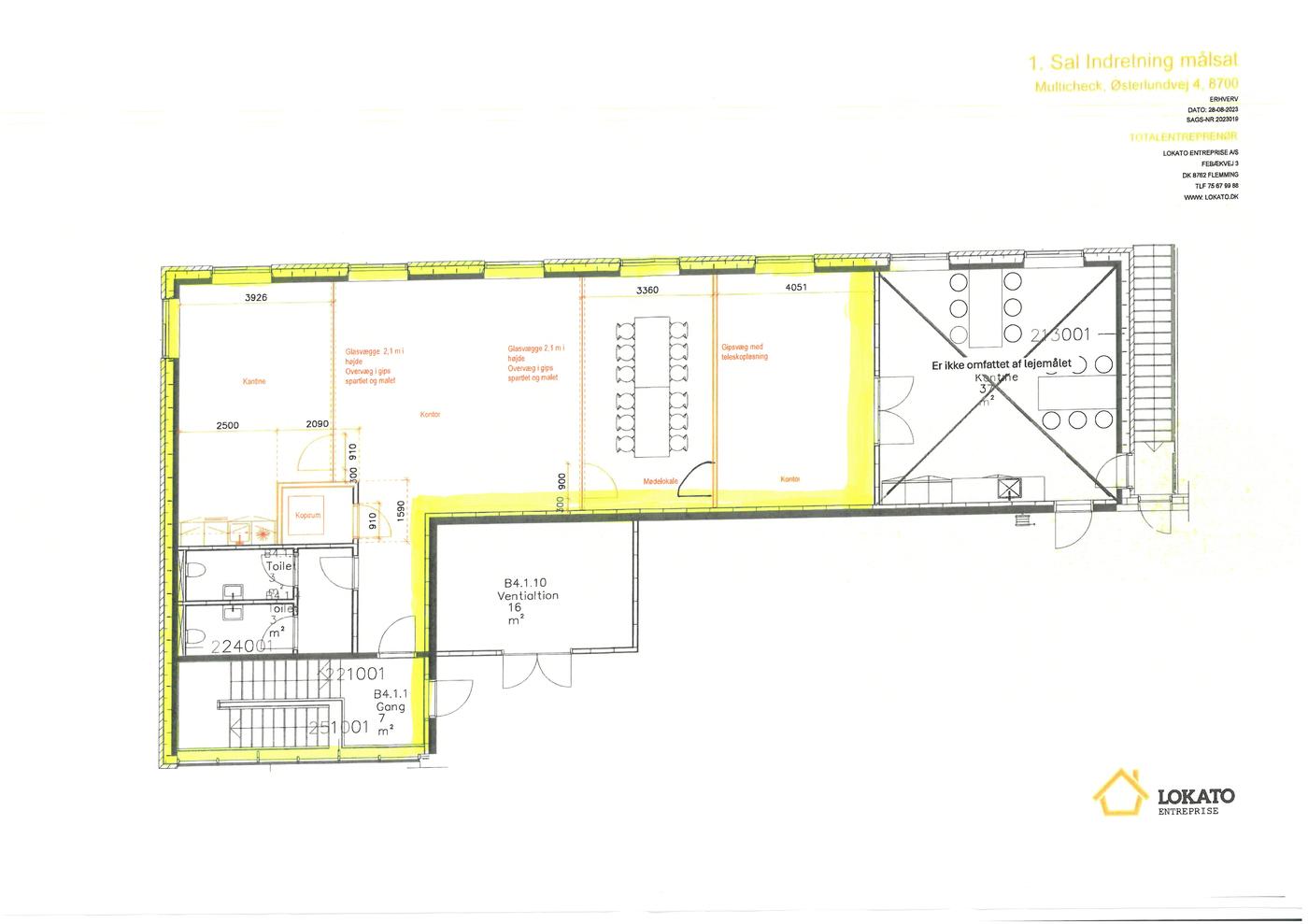
Flot kontorafsnit på 1.sal på ca. 185 m² indeholdende: storrumskontor, mødelokale, stort kontor, kantine og toiletrum med 2 toiletter.

Lejemålet omfatter eksklusiv brugsret til 5 p-pladser. Herudover er der 5 p-pladser, som er fælles med Pronghorn og benyttes efter først til mølle princippet. Der er opsat elladestander ved 2 af de 5 fælles p-pladser.

F.s.v. angår synlighed mod Silkeborgvej kan der evt. opsættes flagstænger eller pylon.

Læs mere

Vil du vide mere?

Bo Pinholt

bpi@nordicals.dk

+4523402909

Vitus Berings Plads 6, 8700 Horsens

+4576282610

8700@nordicals.dk

Besøg vores mæglerside

Lignende ejendomme

Til top