Silkeborgvej 271, Lund
8700 Horsens

Sagsnr. 116059

Ejendomstype

Etageareal

Grund

270 m²

1.004 m²

Kontantpris

Købspris pr. m²

Afkast

Årlig lejeindtægt

Årlig lejeindtægt pr. m²

Årlig driftsudgift

Årlig driftsudgift pr. m²

5.975.000 kr.

22.130 kr.

5,3 %

356.220 kr.

1.319 kr.

41.259 kr.

153 kr.

Investeringsejendom

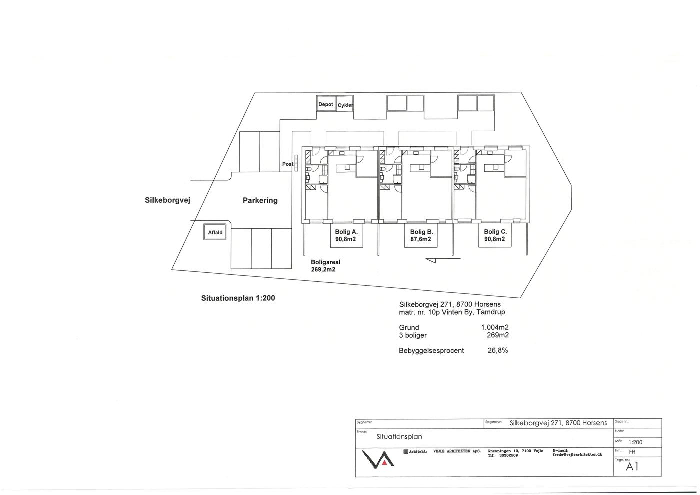
3 nyopførte rækkehuse.

Boligerne indrettes med bryggers, badeværelse, køkken i åbent plan med stue, værelse og soveværelse.

Ejendommen er beliggende i udkanten af Lund, som er et velfungerende bysamfund Vest for Horsens med 3.274 indbyggere pr. 01.01.2025. Der forefindes indkøbsmuligheder (Dagli' brugs og Rema 1000 dagligvarebutik), skole 0.-9. klassetrin med SFO, specialskole for psykisk udviklingshæmmede børn, nyere vuggestue/børnehave, idrætsfaciliteter med multihal og forsamlingshus. Der er kun ca. 3 km til motorvejstilkørsel og ca. 8 km til Horsens midtby.

Lunds rolle i kommunen. Som lokalcenterby betjener Lund et større opland med servicefunktioner, detailhandel, og lokal erhvervsstruktur. Derved er Lund vigtig i bosætningsøjemed, da byen har store kvaliteter at tilbyde borgerne i Horsens Kommune. Derfor skal Lund fortsat udvikles som bosætningsby der forsynes med gode skole-, børnepasnings- og fritidstilbud, samt mulighed for at der kan etableres butikker til forsyning af Lund by og omegn.

Opførelse af 3 rækkehuse inkl. udenomsarealer.
1. Projektet overordnet
Der ligger i øjeblikket en gammel ejendom, der nedrives.

Der opføres 3 stk. rækkehuse - 2 stk. på ca. 91 m² og 1 stk. på ca. 88 m². Husene opføres i gode materialer, der fortrinsvis er vedligeholdelsesfrie. Ydervægge i tegl, taget med betontagsten, udvendige belægninger i betonsten, og zink som primære afslutningsmaterialer.

2. Udførelse, indretning, udseende.
Der bygges 3 stk. huse jfr. tegninger, med sadeltag.

Der bygges energiboliger, og derfor er der minimale udgifter til opvarmning.

Udenomsarealer laves indbydende og der laves skure til opbevaring, 3 stk. a' 1,5 m².

Der laves klargøring til 2 stk. ladestandere til elbiler som beboerne kan tilkoble sig. Der udføres fælles affaldsordning ude ved vejen og der laves 1,5 p-plads pr bolig.

3. Materialer

Fundamenter/sokkel:

Fundamenter støbes til frostfri dybde og armeres jf. ingeniørberegninger. Fundamenter afsluttes med Lecatherm blokke, der pudses med sokkelpuds. Der udføres radonspærre/udluftning efter gældende regler.


Terrændæk:

Terrændæk støbes med flydebeton og armeres med 6015 rionet. Der isoleres i gulvet med trykfast isolering jf. energiberegning. Der udføres dilationer jf. ingeniør.


Kloak:

Alt kloak på grunden udføres nyt. Der laves ny hovedkloakering og der separeres på grunden. Så vidt muligt nedsives regnvand på egen matrikel. Stier og fællesareal afvandes også.

El & Vand:

Alt el og vand udføres til skelstik/kabelskab, så alle ledninger i jord er nye. Vandstik udføres nyt til boligerne fra skel. Der udføres elinstallation jf. gældende regler herfor, inkl. røgmelder. Der laves fællestavle i depotskuret, og der forberedes til el-lade standere ved p-plads.

Belægninger:

Alle udvendige belægninger udføres med 30x30 fliser i grå. Alle belægninger udføres med fald så vand afledes. Alle kanter sikres med betonstøbning.

Haver:

Alle arealer uden belægning og bygninger udføres med græs. I alle skel mellem boliger plantes bøgehække 50-80 cm..

Affaldsstation:

Der udføres en overdækning I træ, med tag, hvor der kan opbevares det krævede antal affaldsspande.

Postkasser:

Der opstilles et postkassestativ ved vejen med 3 stk. postkasser i sort. Alternativt placeres et stk. postkasse ved hver indgang.

Skure:

Ved hver bolig tilhører ca. 1,5 m² skur, der udføres uopvarmet og med beklædning, i en Thermo træ el lign. Der laves et stk. lampe i hvert skur med sensor, disse 6 lamper kører på fællesmåleren.

Facader:

Facaderne opmures i tegl. V 445 BS HVEDE. Der udføres 20 cm høj gesims på langsiderne.

Bagmure:

Alle bagmure og skillevægge udføres i porebeton, der spartles, påføres filt og males hvide. Vægge males i glans 10, i baderum glans 25.

Tag:

Tage udføres med hældning, asymmetrisk taghældning med betontagsten.

Murkroner:

Inddækninger, tagrender og nedløb udføres i sortmalet aluminium.

Sokkelaffugter:

Ved belægninger der støder mod døre udføres sokkelaffugter fra elefantrist. Hvor der ikke re døre trækkes belægning 20 cm fra huset og der udføres ral/søsten i denne kasse.

Vinduer & Døre:

Træ/alu vinduer med 3 lags glas, kvalitet som Rationel. Sort udvendigt og hvid indvendigt.

Nøglesystem:

Som Ruko 600 med lås i skur, postkasse og døre med samme nøgle.

Nøglesystem til hoveddør, skur og postkasse udføres som Ruko 600 serie. Der leveres 3 stk. nøgler til hver bolig.

Indvendige døre:

Celledør glat hvid med standardlåsekasse. Kvalitet som Raw eller Sweedoor. Rustfrit stålgreb: randi 101 - i bryggers og bad udføres tungere døre for at lukke for lyd mod opholdsrum.

Gulve - fliser:

Klinker udføres i bryggers, entre og badeværelse. Udføres som f.eks. 60x60 fliser, eller 30x60 i en god kvalitet, betongrå med grå fuge for neutralt look. Der er afsat 200 kr. excl. moms pr. m² til gulve og vægfliser. Ved alle vådrum udføres godkendt vådrumsbehandling.

Gulvbelægning øvrig:

Lægges i opholdsrum og værelser. Som fx Moland Smartlock parket Eg, matlak hvis 13 mm. Gulve lægges så de overholder alle lydkrav, samt niveaufri adgang overalt. Gulve i skure udføres som betongulv.

Inventar:

Der opstilles inventar som Svane. Komplet køkken jf tegninger. Skab i værelser. Skab i entre, samt skydelåger foran alt teknik i bryggers.

Hvidevarer:

Der leveres og monteres flg. i god kvalitet som Siemens, witt etc : Ovn, 60 cm keramsike kogeplade, emhætte, vaskemaskine, opvaskemaskine.

Lofter:

I alle rum udføres Træbeton ultrafin struktur i hvid, som tilskæres mod vægge. I baderum kan det evt. laves med hvide glatte lofter, hvis der vælges færdige badekabiner grundet tidsplan.

Fodlister & træværk

Hvidlakeret standard ral 9010 trælister, glans 20. Gerigter og fodlister leveres uden synlig montage og fuges mod væg i fuge der kan malerbehandles.

Dørstop:

Dørstopper monteres på fodlister ved alle døre. Rustfri dørstop som Habo.

Læs mere

Vil du vide mere?

Jesper Reinholt Düring

jrd@nordicals.dk

+45 2311 9944

Vitus Berings Plads 6, 8700 Horsens

+4576282610

8700@nordicals.dk

Besøg vores mæglerside

Lignende ejendomme

Til top