Silkeborgvej 136, 1. tv., Lund
8700 Horsens

Sagsnr. 116207

Ejendomstype

Etageareal

Grund

255 m²

11.973 m²

Årlig leje

Leje pr. m²

Depositum

Årlig driftsudgift

Årlig driftsudgift pr. m²

191.250 kr.

750 kr.

47.813 kr.

12.000 kr.

47 kr.

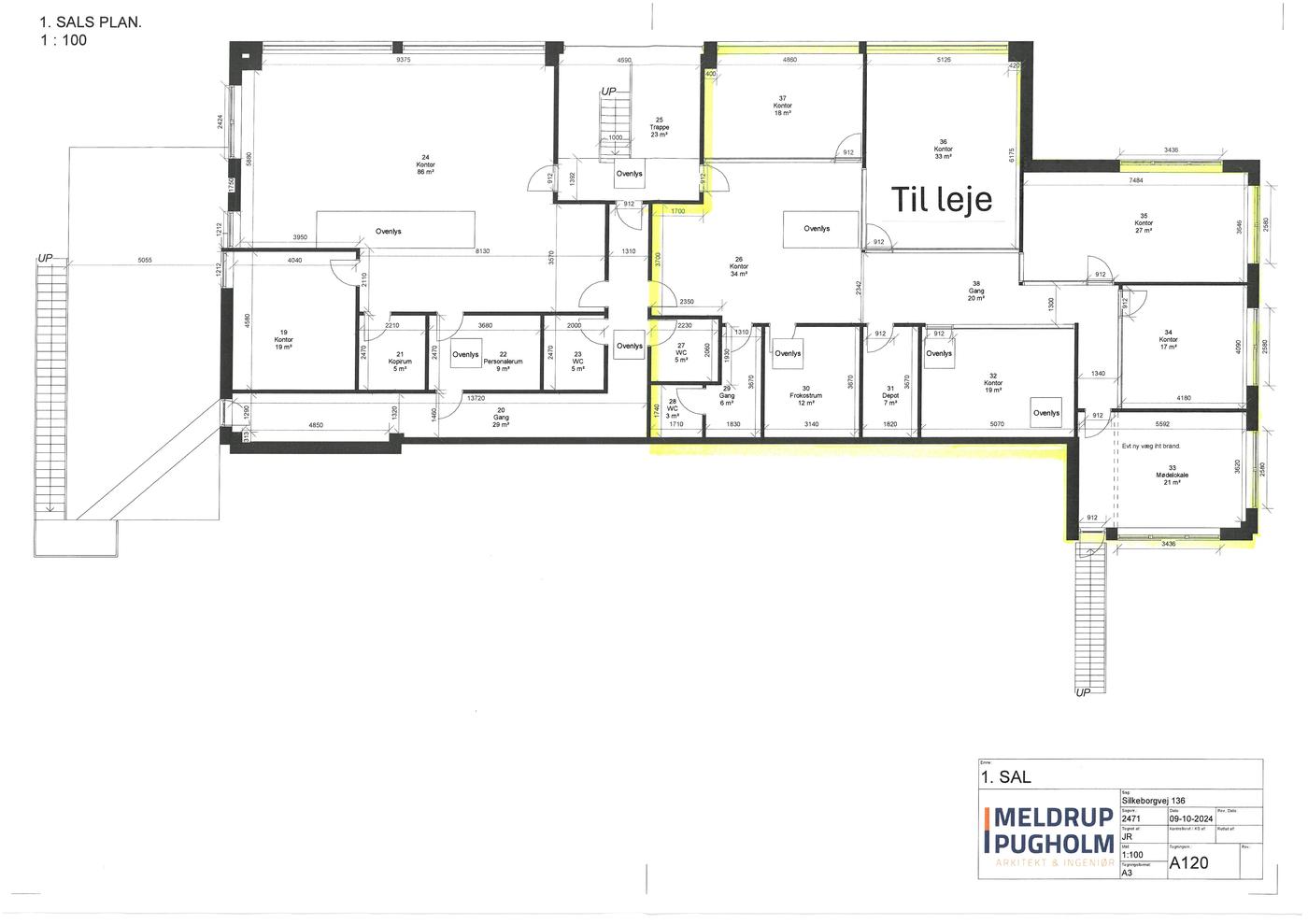
Velbeliggende kontorlejemål

Flot kontorlejemål.

Supergod beliggenhed ca. 900 meter fra motorvejsslutning Horsens V og ca. 5 km fra Horsens midtby.
Beliggende med facade mod Silkeborgvej, hvor der dagligt passerer mere end 15.000 biler (2018).

Lejemålet, som er på ca. 255 m², består af 7 kontorlokaler, frokostrum med thekøkken, depotrum og toilet. Til lejemålet hører desuden eget toilet på fælles gangareal.
Flot, slebet betongulv.

Rigtig pæne og lyse lokaler.

Gode parkeringsforhold.

Læs mere

Vil du vide mere?

Jesper Reinholt Düring

jrd@nordicals.dk

+45 2311 9944

Vitus Berings Plads 6, 8700 Horsens

+4576282610

8700@nordicals.dk

Besøg vores mæglerside

Lignende ejendomme

Til top