Søndergade 12, 1.
8700 Horsens

Sagsnr. 115635A

Ejendomstype

Etageareal

Grund

390 m²

921 m²

Kontantpris

Købspris pr. m²

Årlig driftsudgift

Årlig driftsudgift pr. m²

6.150.000 kr.

15.769 kr.

18.400 kr.

47 kr.

Unik ejendom

En helt unik ejendom med en sjældent spændende historie - SKAL OPLEVES

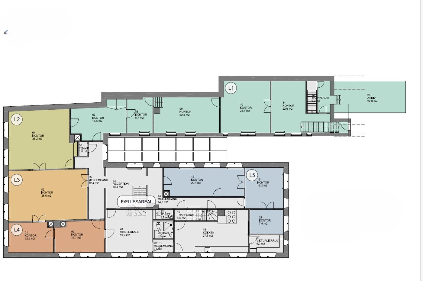
Ejendommen er opdelt i 2 ejerlejligheder, hvoraf nærværende ejerlejlighed er ejerlejlighed nr. 2, 1. sal.

Velkendt ejendom beliggende midt på byens hovedgågade som nabo til Bytorv Horsens.

Ejendommen er totalt renoveret under stor hensyntagen til ejendommens sjæl og atmosfære samtidig med, at ejendommen udnyttes effektivt og moderne.

Der er for nærværende ejerlejlighed brugsret til 3 parkeringspladser i ejendommens gård, som i øvrigt er belagt med flotte pigsten. Gården anvendes flere gange årligt til musikarrangementer på grund af den gode beliggenhed.

Bygningen er fredet med deraf følgende restriktioner.

Læs mere

Vil du vide mere?

Per Ahlgreen

per@nordicals.dk

+4540206715

Vitus Berings Plads 6, 8700 Horsens

+4576282610

8700@nordicals.dk

Besøg vores mæglerside

Lignende ejendomme

Til top